Aerogate Homes

Eladó ikerház
Mende

+ 7 kép 1/10
85 000 000 Ft85 M Ft 904 255 Ft/m2
4 szoba
94 m²
építés éve:2026

Részletes adatok

Telekméret: 981 m2
Fűtés: Egyéb
Energetikai besorolás: Nem adta meg a hirdető

Az OTP Bank lakáshitel ajánlataFizetett hirdetés

3629998810
Gál Beáta
referens

Érdekel az OTP Bank kedvezményes lakáshitel ajánlata? *

* A kérdésre „Igen” válasz bejelölése esetén, az „Üzenet küldése” gombra kattintva kijelentem, hogy az OTP Bank Nyrt. Adatkezelési tájékoztatójának tartalmát megismertem és tudomásul vettem.

Eladó ikerház leírása

MENDE KEDVELT RÉSZÉN – ÚJ ÉPÍTÉSŰ OTTHON SAJÁT KERTTEL, NYUGALOMBAN MÉGIS KIVÁLÓ ELÉRHETŐSÉGGEL

Mende Pusztaszentistváni részén, a vasútállomás közelében, mégis csendes és nyugodt környezetben kínálunk megvételre egy igényesen megtervezett, új építésű otthont, amely tökéletes egyensúlyt teremt a modern életstílus és a természetközeli nyugalom között.

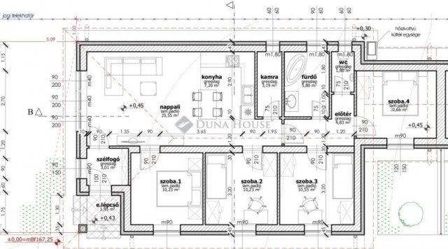
A nettó 94 m²-es ingatlan egy 981 m²-es telken helyezkedik el, amelyből egy jól elkülönülő, kizárólagos használatú, mintegy 250 m²-es kert tartozik hozzá. Ez a saját élettér ideális helyszíne lehet a mindennapi kikapcsolódásnak, családi programoknak vagy akár egy jövőbeli bővítésnek is – itt valóban adott az intimitás és a szabadság érzése.

Az otthon kialakítása során a funkcionalitás és a családbarát térszervezés kapta a főszerepet. A világos, amerikai konyhás nappali a közös pillanatok központja, míg a külön nyíló szobák nyugodt privát tereket biztosítanak. A praktikus elrendezés, a külön háztartási helyiség és a jól átgondolt alaprajz mind a kényelmes mindennapokat szolgálják.

A műszaki tartalom időtálló és korszerű megoldásokat kínál: a kiváló hőszigetelés, a háromrétegű nyílászárók és a modern, hőszivattyús rendszerrel működő padlófűtés nemcsak magas komfortérzetet, hanem hosszú távon kedvező fenntartási költségeket is biztosítanak. Az ingatlan részletei ráadásul részben az Ön igényei szerint alakíthatók, így valóban személyre szabott otthon valósulhat meg.

A kivitelező több sikeres projektet tudhat maga mögött a környéken, referenciái megtekinthetők, így a minőség és a megbízhatóság garantált.

Az átadás várhatóan 2026 őszén történik, így most még lehetősége van időben biztosítani helyét egy fejlődő, értékálló környezetben.

Ha egy modern, energiatakarékos, saját kerttel rendelkező otthont keres Mendén, ahol a nyugalom és a minőség kéz a kézben jár, ezt az ingatlant mindenképpen látnia kell.
Keressen bizalommal, és tegyük meg együtt az első lépést új otthona felé!
Érd: Gál Beáta 06705521003 gal.beata@dh.hu

Referencia szám: HZ040483

Hirdetés feltöltve: 2026. 04. 14. Utoljára módosítva: 2026. 04. 18.

Az ingatlan elhelyezkedése

Cím: Mende

Eladó ikerházak a környékről

Mende
Eladó ikerház

Mende

85 M Ft
4 szoba
94 m²
Mende
Eladó ikerház

Mende

130.5 M Ft
5 szoba
127 m²
Mende
Eladó ikerház

Mende

85 M Ft
4 szoba
94 m²
Mende
Eladó ikerház

Mende

132.5 M Ft
5 szoba
127 m²
Mogyoród
Eladó ikerház

Mogyoród

135 M Ft
5 szoba
137 m²
Mende
Eladó ikerház

Mende

85 M Ft
4 szoba
94 m²
Mende
Eladó ikerház

Mende

132.5 M Ft
5 szoba
127 m²
Mende
Eladó ikerház

Mende

84.9 M Ft
4 szoba
93 m²
Mende
Eladó ikerház

Mende

95 M Ft
4 szoba
94 m²
Mende
Eladó ikerház

Mende

132.5 M Ft
5 szoba
127 m²
Mende
Eladó ikerház

Mende

85 M Ft
4 szoba
94 m²
Nagytarcsa
Eladó ikerház

Nagytarcsa

119.9 M Ft
4 szoba
103 m²
Mende
Eladó ikerház

Mende

130.5 M Ft
5 szoba
127 m²
Kiskunlacháza
Eladó ikerház

Kiskunlacháza

44.9 M Ft
2 szoba
39 m²
Vácrátót
Eladó ikerház

Vácrátót

94.9 M Ft
2 + 3 szoba
108 m²
Érd
Eladó ikerház

Érd

177.7 M Ft
7 szoba
181 m²
Vác
Eladó ikerház

Vác

149.9 M Ft
5 szoba
202 m²
Mende
Eladó ikerház

Mende

89.9 M Ft
4 szoba
80 m²
Budakalász
Eladó ikerház

Budakalász

159 M Ft
6 szoba
140 m²
Diósd
Eladó ikerház

Diósd

206.25 M Ft
5 szoba
184 m²
Szentendre
Eladó ikerház

Szentendre

718 M Ft
10 + 2 szoba
578 m²
Mogyoród
Eladó ikerház

Mogyoród

135 M Ft
5 szoba
137 m²
Dunakeszi
Eladó ikerház

Dunakeszi

178 M Ft
6 szoba
140 m²
Diósd
Eladó ikerház

Diósd

213.46 M Ft
5 szoba
186 m²

Falusi CSOK ingatlanok

Somlójenő
Eladó családi ház

Somlójenő

64.9 M Ft
4 szoba
221 m²
Tápióbicske
Eladó családi ház

Tápióbicske

79.9 M Ft
3 szoba
160 m²
Újlengyel
Eladó családi ház

Újlengyel

110 M Ft
4 szoba
121 m²
Gönyű
Eladó családi ház

Gönyű

111.951 M Ft
5 szoba
105 m²
Ambrózfalva
Eladó családi ház

Ambrózfalva

26.9 M Ft
5 szoba
194 m²
Újszilvás
Eladó családi ház

Újszilvás

23 M Ft
3 + 1 szoba
100 m²
Balatonszemes
Eladó téglalakás

Balatonszemes

123.3 M Ft
2 szoba
70 m²
Hosszúhetény, Petőfi Sándor utca 10
Eladó családi ház

Hosszúhetény

20.65 M Ft
4 + 2 szoba
133 m²