City Pearl

Eladó ikerház
Érd

+ 17 kép 1/20
177 700 000 Ft177.7 M Ft 981 768 Ft/m2
7 szoba
181 m2
építés éve:2022

Részletes adatok

Állapot: Újszerű
Telekméret: 355 m2
Fűtés: Egyéb
Parkolás: Garázs, Kocsibeálló
Közmű: Víz, Gáz, Villany, Csatorna
Energetikai besorolás: Nem adta meg a hirdető

Az OTP Bank lakáshitel ajánlataFizetett hirdetés

+36 70 432
Tatár Szabolcs
Otthon Plusz Ingatlan

Érdekel az OTP Bank kedvezményes lakáshitel ajánlata? *

* A kérdésre „Igen” válasz bejelölése esetén, az „Üzenet küldése” gombra kattintva kijelentem, hogy az OTP Bank Nyrt. Adatkezelési tájékoztatójának tartalmát megismertem és tudomásul vettem.

Eladó ikerház leírása

Hivatkozzon erre, kód: 4589TSZ

ÁRCSÖKKENÉS! 199.99mFt helyett 177.7mFt!

- PRÉMIUM KATEGÓRIA

- AZONNAL KÖLTÖZHETŐ

- KÉT GENERÁCIÓNAK IS ALKALMAS

- 2 NAPPALI, 5 SZOBA, 3 FÜRDŐSZOBA, DUPLA GARÁZS, HATALMAS MŰFŰVEL BORÍTOTT TERASZ

- 10KW NAPELEM RENDSZER, HŐSZIVATTYÚS FŰTÉS

- SZÁMOS EXTRA

Érd Felső Parkvárosban csendes, családi házas övezetben 355nm-es telekkel rendelkező, két generációnak is alkalmas, 3 szintes, 2 nappalis + 5 szobás, 3 fürdőszobás, összesen nettó 181.11nm-es ( + dupla garázs + terasz), újszerű állapotú ikerházi lakás számos extrával eladó!

Az ingatlan szintenkénti felosztása a következő:

Szuterén-lakás (37.09nm): előtér (3.65nm), konyha – étkező – nappali (18.93nm), fürdő – wc (5.22nm), szoba (9.29nm). Kiválóan alkalmas irodának, hobby helyiségnek, de akár konditeremnek, szalonnak is!

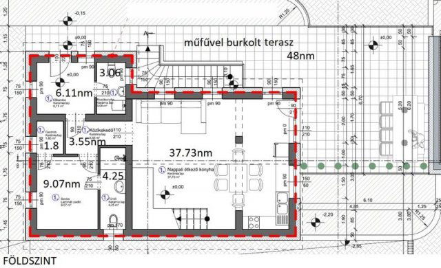
Földszint (65.57nm + 31.72nm dupla garázs + 2 gk-s fedett beálló + terasz): előtér (6.11nm), közlekedő (3.55nm), mosókonyha (3.06nm), szoba (9.07nm), gardrób (1.80nm), fürdő (4.25nm), konyha – étkező – nappali (37.73nm), hatalmas műfűvel burkolt 48nm terasz – elektromos árnyékolástechnikával kiegészítve.

Emelet (78.45nm): közlekedő (9.53nm), szoba (16.10nm), szoba (16.68nm), szoba (13.44nm), gardrób (8.50nm), fürdő (6.49nm).

Szerkezeti leírás: Az ingatlan 2022-ben épült beton alapra. 30-as tégla főfalak + 10cm dryvit szigetelés. A külső nyílászárók műanyag szerkezetűek, hőszigetelt üvegezéssel ellátva, redőnyökkel és szúnyoghálóval felszerelve. A belső nyílászárók dekorfóliás ajtók. Szintek között beton födém, míg a zárófödém fa szerkezetű, 30cm kőzetgyapot szigeteléssel ellátva. Cserép fedésű tető.

Fűtés, meleg víz ellátás: A fűtés és meleg víz ellátás hőszivattyúról (opcionálisan átállítható kondenzációs kombi-gázcirkóra) üzemel, minden helyiségben padlófűtésen keresztül. 10kW-os napelem rendszer gondoskodik az energiatakarékosságról. Alternatív hőleadáshoz hűtő – fűtő klímák lettek felszerelve.

Parkolás: dupla garázsban lehetséges, valamint további 2 autónak fedett beálló áll rendelkezésre.

Extrák: mindkét lakrészben minőségi, beépített-gépesített konyhabútor (sütő, főzőlap, pára-és szagelszívó, hűtő, mosogatógép), redőnyök, szúnyoghálók, műkő párkányok, kamerarendszer, riasztó, öntözőrendszer, elektromos utcafronti és garázskapu. Az ingatlan akár komplett bútorozottsággal is megvásárolható!

Megközelíthetőség és infrastruktúra jó! Buszmegálló kb. 15 perc sétatávolságra található. Óvoda, iskola a közelben! Bevásárlási lehetőségek, posta, gyógyszertár, orvosi rendelők gépkocsival 5-10 perc alatt elérhetők! Az M7-es, M0-ás autópálya szintén pár perc.

További hasonló ingatlanok találhatók még a kínálatunkban!

Szüksége van hitelre? SEGÍTÜNK!

Bankfüggetlen hitel tanácsadónk díjmentesen áll az Ön rendelkezésére! Keressen bizalommal!

A hirdetésben szereplő adatok, információk, képek, alaprajzok stb... tájékoztató jellegűek! Irodánk az esetleges elírásokért felelősséget nem tud vállalni!

Tájékoztatjuk a Tisztelt Érdeklődőket, hogy az ingatlan hirdetésében szereplő telefonszám felhívásával Önök hozzájárulnak személyes adataik (név, telefonszám), a hirdetést feladó -Otthonplusz.hu Kft. - által a bizalmas kezeléshez és nyilvántartáshoz.

Hirdetés feltöltve: 2024. 01. 11. Utoljára módosítva: 2025. 11. 03.

Az ingatlan elhelyezkedése

Cím: Érd

Eladó ikerházak a környékről

Eladó ikerház
Eladó ikerház

Szentendre

179 M Ft
5 + 1 szoba
147 m2
Eladó ikerház
Eladó ikerház

Érd

139.9 M Ft
5 szoba
157 m2
Eladó ikerház
Eladó ikerház

Érd, Érdliget - Kutyavár, Ligetszépe út

149 M Ft
1 szoba
180 m2
Eladó ikerház
Eladó ikerház

Érd

148 M Ft
4 szoba
138 m2
Eladó ikerház
Eladó ikerház

Szentendre

359 M Ft
5 szoba
289 m2
Eladó ikerház
Eladó ikerház

Diósd

213.46 M Ft
5 szoba
186 m2
Eladó ikerház
Eladó ikerház

Üröm

249.9 M Ft
4 szoba
154 m2
Eladó ikerház
Eladó ikerház

Érd

119 M Ft
4 szoba
115 m2
Eladó ikerház
Eladó ikerház

Érd

148 M Ft
4 szoba
140 m2
Eladó ikerház
Eladó ikerház

Vác

175.356 M Ft
5 szoba
165 m2
Eladó ikerház
Eladó ikerház

Vác

149.9 M Ft
5 szoba
202 m2
Eladó ikerház
Eladó ikerház

Veresegyház

145 M Ft
4 szoba
120 m2
Eladó ikerház
Eladó ikerház

Pilisjászfalu

70.563 M Ft
4 szoba
61 m2
Eladó ikerház
Eladó ikerház

Érd, Érdligeten található utca

64.9 M Ft
4 szoba
112 m2
Eladó ikerház
Eladó ikerház

Érd

139.9 M Ft
5 szoba
158 m2
Eladó ikerház
Eladó ikerház

Érd

169.9 M Ft
5 szoba
157 m2
Eladó ikerház
Eladó ikerház

Tahitótfalu

88.9 M Ft
4 szoba
110 m2
Eladó ikerház
Eladó ikerház

Érd

139.9 M Ft
5 szoba
210 m2
Eladó ikerház
Eladó ikerház

Mogyoród, Fóti út

188 M Ft
6 szoba
182 m2
Eladó ikerház
Eladó ikerház

Szentendre, Szentendre

398 M Ft
5 szoba
267 m2
Eladó ikerház
Eladó ikerház

Érd

148 M Ft
4 szoba
138 m2
Eladó ikerház
Eladó ikerház

Érd

78.9 M Ft
4 szoba
83 m2
Eladó ikerház
Eladó ikerház

Érd

84.7 M Ft
4 szoba
130 m2
Eladó ikerház
Eladó ikerház

Vác

94.5 M Ft
4 + 1 szoba
126 m2

Falusi CSOK ingatlanok

Eladó családi ház
Eladó családi ház

Kenyeri

39.9 M Ft
3 szoba
94 m2
Eladó családi ház
Eladó családi ház

Dunaszekcső

27.5 M Ft
3 szoba
128 m2
Eladó téglalakás
Eladó téglalakás

Újlengyel

72.99 M Ft
2 szoba
68 m2
Eladó családi ház
Eladó családi ház

Bár

89.5 M Ft
4 + 1 szoba
172 m2
Eladó családi ház
Eladó családi ház

Táborfalva

59.9 M Ft
3 szoba
84 m2
Eladó családi ház
Eladó családi ház

Berzence

38.7 M Ft
5 szoba
110 m2
Eladó családi ház
Eladó családi ház

Kisdér

149.8 M Ft
4 szoba
205 m2
Eladó családi ház
Eladó családi ház

Jászalsószentgyörgy

39.9 M Ft
2 szoba
74 m2