Seven Pearl

Eladó ikerház
Mende

+ 7 kép 1/10
85 000 000 Ft85 M Ft 904 255 Ft/m2
4 szoba
94 m²
építés éve:2026

Részletes adatok

Telekméret: 981 m2
Fűtés: Egyéb
Energetikai besorolás: Nem adta meg a hirdető

Az OTP Bank lakáshitel ajánlataFizetett hirdetés

+36 20 207
Palotainé Kovács Gabriella
referens

Érdekel az OTP Bank kedvezményes lakáshitel ajánlata? *

* A kérdésre „Igen” válasz bejelölése esetén, az „Üzenet küldése” gombra kattintva kijelentem, hogy az OTP Bank Nyrt. Adatkezelési tájékoztatójának tartalmát megismertem és tudomásul vettem.

Eladó ikerház leírása

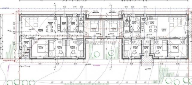
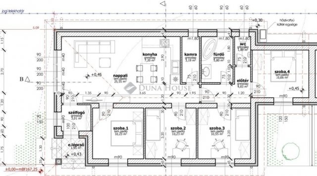
MENDE PUSZTASZENTISTVÁNI RÉSZÉN ÚJ ÉPÍTÉSŰ, 3 SZOBÁS OTTHON SAJÁT KERTTEL!Vasútállomáshoz közel, mégis csendes, nyugodt környezetben!Ikerház: ELSŐ HÁZMendén, a közkedvelt Pusztaszentistváni részen, a vasútállomástól nem messze de kellő távolságra ahhoz, hogy a vonatok zaja ne legyen zavaró kínálok megvételre egy nettó 94 m²-es, új építésű, kiváló elosztású családi otthont.A 981 m²-es telken elhelyezkedő első ingatlanhoz 250 m² kizárólagos használatú kert tartozik tökéletes választás pihenéshez, kerti sütögetéshez, medencéhez vagy akár mobilgarázs kialakításához.Itt valóban megvan az intimitás és a nyugalom!MŰSZAKI TARTALOM IDŐTÁLLÓ MINŐSÉG30 cm-es nútféderes tégla falazatFa födémAntracit betoncserép fedés15 cm EPS homlokzati szigetelés10 cm Austrotherm padlószigetelés25 cm ásványgyapot födémszigetelés6 légkamrás, 3 rétegű üvegezésű nyílászárókMODERN, GAZDASÁGOS FŰTÉS10 kW-os monoblokkos hőszivattyúTeljes körű padlófűtésAlacsony fenntartás, korszerű megoldások.PRAKTIKUS, CSALÁDBARÁT ELRENDEZÉS3 tágas szobaAmerikai konyhás nappaliFürdőszoba + külön WCKülön háztartási helyiségÁtgondolt alaprajz, élhető terek.VÁLASZTHATÓ BURKOLATOK ÉS SZANITEREK (KÖLTSÉGKERETEN BELÜL)Hideg- és melegburkolatok: 5.000 Ft/m²-igCsaptelepek: 25.000 Ft/dbKád vagy zuhany: 70.000 FtBeltéri ajtók: 50.000 Ft/dbFalsík mögötti WC rendszerMagasabb kategória is választható, különbözet ráfizetésével.ELEKTROMOS KIÉPÍTÉSSzobákban: 3-3 konnektorNappaliban: 4 konnektor + internet + kábel TVKonyhában: 6 konnektorHelyiségenként világítási kiállásKábel TV előkészítésRiasztó- és kapumozgató elektronika előkészítésMEGBÍZHATÓ KIVITELEZŐA kivitelező Kókán,Sülysápon, több mint 30 ingatlant épített.Referenciaházakat komoly érdeklődés esetén szívesen mutatok!Várható átadás: 2026. SZEPTEMBER-OKTÓBERHa szeretné biztos, értékálló helyen tudni családja új otthonát Mendén, hívjon bizalommal!Nézzük meg együtt leendő ÚJ OTTHONÁT!Független hitelügyintézővel is segítem a vásárlást.
Kovács Gabriella,Tel:+36/202070435,e-mail:palotaine.gabriella@dh.hu

Referencia szám: HZ040483

Hirdetés feltöltve: 2026. 04. 10. Utoljára módosítva: 2026. 04. 11.

Az ingatlan elhelyezkedése

Cím: Mende

Eladó ikerházak a környékről

Mende
Eladó ikerház

Mende

132.5 M Ft
5 szoba
127 m²
Pécel
Eladó ikerház

Pécel

149.9 M Ft
5 szoba
306 m²
Vácrátót
Eladó ikerház

Vácrátót

94.9 M Ft
2 + 3 szoba
108 m²
Mende
Eladó ikerház

Mende

85 M Ft
4 szoba
94 m²
Diósd
Eladó ikerház

Diósd

206.25 M Ft
5 szoba
184 m²
Vác
Eladó ikerház

Vác

96.7 M Ft
4 + 1 szoba
126 m²
Vác
Eladó ikerház

Vác

149.9 M Ft
5 szoba
202 m²
Szentendre
Eladó ikerház

Szentendre

179 M Ft
5 + 1 szoba
147 m²
Mende, Dobó István utca
Eladó ikerház

Mende

130.5 M Ft
5 szoba
127 m²
Szentendre
Eladó ikerház

Szentendre

359 M Ft
5 + 1 szoba
289 m²
Mende
Eladó ikerház

Mende

95 M Ft
4 szoba
94 m²
Dunakeszi
Eladó ikerház

Dunakeszi

178 M Ft
6 szoba
140 m²
Nagytarcsa
Eladó ikerház

Nagytarcsa

119.9 M Ft
4 szoba
103 m²
Mende
Eladó ikerház

Mende

85 M Ft
4 szoba
94 m²
Mende
Eladó ikerház

Mende

130.5 M Ft
5 szoba
127 m²
Mende
Eladó ikerház

Mende

85 M Ft
4 szoba
94 m²
Hernád
Eladó ikerház

Hernád

41.3 M Ft
3 szoba
68 m²
Mende
Eladó ikerház

Mende

89.9 M Ft
4 szoba
80 m²
Mende
Eladó ikerház

Mende

89.9 M Ft
3 szoba
76 m²
Kiskunlacháza
Eladó ikerház

Kiskunlacháza

44.9 M Ft
2 szoba
39 m²
Pécel, Pécel - kertváros
Eladó ikerház

Pécel

127 M Ft
4 szoba
125 m²
Mende
Eladó ikerház

Mende

130.5 M Ft
5 szoba
127 m²
Diósd
Eladó ikerház

Diósd

213.46 M Ft
5 szoba
186 m²
Mende
Eladó ikerház

Mende

95 M Ft
4 szoba
94 m²

Falusi CSOK ingatlanok

Bácsbokod
Eladó családi ház

Bácsbokod

55 M Ft
6 szoba
250 m²
Jobbágyi
Eladó családi ház

Jobbágyi

399 M Ft
6 + 1 szoba
200 m²
Ceglédbercel
Eladó családi ház

Ceglédbercel

95 M Ft
6 szoba
220 m²
Enese
Eladó családi ház

Enese

94.99 M Ft
3 + 1 szoba
124 m²
Apaj
Eladó családi ház

Apaj

52.9 M Ft
3 szoba
70 m²
Nagyharsány
Eladó téglalakás

Nagyharsány

22.5 M Ft
3 szoba
71 m²
Harsány
Eladó családi ház

Harsány

51.9 M Ft
5 szoba
140 m²
Nagybaracska
Eladó családi ház

Nagybaracska

35 M Ft
3 szoba
110 m²