Astora Márvány8

Eladó ikerház
Mende

+ 7 kép 1/10
85 000 000 Ft85 M Ft 904 255 Ft/m2
4 szoba
94 m²
építés éve:2026

Részletes adatok

Telekméret: 981 m2
Fűtés: Egyéb
Energetikai besorolás: Nem adta meg a hirdető

Az OTP Bank lakáshitel ajánlataFizetett hirdetés

3629769723
Majzikné Tóth Krisztina
referens

Érdekel az OTP Bank kedvezményes lakáshitel ajánlata? *

* A kérdésre „Igen” válasz bejelölése esetén, az „Üzenet küldése” gombra kattintva kijelentem, hogy az OTP Bank Nyrt. Adatkezelési tájékoztatójának tartalmát megismertem és tudomásul vettem.

Eladó ikerház leírása

MENDE PUSZTASZENTISTVÁNI RÉSZÉN ÚJ ÉPÍTÉSŰ, 3 SZOBÁS OTTHON SAJÁT KERTTEL!

Ikerház: ELSŐ HÁZ

Vasútállomáshoz közel, mégis csendes, nyugodt környezetben!

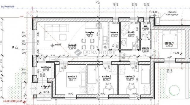
Mendén, a közkedvelt Pusztaszentistváni részen, a vasútállomástól nem messze de kellő távolságra ahhoz, hogy a vonatok zaja ne legyen zavaró kínálok megvételre egy nettó 94 m²-es, új építésű, kiváló elosztású családi otthont.

A 981 m²-es telken elhelyezkedő első ingatlanhoz 250 m² kizárólagos használatú kert tartozik tökéletes választás pihenéshez, kerti sütögetéshez, medencéhez vagy akár mobilgarázs kialakításához.

Itt valóban megvan az intimitás és a nyugalom!

MŰSZAKI TARTALOM IDŐTÁLLÓ MINŐSÉG
30 cm-es nútféderes tégla falazat
Fa födém
Antracit betoncserép fedés
15 cm EPS homlokzati szigetelés
10 cm Austrotherm padlószigetelés
25 cm ásványgyapot födémszigetelés
6 légkamrás, 3 rétegű üvegezésű nyílászárók

MODERN, GAZDASÁGOS FŰTÉS

10 kW-os monoblokkos hőszivattyú

Teljes körű padlófűtés

Alacsony fenntartás, korszerű megoldások.

PRAKTIKUS, CSALÁDBARÁT ELRENDEZÉS
3 tágas szoba
Amerikai konyhás nappali
Fürdőszoba + külön WC
Külön háztartási helyiség

Átgondolt alaprajz, élhető terek.

VÁLASZTHATÓ BURKOLATOK ÉS SZANITEREK (KÖLTSÉGKERETEN BELÜL)

Hideg- és melegburkolatok: 5.000 Ft/m²-ig
Csaptelepek: 25.000 Ft/db
Kád vagy zuhany: 70.000 Ft
Beltéri ajtók: 50.000 Ft/db
Falsík mögötti WC rendszer

Magasabb kategória is választható, különbözet ráfizetésével.

ELEKTROMOS KIÉPÍTÉS

Szobákban: 3-3 konnektor
Nappaliban: 4 konnektor + internet + kábel TV
Konyhában: 6 konnektor
Helyiségenként világítási kiállás
Kábel TV előkészítés
Riasztó- és kapumozgató elektronika előkészítés

MEGBÍZHATÓ KIVITELEZŐ

A kivitelező Kókán,Sülysápon, több mint 30 ingatlant épített.

Referenciaházakat komoly érdeklődés esetén szívesen mutatok!

Várható átadás: 2026. SZEPTEMBER-OKTÓBER

Ha szeretné biztos, értékálló helyen tudni családja új otthonát Mendén, hívjon bizalommal!

Nézzük meg együtt leendő ÚJ OTTHONÁT!

Független hitelügyintézővel is segítem a vásárlást.
Érd.: Majzikné Tóth Krisztina, tel.: +36/20 927 3299, e-mail: majzikne.krisztina@dh.hu

Referencia szám: HZ040483

Hirdetés feltöltve: 2026. 04. 11.

Az ingatlan elhelyezkedése

Cím: Mende

Eladó ingatlanok a környékről

Mende
Eladó ikerház

Mende

85 M Ft
4 szoba
94 m²
Mende
Eladó ikerház

Mende

85 M Ft
4 szoba
94 m²
Törökbálint
Eladó telek

Törökbálint

35 M Ft
834 m²
0 m²
Dunakeszi
Eladó ikerház

Dunakeszi

149 M Ft
1 + 4 szoba
127 m²
Érd
Eladó ikerház

Érd

177.7 M Ft
7 szoba
181 m²
Szentendre
Eladó ikerház

Szentendre

179 M Ft
5 + 1 szoba
147 m²
Dunakeszi
Eladó ikerház

Dunakeszi

178 M Ft
6 szoba
140 m²
Kiskunlacháza
Eladó családi ház

Kiskunlacháza

450 M Ft
5 + 1 szoba
405 m²
Szigetszentmiklós
Eladó téglalakás

Szigetszentmiklós

45.9 M Ft
1 szoba
34 m²
Pécel, Pécel - kertváros
Eladó ikerház

Pécel

127 M Ft
4 szoba
125 m²
Ráckeve
Eladó sorház

Ráckeve

79.9 M Ft
3 + 1 szoba
150 m²
Mende
Eladó ikerház

Mende

85 M Ft
4 szoba
94 m²
Mende
Eladó ikerház

Mende

95 M Ft
4 szoba
94 m²
Mende
Eladó ikerház

Mende

85 M Ft
4 szoba
94 m²
Mende
Eladó ikerház

Mende

95 M Ft
4 szoba
94 m²
Mogyoród
Eladó ikerház

Mogyoród

135 M Ft
5 szoba
137 m²
Pécel
Eladó ikerház

Pécel

149.9 M Ft
5 szoba
306 m²
Mende
Eladó ikerház

Mende

84.9 M Ft
4 szoba
93 m²
Érd
Eladó ikerház

Érd

69.9 M Ft
2 szoba
65 m²
Mende
Eladó ikerház

Mende

95 M Ft
4 szoba
94 m²
Nagytarcsa
Eladó ikerház

Nagytarcsa

119.9 M Ft
4 szoba
103 m²
Mende
Eladó ikerház

Mende

95 M Ft
4 szoba
94 m²
Mende
Eladó ikerház

Mende

89.9 M Ft
4 szoba
93 m²
Mende
Eladó ikerház

Mende

95 M Ft
4 szoba
94 m²

Falusi CSOK ingatlanok

Lovászi
Eladó családi ház

Lovászi

25 M Ft
3 + 1 szoba
120 m²
Bakonypéterd
Eladó családi ház

Bakonypéterd

44.9 M Ft
3 szoba
92 m²
Bősárkány
Eladó családi ház

Bősárkány

60 M Ft
4 szoba
107 m²
Badacsonytördemic
Eladó családi ház

Badacsonytördemic

90 M Ft
3 szoba
130 m²
Kálmáncsa
Eladó családi ház

Kálmáncsa

5.5 M Ft
2 szoba
93 m²
Bőny
Eladó sorház

Bőny

37.8 M Ft
3 szoba
63 m²
Kenyeri
Eladó családi ház

Kenyeri

39.9 M Ft
3 szoba
94 m²
Bagod
Eladó családi ház

Bagod

52 M Ft
2 + 2 szoba
112 m²