NapForrás 20 - Buda

Eladó téglalakás
Mosonszolnok, földszint

85 000 000 Ft85 M Ft 817 308 Ft/m2
4 szoba
104 m²
földszint
építés éve:2024

Részletes adatok

Fűtés: Egyéb
Emelet: földszint
Energetikai besorolás: Nem adta meg a hirdető

Az OTP Bank lakáshitel ajánlataFizetett hirdetés

+36 70 372
Dobos András
referens

Érdekel az OTP Bank kedvezményes lakáshitel ajánlata? *

* A kérdésre „Igen” válasz bejelölése esetén, az „Üzenet küldése” gombra kattintva kijelentem, hogy az OTP Bank Nyrt. Adatkezelési tájékoztatójának tartalmát megismertem és tudomásul vettem.

Eladó téglalakás leírása

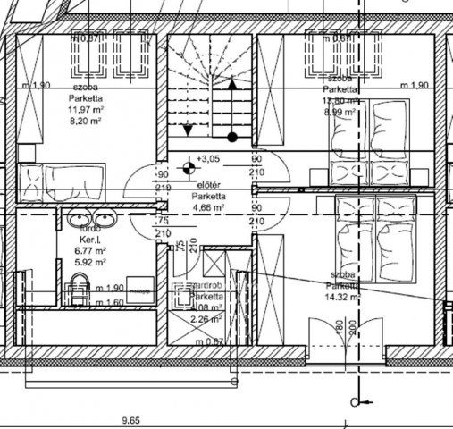
Győr-Moson-Sopron vármegyében Mosonszolnokon lakás eladó. A beruházó magas kivitelezésű, minőségi építőanyagok felhasználásával kezdi meg a társasház építését, melynek a földszintjén saját kertkapcsolattal, terasszal, garázzsal rendelkező - belső kétszintes - ingatlant kínálom eladásra. Az ár fűtéskész állapotra vonatkozik, mely tartalmazza: Gázkazános vagy hőszivattyús padlófűtés, víz,-csatorna és elektromos alapszerelés nyomáspróbával, belső falak anyagában simított vakolattal, egyenes gipszkarton álmennyezet, 2 db klíma csövezés 2 m csőhosszig. Terasz és belépő kaviccsal vagy nyersbeton, járda murvázva. Hűtő-fűtő klíma br 400.000 Ft/ db áron rendelhető. Az ingatlan előtt felszíni parkoló kerül kialakításra. Kulcsrakész befejezés is lehetséges egyéni igényekkel egyeztetve.
Mosonszolnok falu a Fertő tó és a Duna között az M1-es autópályától 6 km-re a Mosoni-síkságon a Szigetköz és a Fertő-Hanság-medence találkozásánál fekszik. Mosonmagyaróvár 10, Győr 45 km távolságra található. A településen magas szintű az infrastrukturális ellátottság, hiszen megtalálható, bölcsőde, óvoda, általános iskola, élelmiszer bolt, háziorvosi szolgálat, községháza, vasútállomás is. Az építkezés helyszínét, a tervdokumentációkat a helyszínen illetve irodánkban is prezentálom ügyfeleim részére. OTTHON START HITELPROGRAM! Kérdés esetén és további információval kapcsolatosan keressen bizalommal elérhetőségeimen!

85000000 Ft
Tekintse meg személyesen, várom hívását!
Dobos András +36703724717

Referencia szám: M281320

Hirdetés feltöltve: 2026. 03. 20. Utoljára módosítva: 2026. 04. 27.

Az ingatlan elhelyezkedése

Cím: Mosonszolnok, földszint

Eladó ingatlanok a környékről

Győr
Eladó családi ház

Győr

101.9 M Ft
1907 m²
143 m²
Győr
Eladó családi ház

Győr

85 M Ft
4 + 1 szoba
124 m²
Hegyeshalom
Eladó családi ház

Hegyeshalom

105 M Ft
5 + 2 szoba
262 m²
Bakonyszentlászló
Eladó családi ház

Bakonyszentlászló

117 M Ft
4 szoba
258 m²
Hegyeshalom
Eladó téglalakás

Hegyeshalom

21.9 M Ft
63 m²
Győr
Eladó téglalakás

Győr

38.99 M Ft
2 szoba
43 m²
Nagycenk
Eladó téglalakás

Nagycenk

68.9 M Ft
1 + 2 szoba
62 m²
Győrújbarát
Eladó téglalakás

Győrújbarát

84.9 M Ft
1 + 3 szoba
76 m²
Győr
Eladó téglalakás

Győr

89 M Ft
4 szoba
112 m²
Győr
Eladó családi ház

Győr

56.9 M Ft
3 szoba
62 m²
Győr
Eladó családi ház

Győr

125.9 M Ft
5 szoba
260 m²
Mosonmagyaróvár
Eladó téglalakás

Mosonmagyaróvár

77 M Ft
2 szoba
60 m²
Mosonszolnok
Eladó téglalakás

Mosonszolnok

65 M Ft
2 szoba
72 m²
Győr, Újváros, Munkás utca
Eladó téglalakás

Győr

39.9 M Ft
1 szoba
47 m²
Győr
Eladó téglalakás

Győr

38.99 M Ft
2 szoba
43 m²
Máriakálnok
Eladó családi ház

Máriakálnok

40.5 M Ft
2 szoba
54 m²
Sopron
Eladó téglalakás

Sopron

96.9 M Ft
3 szoba
72 m²
Győrság
Eladó családi ház

Győrság

79.5 M Ft
4 szoba
91 m²
Győr
Eladó téglalakás

Győr

48.99 M Ft
3 szoba
57 m²
Mosonszolnok
Eladó téglalakás

Mosonszolnok

90 M Ft
4 szoba
111 m²
Szerecseny
Eladó családi ház

Szerecseny

40.99 M Ft
2 szoba
67 m²
Győrújbarát
Eladó családi ház

Győrújbarát

84.9 M Ft
2 + 1 szoba
91 m²
Győr
Eladó téglalakás

Győr

38.99 M Ft
2 szoba
46 m²
Győrladamér
Eladó családi ház

Győrladamér

160 M Ft
6 szoba
210 m²

Falusi CSOK ingatlanok

Hegyeshalom, Margaréta utca 12
Eladó téglalakás

Hegyeshalom

50.09 M Ft
2 szoba
43 m²
Kunadacs
Eladó családi ház

Kunadacs

74 M Ft
5 szoba
220 m²
Nagyberki
Eladó családi ház

Nagyberki

39.9 M Ft
5 szoba
170 m²
Marcalgergelyi
Eladó családi ház

Marcalgergelyi

31 M Ft
2 + 1 szoba
120 m²
Pécsvárad
Eladó családi ház

Pécsvárad

140 M Ft
4 + 1 szoba
119 m²
Jászkarajenő
Eladó családi ház

Jászkarajenő

17.5 M Ft
2 + 1 szoba
47 m²
Mád
Eladó családi ház

Mád

48 M Ft
3 szoba
181 m²
Hegyeshalom, Margaréta utca 12
Eladó téglalakás

Hegyeshalom

32.89 M Ft
1 szoba
27 m²