Astora Art House

Eladó téglalakás
Mosonszolnok, földszint

90 000 000 Ft90 M Ft 810 811 Ft/m2
4 szoba
111 m²
földszint
építés éve:2024

Részletes adatok

Fűtés: Egyéb
Emelet: földszint
Komfort: Összkomfortos
Energetikai besorolás: Nem adta meg a hirdető

Az OTP Bank lakáshitel ajánlataFizetett hirdetés

+36 70 372
Dobos András
referens

Érdekel az OTP Bank kedvezményes lakáshitel ajánlata? *

* A kérdésre „Igen” válasz bejelölése esetén, az „Üzenet küldése” gombra kattintva kijelentem, hogy az OTP Bank Nyrt. Adatkezelési tájékoztatójának tartalmát megismertem és tudomásul vettem.

Eladó téglalakás leírása

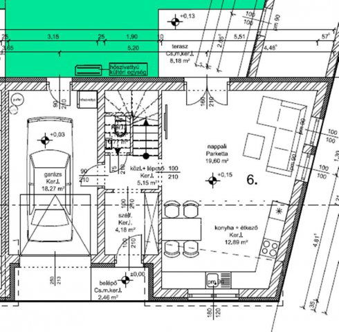
Győr-Moson-Sopron vármegyében Mosonszolnokon lakás eladó. A beruházó magas kivitelezésű, minőségi építőanyagok felhasználásával kezdi meg a társasház építését, melynek a földszintjén saját kertkapcsolattal, terasszal, garázzsal rendelkező - belső kétszintes - ingatlant kínálom eladásra. Az ár fűtéskész állapotra vonatkozik, mely tartalmazza: Gázkazános vagy hőszivattyús padlófűtés, víz,-csatorna és elektromos alapszerelés nyomáspróbával, belső falak anyagában simított vakolattal, egyenes gipszkarton álmennyezet, 2 db klíma csövezés 2 m csőhosszig. Terasz és belépő kaviccsal vagy nyersbeton, járda murvázva. Hűtő-fűtő klíma br 400.000 Ft/ db áron rendelhető. Az ingatlan előtt felszíni parkoló kerül kialakításra. Kulcsrakész befejezés is lehetséges egyéni igényekkel egyeztetve.
Mosonszolnok falu a Fertő tó és a Duna között az M1-es autópályától 6 km-re a Mosoni-síkságon a Szigetköz és a Fertő-Hanság-medence találkozásánál fekszik. Mosonmagyaróvár 10, Győr 45 km távolságra található. A településen magas szintű az infrastrukturális ellátottság, hiszen megtalálható, bölcsőde, óvoda, általános iskola, élelmiszer bolt, háziorvosi szolgálat, községháza, vasútállomás is. Az építkezés helyszínét, a tervdokumentációkat a helyszínen illetve irodánkban is prezentálom ügyfeleim részére. OTTHON START HITELPROGRAM! Kérdés esetén és további információval kapcsolatosan keressen bizalommal elérhetőségeimen!

Az energetikai tanúsítvány készítése folyamatban van, amint rendelkezésre áll, úgy azzal a hirdetés frissítésre kerül.

90000000 Ft
Tekintse meg személyesen, várom hívását!
Dobos András +36703724717

Referencia szám: M281322

Hirdetés feltöltve: 2026. 03. 21. Utoljára módosítva: 2026. 05. 18.

Az ingatlan elhelyezkedése

Cím: Mosonszolnok, földszint

Eladó ingatlanok a környékről

Győr
Eladó garázs

Győr

6.9 M Ft
13 m²
Fertőrákos
Eladó családi ház

Fertőrákos

179 M Ft
4 szoba
140 m²
Győrújbarát
Eladó családi ház

Győrújbarát

136.9 M Ft
4 szoba
112 m²
Kapuvár
Eladó családi ház

Kapuvár

113 M Ft
5 szoba
140 m²
Csorna
Eladó téglalakás

Csorna

37.8 M Ft
2 szoba
47 m²
Pannonhalma
Eladó családi ház

Pannonhalma

145 M Ft
4 szoba
105 m²
Győr
Eladó téglalakás

Győr

38.99 M Ft
2 szoba
46 m²
Győr
Eladó panellakás

Győr

50.5 M Ft
2 szoba
53 m²
Röjtökmuzsaj
Eladó ipari ingatlan

Röjtökmuzsaj

32.33 M Ft
3290 m²
0 m²
Mosonszolnok
Eladó téglalakás

Mosonszolnok

90 M Ft
4 szoba
111 m²
Röjtökmuzsaj
Eladó ipari ingatlan

Röjtökmuzsaj

18.417 M Ft
1754 m²
1754 m²
Győr
Eladó téglalakás

Győr

38.99 M Ft
2 szoba
43 m²
Mosonmagyaróvár
Eladó családi ház

Mosonmagyaróvár

124.9 M Ft
4 szoba
130 m²
Fertőd
Eladó családi ház

Fertőd

149 M Ft
6 szoba
270 m²
Sopron
Eladó téglalakás

Sopron

109 M Ft
5 szoba
130 m²
Mosonszolnok
Eladó téglalakás

Mosonszolnok

85 M Ft
4 szoba
105 m²
Győr
Eladó téglalakás

Győr

48.99 M Ft
3 szoba
57 m²
Győr
Eladó téglalakás

Győr

199.99 M Ft
3 + 1 szoba
160 m²
Ásványráró
Eladó családi ház

Ásványráró

16.9 M Ft
2 szoba
53 m²
Győr
Eladó telek

Győr

27 M Ft
1154 m²
0 m²
Győr
Eladó téglalakás

Győr

38.99 M Ft
2 szoba
46 m²
Győrújbarát
Eladó téglalakás

Győrújbarát

72.9 M Ft
3 szoba
61 m²
Győr
Eladó téglalakás

Győr

80 M Ft
3 szoba
105 m²
Nagycenk
Eladó téglalakás

Nagycenk

59.9 M Ft
1 + 2 szoba
54 m²

Falusi CSOK ingatlanok

Balatonszemes
Eladó téglalakás

Balatonszemes

119.9 M Ft
2 szoba
0 m²
Seregélyes
Eladó családi ház

Seregélyes

87 M Ft
4 szoba
96 m²
Tápióság
Eladó családi ház

Tápióság

57 M Ft
4 szoba
94 m²
Rábaszentmihály
Eladó családi ház

Rábaszentmihály

53 M Ft
3 szoba
156 m²
Bakonyszentlászló
Eladó családi ház

Bakonyszentlászló

48.5 M Ft
3 szoba
103 m²
Ceglédbercel
Eladó családi ház

Ceglédbercel

89 M Ft
4 szoba
135 m²
Hegyeshalom, Margaréta utca 12
Eladó téglalakás

Hegyeshalom

46.91 M Ft
2 szoba
43 m²
Bag
Eladó családi ház

Bag

79.9 M Ft
5 szoba
124 m²