Astora Olive Club House

Eladó téglalakás
Budapest, XXII. kerület

+ 5 kép 1/8
129 000 000 Ft129 M Ft 1 465 909 Ft/m2
4 szoba
88 m2
építés éve:2026

Részletes adatok

Fűtés: Egyéb
Emelet: földszint
Parkolás: Kocsibeálló
Közmű: Víz, Villany, Csatorna
Energetikai besorolás: Nem adta meg a hirdető

Az OTP Bank lakáshitel ajánlataFizetett hirdetés

+36 70 432
Tatár Szabolcs
Otthon Plusz Ingatlan

Érdekel az OTP Bank kedvezményes lakáshitel ajánlata? *

* A kérdésre „Igen” válasz bejelölése esetén, az „Üzenet küldése” gombra kattintva kijelentem, hogy az OTP Bank Nyrt. Adatkezelési tájékoztatójának tartalmát megismertem és tudomásul vettem.

Eladó téglalakás leírása

Hivatkozzon erre, kód: 5086TSZ

- ÚJ ÉPÍTÉSŰ LAKÁSOK

- KÖLTSÉGHATÉKONY, ÉRTÉKÁLLÓ BEFEKTETÉS

- NAPPALI + 2-3 SZOBA, FELSZÍNI PARKOLÓ

- IGÉNY SZERINTI BEFEJEZÉS, MAGAS MŰSZAKI TARTALOM

Budafok csendes, zöldövezeti részén új építésű 5 lakásos társasházban költséghatékony, kényelmes terekkel rendelkező nappali + 2-3 szobás lakások leköthetők gk. beállóval, igény szerinti befejezéssel.

Várható átadás: 2026. december.

A kivitelező több éves tapasztalattal, számos referencia ingatlannal rendelkezik.

JELEN HIRDETÉSBEN SZEREPLŐ LAKÁS:

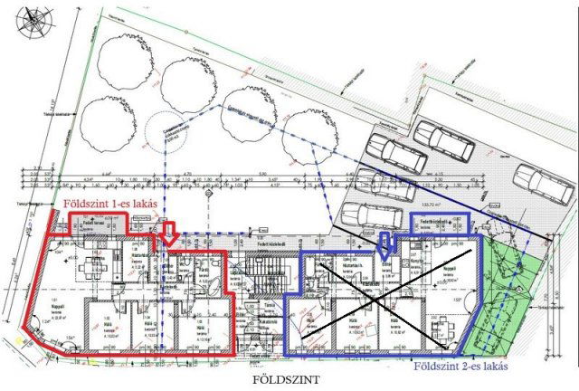
Földszint 1-es lakás – 129.000.000,- Ft (88.16m2 + fedett terasz 6m2): előtér (3.42m2), közlekedő (8.16m2), wc (1.98m2), fürdőszoba (5.22m2), szoba (13.44m2), szoba (10.03m2), szoba (10.03m2), gardrób (4.64m2), tároló (5.51m2), konyha (8.03m2) – étkező – nappali (17.70m2), fedett terasz (6m2). /Kód: 5086/

AZ ÉPÜLETBEN TALÁLHATÓ TOVÁBBI LAKÁS KÍNÁLATOK:

FÖLDSZINT:

2-es lakás – 119.000.000,- Ft (86.38m2 + fedett terasz 6m2): előtér (3.06m2), konyha (9.86m2) – étkező – nappali (19.94m2), szoba (10.62m2), szoba (10.62m2), szoba (11.25m2), közlekedő (8.85m2), tároló (5.04m2), fürdőszoba (4.08m2), fürdő (3.06m2), fedett terasz (6m2). /Kód: 5087/

EMELET:

3-as lakás: ELADVA!

4-es lakás – 79.900.000,- Ft (55.27m2): előtér (4.59m2), dolgozó – kis szoba (5.22m2), tároló (2.02m2), fürdőszoba (4.50m2), szoba (12.16m2), konyha (8.28m2) – étkező – nappali (18.50m2). /kód: 5089/

5-ös lakás – 99.900.000,- Ft (65.13m2 + erkély 6m2): előtér (3.06m2), közlekedő (5.50m2), tároló (5.04m2), wc (1.09m2), fürdőszoba (3.98m2), szoba (10.62m2), szoba (10.62m2), konyha (7.21m2) – étkező – nappali (18.01m2), erkély (6m2). /Kód: 5090/

Szerkezeti leírás: Az épület beton alapra épül. 30-as tégla főfalak + 15cm grafitos dryvit szigetelés. 10-es vakolt tégla válaszfalak. Kívül barnára színterezett 3 rétegű bukó – nyíló, műanyag szerkezetű nyílászárók – redőnytokokkal ellátva. A közbenső födém betongerendás, míg a zárófödém fa szerkezetű + 20cm kőzetgyapot szigetelés. Cserép fedésű tető, alatta fóliaréteg.

Az igény szerinti befejezésnek köszönhetően a beltéri ajtók 70.000,- Ft / db áron, a meleg burkolatok 5.000,- Ft / m2, a hideg burkolatok 7.000,- Ft / m2 árig választhatóak. Lehetpség van az igény szerinti szaniterek kiválasztására is.
Riasztó előkészítést és viacolorozott autóbeállót tartalmaz a vételár.

Fűtés, meleg víz ellátás: A lakások fűtése és meleg víz ellátása energiatakarékos 10Kw-os Fischer típusú hőszivattyúról biztosított. A fűtést minden helyiségben padlófűtés szolgáltatja.

Parkolás: zárt udvaron belül lakásonként 1 gépkocsinak fedetlen-felszíni beálló áll rendlekezésre.

Megközleíthetőség és infrastruktúra kiváló! Buszmegálló, villamosmegálló pár perc sétatávolságra található. Közintézmények, bevásárlási lehetőségek szintén a közelben.

További hasonló ingatlanok találhatók még a kínálatunkban!

Szüksége van hitelre? SEGÍTÜNK!

Bankfüggetlen hitel tanácsadónk díjmentesen áll az Ön rendelkezésére! Keressen bizalommal!

A hirdetésben szereplő adatok, információk, képek, alaprajzok stb... tájékoztató jellegűek! Irodánk az esetleges elírásokért felelősséget nem tud vállalni!

Tájékoztatjuk a Tisztelt Érdeklődőket, hogy az ingatlan hirdetésében szereplő telefonszám felhívásával Önök hozzájárulnak személyes adataik (név, telefonszám), a hirdetést feladó -Otthonplusz.hu Kft. - által a bizalmas kezeléshez és nyilvántartáshoz.

Hirdetés feltöltve: 2026. 01. 17.

4 szobás téglalakások ára Budapesten

Ebből az összehasonlításból megtudhatod, hogyan viszonyul a lakás ára a környékbeli téglalakások átlagos árához. Ez nem azt jelenti, hogy ennyivel olcsóbb vagy drágább, mint amennyit a lakás ér, hanem hogy ennyivel tér el a környékbeli átlagtól.

Ennek a m² ára
XXII. kerület m² ár
Budapest m² ár
1466 e Ft
897 e Ft -63%
1758 e Ft 17%
Ennek az ára
XXII. kerület átlagár
Budapest átlagár
129 M Ft m Ft
106.9 m Ft -21%
183.9 m Ft 30%

Az ingatlan elhelyezkedése

Cím: Budapest, XXII. kerület

Eladó ingatlanok a környékről

Eladó téglalakás
Eladó téglalakás

XXII. kerület, Budafok

54 M Ft
2 szoba
50 m2
Eladó ikerház
Eladó ikerház

III. kerület, Csillaghegy

184.9 M Ft
1 + 2 szoba
91 m2
Eladó téglalakás
Eladó téglalakás

XXII. kerület

85 M Ft
4 szoba
115 m2
Eladó panellakás
Eladó panellakás

XIII. kerület, Újlipótváros

61.9 M Ft
1 szoba
38 m2
Eladó téglalakás
Eladó téglalakás

XXII. kerület

85 M Ft
4 szoba
115 m2
Eladó téglalakás
Eladó téglalakás

XIII. kerület, Újlipótváros

240 M Ft
2 szoba
76 m2
Eladó téglalakás
Eladó téglalakás

XXII. kerület, Budafok

160 M Ft
4 szoba
125 m2
Eladó téglalakás
Eladó téglalakás

XXII. kerület, Nagytétény

61.99 M Ft
2 szoba
45 m2
Eladó téglalakás
Eladó téglalakás

XXII. kerület

170 M Ft
5 szoba
128 m2
Eladó téglalakás
Eladó téglalakás

XIII. kerület, Angyalföld, Váci út

44.9 M Ft
1 szoba
35 m2
Eladó téglalakás
Eladó téglalakás

XXII. kerület, Nagytétény, Tenkes

54.9 M Ft
1 + 1 szoba
44 m2
Eladó ikerház
Eladó ikerház

III. kerület, Csillaghegy

209.9 M Ft
1 + 2 szoba
104 m2
Eladó téglalakás
Eladó téglalakás

XV. kerület, Rákospalota

52.5 M Ft
2 szoba
52 m2
Eladó téglalakás
Eladó téglalakás

XXII. kerület

160 M Ft
4 szoba
130 m2
Eladó téglalakás
Eladó téglalakás

XXII. kerület, Budafok

170 M Ft
5 szoba
130 m2
Eladó téglalakás
Eladó téglalakás

XVII. kerület

129.48 M Ft
4 szoba
92 m2
Eladó téglalakás
Eladó téglalakás

VIII. kerület, Józsefváros, Mikszáth Kálmán tér

221.5 M Ft
4 szoba
94 m2
Eladó téglalakás
Eladó téglalakás

XXII. kerület

85 M Ft
4 szoba
115 m2
Eladó téglalakás
Eladó téglalakás

III. kerület, Békásmegyer, Békásmegyer Duna-felőli oldalon

64.9 M Ft
2 szoba
51 m2
Eladó panellakás
Eladó panellakás

III. kerület, Békásmegyer

74.9 M Ft
2 szoba
54 m2
Eladó téglalakás
Eladó téglalakás

XXII. kerület

159 M Ft
6 szoba
170 m2
Eladó téglalakás
Eladó téglalakás

XXII. kerület

85 M Ft
4 szoba
115 m2
Eladó téglalakás
Eladó téglalakás

XXII. kerület

129.9 M Ft
5 szoba
203 m2
Eladó téglalakás
Eladó téglalakás

VII. kerület

120.5 M Ft
2 szoba
71 m2

Falusi CSOK ingatlanok

Eladó családi ház
Eladó családi ház

Fülöpháza

110 M Ft
10 + 3 szoba
330 m2
Eladó családi ház
Eladó családi ház

Szabadbattyán

67.5 M Ft
5 szoba
180 m2
Eladó családi ház
Eladó családi ház

Balatonfőkajár

36 M Ft
2 szoba
95 m2
Eladó családi ház
Eladó családi ház

Tarnaszentmária

22.5 M Ft
3 szoba
100 m2
Eladó családi ház
Eladó családi ház

Németkér

149.9 M Ft
2 szoba
540 m2
Eladó családi ház
Eladó családi ház

Alattyán

45 M Ft
4 + 1 szoba
186 m2
Eladó családi ház
Eladó családi ház

Alattyán

8.5 M Ft
1 + 1 szoba
70 m2
Eladó családi ház
Eladó családi ház

Mikepércs

72.7 M Ft
2 + 1 szoba
68 m2