Metrodom

Eladó téglalakás
Budapest, XXII. kerület, földszint

+ 17 kép 1/20
85 000 000 Ft85 M Ft 739 130 Ft/m2
4 szoba
115 m2
földszint
építés éve:1970

Részletes adatok

Állapot: Felújított
Fűtés: Gázkazán
Energetikai besorolás: Nem adta meg a hirdető

Az OTP Bank lakáshitel ajánlataFizetett hirdetés

+36 70 237
Zatykó Krisztina
referens

Érdekel az OTP Bank kedvezményes lakáshitel ajánlata? *

* A kérdésre „Igen” válasz bejelölése esetén, az „Üzenet küldése” gombra kattintva kijelentem, hogy az OTP Bank Nyrt. Adatkezelési tájékoztatójának tartalmát megismertem és tudomásul vettem.

Eladó téglalakás leírása

FÖLDSZINTI LAKÁS KERTESHÁZBAN ELADÓ DUNATELEPEN
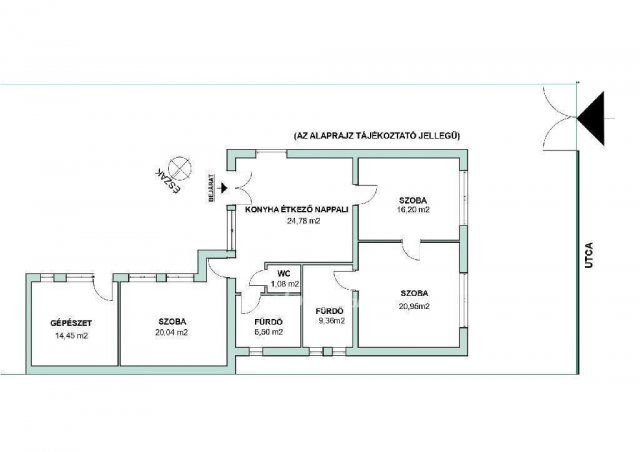
Eladásra kínálunk egy frissen felújított 115 m2-es amerikai konyhás nappali + három teljes értékű szobás, két fürdőszobás, külön wc-vel ellátott földszinti lakást.

A fűtést automata váltókapcsolóval ellátott gáz cirko-, vagy vegyestüzelésű kazán biztosítja egy külön helyiségben, mely háztartási helyiségként is használható.
Az épület szigetelt, a lakást 2005-ben teljeskörűen felújították, azóta is folyamatosan karbantartják.

A kert a három lakás közös használatában áll. Találunk benne kerti sütögetőt kemencével, bringa tárolót, kertibútor tárolót, fedett kiülőt, kis játszóteret mászókával. Igény szerint saját használatú kertrész is kialakítható, ez megegyezés kérdése. A használati megosztási szerződés elkészítése még folyamatban van, alakítható.

A parkolás a telken belül, és az utcán is lehetséges. Az utca zsákutca, átmenő forgalomtól mentes.
Az utca végén Duna part, Kis-Háros sziget, természetvédelmi terület, lovarda, kajak-kenu egyesület és SUP kölcsönzési lehetőség!
Az ingatlan közvetlen közelében helyezkedik el a Dunapart ABC, mely élelmiszer kiskereskedés. 800m-re pedig két élelmiszer áruházlánci egység is elérhető (ALDI, LIDL). Bevásárló központ két kilométerre található, ahol a közműszolgáltatók, telefontársaságok kirendeltségein kívül posta, gyógyszertár, fodrász, fitnesz-terem, benzinkút is megtalálható (CAMPONA Bevásárló Központ)
Háziorvosi rendelő, bölcsőde, óvoda, iskola, 1 km távolságra.
A közelben éjszakai és nappali BKV járatok, agglomeráció felé közlekedő távolsági buszok megállói, és vasútállomás is található, a part mentén kerékpárút vezet, melyen szintén elérhetjük a belvárost.

Igény szerint hitelügyintézést, ügyvédi közreműködést biztosítunk, és segítséget nyújtunk az adásvétel folyamatának intézéséhez.

Referencia szám: M303738

Hirdetés feltöltve: 2025. 08. 22. Utoljára módosítva: 2026. 01. 13.

4 szobás téglalakások ára Budapesten

Ebből az összehasonlításból megtudhatod, hogyan viszonyul a lakás ára a környékbeli téglalakások átlagos árához. Ez nem azt jelenti, hogy ennyivel olcsóbb vagy drágább, mint amennyit a lakás ér, hanem hogy ennyivel tér el a környékbeli átlagtól.

Ennek a m² ára
XXII. kerület m² ár
Budapest m² ár
739 e Ft
935 e Ft 21%
1759 e Ft 58%
Ennek az ára
XXII. kerület átlagár
Budapest átlagár
85 M Ft m Ft
106.9 m Ft 21%
183.6 m Ft 54%

Az ingatlan elhelyezkedése

Cím: Budapest, XXII. kerület, földszint

Eladó ingatlanok a környékről

Eladó családi ház
Eladó családi ház

XVIII. kerület

149.99 M Ft
4 szoba
148 m2
Eladó téglalakás
Eladó téglalakás

V. kerület, Belváros, Petőfi Sándor utca

134 M Ft
2 szoba
59 m2
Eladó téglalakás
Eladó téglalakás

XXII. kerület, Budafok

54 M Ft
2 szoba
50 m2
Eladó téglalakás
Eladó téglalakás

XXII. kerület

160 M Ft
4 szoba
130 m2
Eladó téglalakás
Eladó téglalakás

XXII. kerület, Budatétény

14.9 M Ft
4 szoba
132 m2
Eladó téglalakás
Eladó téglalakás

III. kerület, Óbuda, Szomolnok utca

89.9 M Ft
2 + 2 szoba
96 m2
Eladó téglalakás
Eladó téglalakás

VII. kerület, Belső Erzsébetváros, Rózsa utca

170 M Ft
5 szoba
124 m2
Eladó téglalakás
Eladó téglalakás

XXII. kerület

159 M Ft
6 szoba
170 m2
Eladó téglalakás
Eladó téglalakás

XXII. kerület, Budafok

160 M Ft
4 szoba
125 m2
Eladó családi ház
Eladó családi ház

XXII. kerület, Budafok, Baross utca

222 M Ft
6 + 1 szoba
200 m2
Eladó téglalakás
Eladó téglalakás

XXII. kerület

170 M Ft
5 szoba
128 m2
Eladó téglalakás
Eladó téglalakás

XXII. kerület

85 M Ft
4 szoba
115 m2
Eladó téglalakás
Eladó téglalakás

XXII. kerület

85 M Ft
4 szoba
115 m2
Eladó téglalakás
Eladó téglalakás

VII. kerület, Belső Erzsébetváros, Erzsébet körút

89.9 M Ft
1 + 1 szoba
71 m2
Eladó téglalakás
Eladó téglalakás

XVI. kerület, Cinkota

85 M Ft
3 szoba
67 m2
Eladó téglalakás
Eladó téglalakás

XXII. kerület

129.9 M Ft
5 szoba
203 m2
Eladó téglalakás
Eladó téglalakás

VIII. kerület, Palotanegyed, Rákóczi út

185 M Ft
5 szoba
121 m2
Eladó téglalakás
Eladó téglalakás

XXII. kerület, Nagytétény

61.99 M Ft
2 szoba
45 m2
Eladó téglalakás
Eladó téglalakás

XXII. kerület, Budafok

170 M Ft
5 szoba
130 m2
Eladó téglalakás
Eladó téglalakás

III. kerület, Óbudaisziget, Folyamőr utca

69.9 M Ft
1 szoba
25 m2
Eladó téglalakás
Eladó téglalakás

XIV. kerület

69.9 M Ft
2 szoba
45 m2
Eladó téglalakás
Eladó téglalakás

XXII. kerület

169.9 M Ft
3 szoba
144 m2
Eladó téglalakás
Eladó téglalakás

VIII. kerület

42.6 M Ft
1 szoba
32 m2
Eladó téglalakás
Eladó téglalakás

VI. kerület, Külső Terézváros, Szófia utca

112.9 M Ft
4 szoba
103 m2

Falusi CSOK ingatlanok

Eladó családi ház
Eladó családi ház

Bábolna

69.9 M Ft
5 szoba
172 m2
Eladó családi ház
Eladó családi ház

Nagyhegyes

47.9 M Ft
2 szoba
72 m2
Eladó családi ház
Eladó családi ház

Kenyeri

21.8 M Ft
2 szoba
75 m2
Eladó családi ház
Eladó családi ház

Enese

82.9 M Ft
4 szoba
90 m2
Eladó családi ház
Eladó családi ház

Nagypall, Szabadság utca

35.9 M Ft
3 szoba
125 m2
Eladó családi ház
Eladó családi ház

Pánd

31.5 M Ft
4 szoba
74 m2
Eladó családi ház
Eladó családi ház

Nyáregyháza

19.99 M Ft
4 szoba
98 m2
Eladó téglalakás
Eladó téglalakás

Kőröshegy

83.5 M Ft
2 szoba
65 m2