City Pearl

Eladó ikerház
Budapest, X. kerület

+ 11 kép 1/14
134 900 000 Ft134.9 M Ft 1 105 738 Ft/m2
4 + 1 szoba
122 m²
építés éve:2026

Részletes adatok

Telekméret: 463 m2
Fűtés: Egyéb
Parkolás: Garázs
Energetikai besorolás: Nem adta meg a hirdető

Az OTP Bank lakáshitel ajánlataFizetett hirdetés

+36 30 464
Dr. Lukovszki János
referens

Érdekel az OTP Bank kedvezményes lakáshitel ajánlata? *

* A kérdésre „Igen” válasz bejelölése esetén, az „Üzenet küldése” gombra kattintva kijelentem, hogy az OTP Bank Nyrt. Adatkezelési tájékoztatójának tartalmát megismertem és tudomásul vettem.

Eladó ikerház leírása

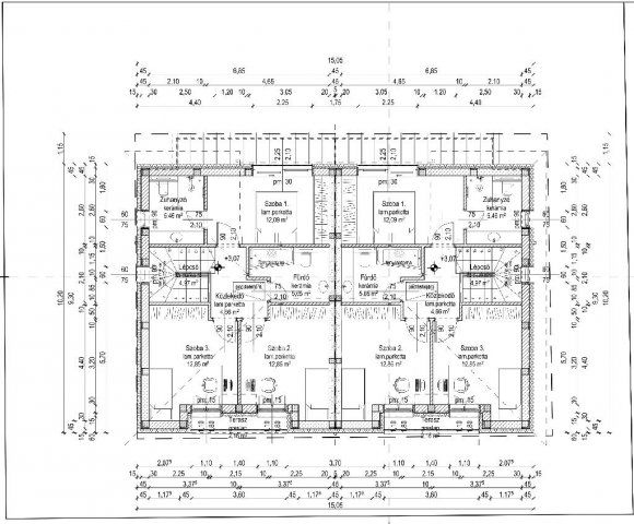
Eladó Kőbányán a 10. kerületben, új építésű ikerházban, egy 122 nm területű lakás tetőtéri beépítéssel. A 3 százalékos Otthon Start programnak megfelel! A két ikerházban összesen 4 lakás kerül kialakításra. A lakáshoz garázs is készül, kertkapcsolattal és terasszal. A lakás teljes mértékben családbarát kialakítású, ahogy az alaprajzokból is kitűnik. Az alsó szinten amerikai konyhás, tágas terű nappalival és étkezővel a család komfort érzetének megfelelően. A felső szinten 2 gyerekszoba és külön hálószoba a családi nyugalom érdekében. Az ikerházak az egyik legmodernebb hőszivattyús rendszerrel épülnek a gazdaságos energia ellátás céljából. A lakásban a beépített bútor külön megbeszélés kérdése. A nappaliban lesz fan-coil és az emeleten mennyezet hűtés-fűtés kerül kialakításra. Padlófűtés az egész lakásban lesz mindenhol. A garázs temperált fűtést kap, de a belső falon lesz 5 cm szigetelés. Szellőztető rendszer csak a garázs és az előszobában kerül kiépítésre, nem kap az ingatlan külön légtechnikát. A lakások között nem lesz közös fal. A kivitelező 2026. év végére tervezi befejezni az egész ingatlan projektet. Az ikerházak és a lakások a valóságban úgy fognak kinézni, mint a látványterveken. Jöjjön el és szeressen bele ebbe a családbarát ingatlanba! Az OTP Ingatlanpont teljes körű ügyintézéssel áll az eladók és a vevők rendelkezésére. A kínálatunkból választott ingatlan finanszírozásához kedvezményes hitelkonstrukciókat kínálunk. További információkért keressen bizalommal!

Hirdetés feltöltve: 2026. 03. 03. Utoljára módosítva: 2026. 04. 01.

5 szobás ikerházak ára Budapesten

Ebből az összehasonlításból megtudhatod, hogyan viszonyul a lakás ára a környékbeli ikerházak átlagos árához. Ez nem azt jelenti, hogy ennyivel olcsóbb vagy drágább, mint amennyit a lakás ér, hanem hogy ennyivel tér el a környékbeli átlagtól.

Ennek a m² ára
Budapest m² ár
1106 e Ft
1182 e Ft 6%
Ennek az ára
Budapest átlagár
134.9 M Ft m Ft
208.8 m Ft 35%

Az ingatlan elhelyezkedése

Cím: Budapest, X. kerület

Eladó ingatlanok a környékről

XIII. kerület, Vizafogó, Sólyatér utca 15
Eladó téglalakás

Budapest, XIII. kerület

133.245 M Ft
3 szoba
69 m²
XIII. kerület, Vizafogó, Sólyatér utca 15
Eladó téglalakás

Budapest, XIII. kerület

171.36 M Ft
4 szoba
87 m²
X. kerület
Eladó ikerház

Budapest, X. kerület

129.9 M Ft
4 szoba
122 m²
X. kerület
Eladó ikerház

Budapest, X. kerület

117 M Ft
4 szoba
129 m²
X. kerület
Eladó ikerház

Budapest, X. kerület

78 M Ft
5 szoba
190 m²
I. kerület, Gellérthegy, Mihály utca
Eladó téglalakás

Budapest, I. kerület

81.9 M Ft
2 szoba
41 m²
X. kerület, Óhegy, Gutor tér
Eladó ikerház

Budapest, X. kerület

75.9 M Ft
4 szoba
100 m²
VIII. kerület, Józsefváros, Csobánc utca
Eladó téglalakás

Budapest, VIII. kerület

54.9 M Ft
1 + 1 szoba
41 m²
XIII. kerület, Vizafogó, Sólyatér utca 15
Eladó téglalakás

Budapest, XIII. kerület

85.365 M Ft
2 szoba
41 m²
X. kerület
Eladó ikerház

Budapest, X. kerület

117 M Ft
4 szoba
129 m²
XIII. kerület, Vizafogó, Sólyatér utca 15
Eladó téglalakás

Budapest, XIII. kerület

85.155 M Ft
2 szoba
41 m²
VII. kerület, Belső Erzsébetváros, Gozsdu udvar
Eladó téglalakás

Budapest, VII. kerület

99.9 M Ft
2 szoba
57 m²
V. kerület, Belváros, Nyáry Pál utca
Eladó üzlethelyiség

Budapest, V. kerület

33 M Ft
2 szoba
28 m²
XIII. kerület, Vizafogó, Sólyatér utca 15
Eladó téglalakás

Budapest, XIII. kerület

68.145 M Ft
1 szoba
33 m²
XIII. kerület, Vizafogó, Sólyatér utca 15
Eladó téglalakás

Budapest, XIII. kerület

256.515 M Ft
5 szoba
110 m²
X. kerület
Eladó ikerház

Budapest, X. kerület

134.9 M Ft
4 + 1 szoba
122 m²
X. kerület
Eladó ikerház

Budapest, X. kerület

134.9 M Ft
4 szoba
122 m²
X. kerület
Eladó ikerház

Budapest, X. kerület

134.9 M Ft
4 + 1 szoba
122 m²
XIII. kerület, Vizafogó, Sólyatér utca 15
Eladó téglalakás

Budapest, XIII. kerület

70.455 M Ft
1 szoba
33 m²
X. kerület
Eladó ikerház

Budapest, X. kerület

117 M Ft
4 szoba
129 m²
XIII. kerület, Vizafogó, Sólyatér utca 15
Eladó téglalakás

Budapest, XIII. kerület

86.94 M Ft
2 szoba
40 m²
XIII. kerület, Vizafogó, Sólyatér utca 15
Eladó téglalakás

Budapest, XIII. kerület

170.1 M Ft
4 szoba
85 m²
XIII. kerület, Vizafogó, Sólyatér utca 15
Eladó téglalakás

Budapest, XIII. kerület

84.315 M Ft
2 szoba
40 m²
X. kerület
Eladó ikerház

Budapest, X. kerület

117 M Ft
4 szoba
129 m²

Falusi CSOK ingatlanok

Újlengyel
Eladó családi ház

Újlengyel

110 M Ft
4 szoba
121 m²
Sárosd
Eladó családi ház

Sárosd

21.9 M Ft
3 szoba
86 m²
Nagybaracska
Eladó családi ház

Nagybaracska

35 M Ft
3 szoba
110 m²
Gellénháza
Eladó családi ház

Gellénháza

42.5 M Ft
3 szoba
83 m²
Gádoros
Eladó családi ház

Gádoros

25.5 M Ft
4 szoba
140 m²
Segesd
Eladó családi ház

Segesd

15.8 M Ft
3 szoba
100 m²
Balatonszemes
Eladó téglalakás

Balatonszemes

91.5 M Ft
2 szoba
60 m²
Érpatak
Eladó családi ház

Érpatak

35 M Ft
4 szoba
160 m²