Oasis Residence

Eladó ikerház
Budapest, X. kerület

+ 17 kép 1/20
134 900 000 Ft134.9 M Ft 1 105 738 Ft/m2
4 szoba
122 m²
építés éve:2026

Részletes adatok

Telekméret: 231 m2
Fűtés: Egyéb
Közmű: Villany, Csatorna
Energetikai besorolás: Nem adta meg a hirdető

Az OTP Bank lakáshitel ajánlataFizetett hirdetés

+36 70 465
Pomucz-Nagy Anita
referens

Érdekel az OTP Bank kedvezményes lakáshitel ajánlata? *

* A kérdésre „Igen” válasz bejelölése esetén, az „Üzenet küldése” gombra kattintva kijelentem, hogy az OTP Bank Nyrt. Adatkezelési tájékoztatójának tartalmát megismertem és tudomásul vettem.

Eladó ikerház leírása

Modern, újépítésű kétszintes ikerház Budapest X. kerületének egyik legkedveltebb környékén!

Exkluzív lehetőség azok számára, akik minőségi, XXI. századi otthont keresnek a belvároshoz közel, mégis egy nyugodt, családias környezetben!

A projektben még több lakás is elérhető!

A csendes mellékutcában elhelyezkedő, prémium műszaki tartalommal rendelkező ikerház minden igényt kielégít – a modern életstílus jegyében.

Kiemelkedő adottságok és átgondolt tervezés

Az ingatlan a legmodernebb műszaki elvárások szerint készül, kiváló minőségű anyagok és prémium gépészeti megoldások alkalmazásával. A telek adottságai maximálisan kihasználásra kerültek, így egy esztétikus, funkcionális és hosszú távon értékálló családi otthon születik.

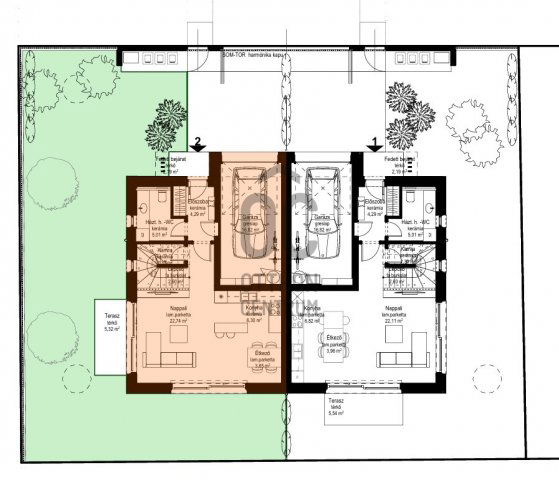
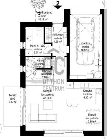
A hasznos alapterület 122 m², két szinten:

Földszint:
- Tágas, 33 m²-es amerikai konyhás nappali, közvetlen teraszkapcsolattal és kerttel
- Zuhanyzó + WC
- Háztartási helyiség
- Nagyméretű, fedett garázs – akár nagyobb autó számára is ideális

Emelet:
- 3 kényelmes hálószoba
- 2 modern fürdőszoba

A házhoz tartozó 231 m²-es privát kert igazi oázis, mely teljes intimitást biztosít, így tökéletes lehet családoknak, pihenéshez vagy akár kertészkedéshez is.

Prémium műszaki tartalom
- 30 cm Porotherm főfalak
- 3 rétegű, hőszigetelt műanyag nyílászárók
- Monolit vasbeton födém
- Terrán Zenit Max Carbon tetőcserép
- 15 cm homlokzati hőszigetelés, korszerű energetikai besorolással
- Hőszivattyús rendszer: mindenhol padlófűtés, nappaliban fan-coil és az emeleten mennyezeti fűtés-hűtés
- Minőségi burkolatok, térkövezett udvar

Extrák, amelyek valódi kényelmet adnak
- Okosotthon rendszer
- Elektromos redőnyök
- Kamera- és riasztórendszer előkészítés
- Videókaputelefon
- Elektromos kapu
- Öntözőrendszer
- Elektromos autótöltő kiépítése
- Garázsban temperáló fűtés + 5 cm belső szigetelés
- WPC kerítés
- Rejtett- és udvarvilágítás
- Beépített bútorok megegyezés alapján
- Teljes digitális átláthatóság az építkezés során

A PlanRadar rendszernek köszönhetően Ön:
- Valós időben követheti az építkezés minden lépését kamerán keresztül
- Kéthetente részletes, fotókkal ellátott jelentést kap
- A projekt végén minden dokumentumot digitálisan átvehet egy biztonságos felületen

Finanszírozás
Az ingatlan hitelre is megvásárolható, ügyfeleink számára díjmentes hitelügyintézéssel, minden hazai bank kínálatából.
Állami támogatások is igénybe vehetők!

Várható átadás: 2026. IV. negyedév

Ne maradjon le!
Ilyen színvonalú, modern és biztonságos otthon ritkán kerül a piacra. Kiváló választás családoknak, pároknak és mindenkinek, aki igényes, hosszú távon értékálló ingatlant keres.

Forduljon hozzám bizalommal a hét bármely napján!

Hirdetés feltöltve: 2025. 11. 29. Utoljára módosítva: 2026. 05. 12.

4 szobás ikerházak ára Budapesten

Ebből az összehasonlításból megtudhatod, hogyan viszonyul a lakás ára a környékbeli ikerházak átlagos árához. Ez nem azt jelenti, hogy ennyivel olcsóbb vagy drágább, mint amennyit a lakás ér, hanem hogy ennyivel tér el a környékbeli átlagtól.

Ennek a m² ára
X. kerület m² ár
Budapest m² ár
1106 e Ft
982 e Ft -13%
1156 e Ft 4%
Ennek az ára
X. kerület átlagár
Budapest átlagár
134.9 M Ft m Ft
121.1 m Ft -11%
167.1 m Ft 19%

Az ingatlan elhelyezkedése

Cím: Budapest, X. kerület

Eladó ingatlanok a környékről

XIII. kerület
Eladó téglalakás

Budapest, XIII. kerület

59.9 M Ft
2 szoba
30 m²
X. kerület
Eladó ikerház

Budapest, X. kerület

134.9 M Ft
4 szoba
122 m²
XIII. kerület
Eladó téglalakás

Budapest, XIII. kerület

59.9 M Ft
1 + 1 szoba
35 m²
X. kerület
Eladó ikerház

Budapest, X. kerület

117 M Ft
4 szoba
129 m²
X. kerület
Eladó ikerház

Budapest, X. kerület

134.9 M Ft
4 szoba
122 m²
X. kerület
Eladó panellakás

Budapest, X. kerület

73.9 M Ft
3 szoba
68 m²
VII. kerület
Eladó üzlethelyiség

Budapest, VII. kerület

47.9 M Ft
2 szoba
79 m²
XIII. kerület
Eladó téglalakás

Budapest, XIII. kerület

42.9 M Ft
1 szoba
22 m²
X. kerület
Eladó ikerház

Budapest, X. kerület

134.9 M Ft
4 + 1 szoba
122 m²
X. kerület
Eladó ikerház

Budapest, X. kerület

117 M Ft
4 szoba
129 m²
X. kerület
Eladó ikerház

Budapest, X. kerület

117 M Ft
4 szoba
129 m²
XXI. kerület
Eladó panellakás

Budapest, XXI. kerület

55 M Ft
1 + 1 szoba
46 m²
X. kerület
Eladó ikerház

Budapest, X. kerület

165 M Ft
4 + 1 szoba
200 m²
X. kerület
Eladó ikerház

Budapest, X. kerület

117 M Ft
4 szoba
129 m²
X. kerület, Óhegy, Gutor tér
Eladó ikerház

Budapest, X. kerület

73.9 M Ft
4 szoba
100 m²
X. kerület
Eladó ikerház

Budapest, X. kerület

117 M Ft
4 szoba
129 m²
X. kerület
Eladó ikerház

Budapest, X. kerület

117 M Ft
4 szoba
129 m²
XIV. kerület
Eladó téglalakás

Budapest, XIV. kerület

73.499 M Ft
2 szoba
49 m²
V. kerület, Belváros, Múzeum körút
Eladó téglalakás

Budapest, V. kerület

151.5 M Ft
1 + 2 szoba
63 m²
XIV. kerület
Eladó téglalakás

Budapest, XIV. kerület

59 M Ft
2 szoba
41 m²
XVII. kerület
Eladó panellakás

Budapest, XVII. kerület

50 M Ft
3 szoba
58 m²
X. kerület
Eladó ikerház

Budapest, X. kerület

149.5 M Ft
5 szoba
171 m²
XVIII. kerület
Eladó családi ház

Budapest, XVIII. kerület

88 M Ft
4 szoba
88 m²
X. kerület
Eladó ikerház

Budapest, X. kerület

134.9 M Ft
4 + 1 szoba
122 m²

Falusi CSOK ingatlanok

Hegyeshalom, Margaréta utca 12
Eladó téglalakás

Hegyeshalom

46.91 M Ft
2 szoba
43 m²
Seregélyes
Eladó családi ház

Seregélyes

87 M Ft
4 szoba
96 m²
Balatonszemes
Eladó téglalakás

Balatonszemes

91.5 M Ft
2 szoba
0 m²
Csárdaszállás
Eladó családi ház

Csárdaszállás

11.99 M Ft
3 + 2 szoba
100 m²
Lajoskomárom
Eladó családi ház

Lajoskomárom

22.9 M Ft
2 szoba
66 m²
Madaras
Eladó családi ház

Madaras

33 M Ft
5 szoba
210 m²
Kunszállás
Eladó családi ház

Kunszállás

65.9 M Ft
4 szoba
90 m²
Rakamaz
Eladó családi ház

Rakamaz

86.9 M Ft
5 szoba
280 m²