Aerogate Homes

Eladó ikerház
Budapest, X. kerület

+ 8 kép 1/11
129 900 000 Ft129.9 M Ft 1 064 754 Ft/m2
4 + 1 szoba
122 m²
építés éve:2026

Részletes adatok

Telekméret: 463 m2
Fűtés: Egyéb
Energetikai besorolás: A+

Az OTP Bank lakáshitel ajánlataFizetett hirdetés

+36 30 428
Lengyel József
referens

Érdekel az OTP Bank kedvezményes lakáshitel ajánlata? *

* A kérdésre „Igen” válasz bejelölése esetén, az „Üzenet küldése” gombra kattintva kijelentem, hogy az OTP Bank Nyrt. Adatkezelési tájékoztatójának tartalmát megismertem és tudomásul vettem.

Eladó ikerház leírása

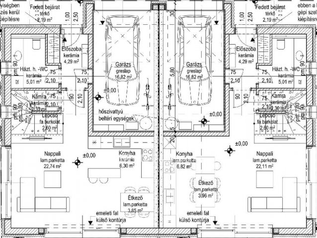
Eladó Kőbányán a 10. kerületben, új építésű ikerházban, egy 122 nm területű lakás tetőtéri beépítéssel. Az ingatlan megfelel az államilag támogatott családbarát kedvezményeknek és kedvező hitel lehetőségeknek. A két ikerházban összesen 4 lakás kerül kialakításra. A lakáshoz garázs is készül, kertkapcsolattal és terasszal. A lakás teljes mértékben családbarát kialakítású, ahogy az alaprajzokból is kitűnik. Az alsó szinten amerikai konyhás, tágas terű nappalival és étkezővel a család komfort érzetének megfelelően. A felső szinten 2 gyerekszoba és külön hálószoba a családi nyugalom érdekében. Az ikerházak az egyik legmodernebb hőszivattyús rendszerrel épülnek a gazdaságos energia ellátás céljából. A kivitelező 2026. év végére tervezi befejezni az egész ingatlan projektet. Az ikerházak és a lakások a valóságban úgy fognak kinézni, mint a látványterveken. Jöjjön el és szeressen bele ebbe a családbarát ingatlanba! Az OTP Ingatlanpont teljes körű ügyintézéssel áll az eladók és a vevők rendelkezésére. A kínálatunkból választott ingatlan finanszírozásához kedvezményes hitelkonstrukciókat kínálunk. További információkért keressen bizalommal!

Referencia szám: M323681

Hirdetés feltöltve: 2026. 03. 12. Utoljára módosítva: 2026. 04. 23.

5 szobás ikerházak ára Budapesten

Ebből az összehasonlításból megtudhatod, hogyan viszonyul a lakás ára a környékbeli ikerházak átlagos árához. Ez nem azt jelenti, hogy ennyivel olcsóbb vagy drágább, mint amennyit a lakás ér, hanem hogy ennyivel tér el a környékbeli átlagtól.

Ennek a m² ára
Budapest m² ár
1065 e Ft
1183 e Ft 10%
Ennek az ára
Budapest átlagár
129.9 M Ft m Ft
209.2 m Ft 38%

Az ingatlan elhelyezkedése

Cím: Budapest, X. kerület

Eladó ingatlanok a környékről

XIII. kerület, Angyalföld, Dévai utca Lőportár 17
Eladó téglalakás

Budapest, XIII. kerület

181.573 M Ft
3 szoba
83 m²
X. kerület
Eladó ikerház

Budapest, X. kerület

117 M Ft
4 szoba
129 m²
X. kerület
Eladó ikerház

Budapest, X. kerület

117 M Ft
4 szoba
129 m²
X. kerület, Óhegy, Gutor tér
Eladó ikerház

Budapest, X. kerület

73.9 M Ft
4 szoba
100 m²
X. kerület
Eladó ikerház

Budapest, X. kerület

134.9 M Ft
4 + 1 szoba
122 m²
XIII. kerület, Angyalföld, Dévai utca Lőportár 17
Eladó téglalakás

Budapest, XIII. kerület

84.325 M Ft
2 szoba
42 m²
XIII. kerület, Angyalföld, Dévai utca Lőportár 17
Eladó téglalakás

Budapest, XIII. kerület

89.889 M Ft
2 szoba
45 m²
IX. kerület
Eladó téglalakás

Budapest, IX. kerület

89.9 M Ft
3 szoba
84 m²
XIII. kerület, Angyalföld, Dévai utca Lőportár 17
Eladó téglalakás

Budapest, XIII. kerület

71.205 M Ft
1 szoba
32 m²
X. kerület
Eladó ikerház

Budapest, X. kerület

134.9 M Ft
4 szoba
122 m²
X. kerület
Eladó ikerház

Budapest, X. kerület

129.9 M Ft
4 szoba
122 m²
XIII. kerület, Angyalföld, Dévai utca Lőportár 17
Eladó téglalakás

Budapest, XIII. kerület

164.8 M Ft
4 szoba
93 m²
XXII. kerület
Eladó téglalakás

Budapest, XXII. kerület

87 M Ft
3 szoba
58 m²
X. kerület
Eladó ikerház

Budapest, X. kerület

134.9 M Ft
4 szoba
122 m²
XIII. kerület, Angyalföld, Dévai utca Lőportár 17
Eladó téglalakás

Budapest, XIII. kerület

69.483 M Ft
1 szoba
32 m²
XIII. kerület, Angyalföld, Dévai utca Lőportár 17
Eladó téglalakás

Budapest, XIII. kerület

65.978 M Ft
1 szoba
33 m²
XIII. kerület, Angyalföld, Dévai utca Lőportár 17
Eladó téglalakás

Budapest, XIII. kerület

88.861 M Ft
2 szoba
42 m²
X. kerület
Eladó ikerház

Budapest, X. kerület

117 M Ft
4 szoba
129 m²
XIII. kerület, Angyalföld, Dévai utca Lőportár 17
Eladó téglalakás

Budapest, XIII. kerület

89.84 M Ft
2 szoba
43 m²
X. kerület
Eladó ikerház

Budapest, X. kerület

134.9 M Ft
4 szoba
122 m²
XIII. kerület, Angyalföld, Dévai utca Lőportár 17
Eladó téglalakás

Budapest, XIII. kerület

85.811 M Ft
2 szoba
42 m²
X. kerület
Eladó ikerház

Budapest, X. kerület

117 M Ft
4 szoba
129 m²
XIII. kerület, Angyalföld, Dévai utca Lőportár 17
Eladó téglalakás

Budapest, XIII. kerület

66.638 M Ft
1 szoba
33 m²
XIII. kerület, Angyalföld, Dévai utca Lőportár 17
Eladó téglalakás

Budapest, XIII. kerület

83.73 M Ft
2 szoba
40 m²

Falusi CSOK ingatlanok

Kálmánháza
Eladó családi ház

Kálmánháza

65 M Ft
3 + 1 szoba
151 m²
Sződ
Eladó családi ház

Sződ

116.9 M Ft
4 + 1 szoba
102 m²
Badacsonytördemic
Eladó családi ház

Badacsonytördemic

90 M Ft
3 szoba
130 m²
Izsófalva
Eladó családi ház

Izsófalva

22.9 M Ft
3 szoba
105 m²
Szőlősgyörök
Eladó családi ház

Szőlősgyörök

29.9 M Ft
3 szoba
85 m²
Kislippó
Eladó családi ház

Kislippó

17.99 M Ft
3 szoba
100 m²
Németkér
Eladó családi ház

Németkér

149.9 M Ft
2 szoba
540 m²
Törtel
Eladó családi ház

Törtel

39 M Ft
1 + 1 szoba
118 m²