Seven Pearl

Eladó ikerház
Budapest, X. kerület

+ 16 kép 1/19
134 900 000 Ft134.9 M Ft 1 105 738 Ft/m2
4 szoba
122 m²
építés éve:2025

Részletes adatok

Telekméret: 231 m2
Fűtés: Egyéb
Parkolás: Garázs
Energetikai besorolás: Nem adta meg a hirdető

Az OTP Bank lakáshitel ajánlataFizetett hirdetés

+36 30 649
Hallai Mónika
referens

Érdekel az OTP Bank kedvezményes lakáshitel ajánlata? *

* A kérdésre „Igen” válasz bejelölése esetén, az „Üzenet küldése” gombra kattintva kijelentem, hogy az OTP Bank Nyrt. Adatkezelési tájékoztatójának tartalmát megismertem és tudomásul vettem.

Eladó ikerház leírása

Új építésű, kétszintes ikerház prémium felszereltséggel!

Csendes környezet – Magas minőségű kivitelezés – Teljes digitális átláthatóság!

Budapest X. kerületének egyik legnyugodtabb mellékutcájában, kiváló közlekedési és infrastrukturális adottságok mellett készül ez a korszerű, kétszintes ikerház.
Az építkezés teljes folyamata átláthatóan nyomon követhető!

Főbb adatok

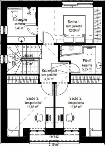
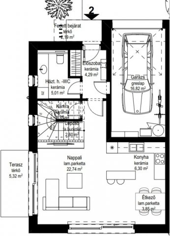
Hasznos alapterület: 122 m²

Telekméret: 231 m² saját kerttel

Szintek száma: földszint + emelet

Hálószobák: 3 külön nyíló szoba

Fürdőszobák: összesen 3 (2 az emeleten, 1 a földszinten)

Nappali: 33 m²-es amerikai konyhás tér, közvetlen teraszkapcsolattal

Parkolás: fedett garázs, nagyobb méretű autó számára is ideális

Műszaki felszereltség

POROTHERM 30 N+F téglafalak, monolit vasbeton födémszerkezet

15 cm homlokzati EPS hőszigetelés + 20 cm födémszigetelés

Hőszivattyúval működő mennyezeti fűtés és hűtés

3 rétegű hőszigetelt nyílászárók és biztonsági bejárati ajtó

Laminált parketta és kerámia burkolatok kombinációja

Terrán Zenit Max Carbon tetőcserép

Kiemelt extrák

Komplett okosotthon rendszer

Motoros alumínium redőnyök

Kamera- és riasztórendszer előkészítés

Videó kaputelefon

Elektromos kapu és autótöltési lehetőség

Automata kertöntöző

WPC kerítés, rejtett világítás, kültéri lámpatestek

Digitális projektkövetés – PlanRadar

A vásárló:

Élőben követheti az építkezés előrehaladását telefonon

Kéthetente részletes fotódokumentációt kap

Az átadáskor digitálisan megkap minden szükséges hivatalos dokumentumot (garanciák, tervrajzok, jegyzőkönyvek)

Finanszírozási lehetőségek tárháza

Hitelből is megvásárolható

Díjmentes hitelügyintézés minden hazai bank felé

Elérhető aktuális állami támogatások

Várható átadás: 2026. III. negyedév
Ez az ingatlan ideális választás mindazok számára, akik modern, biztonságos és kényelmes otthont szeretnének. Ne hagyja ki ezt a kivételes lehetőséget!
ID: 390189 ...TOVÁBBI, TÖBBEZRES INGATLAN KÍNÁLAT: www.gdn-ingatlan.hu - GDN azonosító: 394052

Hirdetés feltöltve: 2026. 04. 01. Utoljára módosítva: 2026. 04. 02.

4 szobás ikerházak ára Budapesten

Ebből az összehasonlításból megtudhatod, hogyan viszonyul a lakás ára a környékbeli ikerházak átlagos árához. Ez nem azt jelenti, hogy ennyivel olcsóbb vagy drágább, mint amennyit a lakás ér, hanem hogy ennyivel tér el a környékbeli átlagtól.

Ennek a m² ára
X. kerület m² ár
Budapest m² ár
1106 e Ft
994 e Ft -11%
1184 e Ft 7%
Ennek az ára
X. kerület átlagár
Budapest átlagár
134.9 M Ft m Ft
121.8 m Ft -11%
170.1 m Ft 21%

Az ingatlan elhelyezkedése

Cím: Budapest, X. kerület

Eladó ingatlanok a környékről

X. kerület
Eladó ikerház

Budapest, X. kerület

117 M Ft
4 szoba
129 m²
X. kerület
Eladó ikerház

Budapest, X. kerület

117 M Ft
4 szoba
129 m²
XIII. kerület, Angyalföld, Dévai utca Lőportár 17
Eladó téglalakás

Budapest, XIII. kerület

87.287 M Ft
2 szoba
42 m²
X. kerület
Eladó ikerház

Budapest, X. kerület

134.9 M Ft
4 szoba
122 m²
XIII. kerület, Angyalföld, Dévai utca Lőportár 17
Eladó téglalakás

Budapest, XIII. kerület

88.836 M Ft
2 szoba
43 m²
X. kerület, Óhegy, Gutor tér
Eladó ikerház

Budapest, X. kerület

73.9 M Ft
4 szoba
100 m²
XIII. kerület, Angyalföld, Dévai utca Lőportár 17
Eladó téglalakás

Budapest, XIII. kerület

66.638 M Ft
1 szoba
33 m²
XIII. kerület, Angyalföld, Dévai utca Lőportár 17
Eladó téglalakás

Budapest, XIII. kerület

139.405 M Ft
3 szoba
77 m²
XIII. kerület, Angyalföld, Dévai utca Lőportár 17
Eladó téglalakás

Budapest, XIII. kerület

87.31 M Ft
2 szoba
42 m²
XIII. kerület, Angyalföld, Dévai utca Lőportár 17
Eladó téglalakás

Budapest, XIII. kerület

126.041 M Ft
3 szoba
67 m²
XIII. kerület, Angyalföld, Dévai utca Lőportár 17
Eladó téglalakás

Budapest, XIII. kerület

65.978 M Ft
1 szoba
33 m²
XIII. kerület, Angyalföld, Dévai utca Lőportár 17
Eladó téglalakás

Budapest, XIII. kerület

69.483 M Ft
1 szoba
32 m²
XIII. kerület, Angyalföld, Dévai utca Lőportár 17
Eladó téglalakás

Budapest, XIII. kerület

164.8 M Ft
4 szoba
93 m²
X. kerület
Eladó ikerház

Budapest, X. kerület

117 M Ft
4 szoba
129 m²
X. kerület
Eladó ikerház

Budapest, X. kerület

117 M Ft
4 szoba
129 m²
X. kerület
Eladó ikerház

Budapest, X. kerület

117 M Ft
4 szoba
129 m²
XIII. kerület, Angyalföld, Dévai utca Lőportár 17
Eladó téglalakás

Budapest, XIII. kerület

71.205 M Ft
1 szoba
32 m²
VIII. kerület
Eladó téglalakás

Budapest, VIII. kerület

104.9 M Ft
3 szoba
65 m²
XIII. kerület, Angyalföld, Dévai utca Lőportár 17
Eladó téglalakás

Budapest, XIII. kerület

181.573 M Ft
3 szoba
83 m²
XIII. kerület, Angyalföld, Dévai utca Lőportár 17
Eladó téglalakás

Budapest, XIII. kerület

85.811 M Ft
2 szoba
42 m²
X. kerület
Eladó ikerház

Budapest, X. kerület

149.5 M Ft
5 szoba
171 m²
XIII. kerület, Angyalföld, Dévai utca Lőportár 17
Eladó téglalakás

Budapest, XIII. kerület

89.889 M Ft
2 szoba
45 m²
XIII. kerület, Angyalföld, Dévai utca Lőportár 17
Eladó téglalakás

Budapest, XIII. kerület

83.73 M Ft
2 szoba
40 m²
X. kerület
Eladó ikerház

Budapest, X. kerület

129.9 M Ft
4 + 1 szoba
122 m²

Falusi CSOK ingatlanok

Perőcsény
Eladó családi ház

Perőcsény

59 M Ft
3 szoba
128 m²
Törtel
Eladó családi ház

Törtel

42 M Ft
3 szoba
98 m²
Mesztegnyő
Eladó családi ház

Mesztegnyő

125 M Ft
3 szoba
450 m²
Balatonakali
Eladó ikerház

Balatonakali

560 M Ft
4 szoba
140 m²
Bag
Eladó családi ház

Bag

116 M Ft
5 + 1 szoba
148 m²
Badacsonytördemic
Eladó családi ház

Badacsonytördemic

90 M Ft
3 szoba
130 m²
Kaposgyarmat
Eladó családi ház

Kaposgyarmat

695 M Ft
6 szoba
610 m²
Baks
Eladó családi ház

Baks

18.9 M Ft
3 szoba
118 m²