Seven Pearl

Eladó családi ház
Sajószöged

Figyelem!

Ez az ingatlan a 2019.07.01-től induló falusi CSOK által támogatott településen található

+ 17 kép 1/20
41 500 000 Ft41.5 M Ft 300 725 Ft/m2
3 szoba
138 m2
építés éve:1991

Részletes adatok

Állapot: Átlagos
Telekméret: 630 m2
Fűtés: Egyéb
Energetikai besorolás: Nem adta meg a hirdető

Az OTP Bank lakáshitel ajánlataFizetett hirdetés

+36 70 637
Kovács Emese
OTP IP Miskolc Corvin 1-3

Érdekel az OTP Bank kedvezményes lakáshitel ajánlata? *

* A kérdésre „Igen” válasz bejelölése esetén, az „Üzenet küldése” gombra kattintva kijelentem, hogy az OTP Bank Nyrt. Adatkezelési tájékoztatójának tartalmát megismertem és tudomásul vettem.

Eladó családi ház leírása

Családi ház eladó Sajószögeden

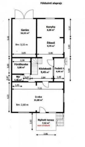
138 m2-es hagyományos szerkezetű családi házat kínálok eladásra rendezett, családi házas környezetben. Az 1991-ben épült ingatlan részben alápincézett, gázszilikát falazatú, a tetőn cserép van. Fűtéséről gázkazán gondoskodik. A földszinten egy nagyméretű nappali, WC, fürdő, konyha-étkező előszoba található, a tetőtéri részben egy zuhanyzós fürdőszoba WC-vel, 2 szoba és egy előtéri helyiség. A pinceszintre kintről jutunk le, itt több különálló fakk található, az egyikben műhely rész, a másikban a gázkazán és a vegyes tüzelésű kazán. A kert hátsó részén több melléképület van, ezek nincsenek jó állapotban. A földszinti részhez építettek egy teraszt, ami a képeken is látszik, ez viszont nincs feltüntetve a térképszelvényen.
________________________________________
Főbb jellemzők:
Alapterület: 138 m2, 3 szoba
telek: 630 m2
Építés éve: 1991
Szerkezet: Hagyományos, részben alápincézett, földszint+tetőtér beépítés, pince
Állapot: Közepes állapotú
Közművek: Gázkazánnal fűtött. Melegvíz-ellátás jelenleg nincs, a villanybojler hiányzik.
Kiegészítők: Különálló, de rossz állapotú melléképületek (állattartásra), amelyek értéket nem képviselnek. A ház mögötti terasz a térképmásolaton nem szerepel.
________________________________________
Fontos információk:
Az ingatlan jelenlegi állapotában nem alkalmas államilag támogatott hitel felvételére.
CSAK KÉSZPÉNZES vevők jelentkezését várjuk.
Ideális választás azoknak, akik egy megbízható szerkezetű házat keresnek, amit saját ízlésük szerint, felújítással alakíthatnak ki.
Amennyiben felkeltettem érdeklődését, keressen bizalommal!
Az ingatlan csak nálunk vásárolható meg!

41500000 Ft

Referencia szám: M312156

Hirdetés feltöltve: 2025. 10. 07. Utoljára módosítva: 2025. 11. 18.

3 szobás családi házak ára Sajószögeden

Ebből az összehasonlításból megtudhatod, hogyan viszonyul a lakás ára a környékbeli családi házak átlagos árához. Ez nem azt jelenti, hogy ennyivel olcsóbb vagy drágább, mint amennyit a lakás ér, hanem hogy ennyivel tér el a környékbeli átlagtól.

Ennek a m² ára
Sajószöged m² ár
301 e Ft
457 e Ft 34%
Ennek az ára
Sajószöged átlagár
41.5 M Ft m Ft
53.4 m Ft 22%

Az ingatlan elhelyezkedése

Cím: Sajószöged

Eladó ingatlanok a környékről

Eladó téglalakás
Eladó téglalakás

Miskolc

26.9 M Ft
1 szoba
38 m2
Eladó családi ház
Eladó családi ház

Ózd

15 M Ft
7 szoba
225 m2
Eladó családi ház
Eladó családi ház

Miskolc, Vargahegy, Margaréta utca

14.5 M Ft
1 szoba
42 m2
Eladó téglalakás
Eladó téglalakás

Miskolc, Kilián, Munkás utca

23.9 M Ft
1 szoba
37 m2
Eladó családi ház
Eladó családi ház

Gönc

20.5 M Ft
2 szoba
80 m2
Eladó családi ház
Eladó családi ház

Sajószöged

63.9 M Ft
3 szoba
140 m2
Eladó téglalakás
Eladó téglalakás

Miskolc

73.9 M Ft
3 szoba
77 m2
Eladó családi ház
Eladó családi ház

Miskolc

149 M Ft
4 szoba
463 m2
Eladó panellakás
Eladó panellakás

Miskolc

22.9 M Ft
1 + 1 szoba
35 m2
Eladó családi ház
Eladó családi ház

Gönc

26 M Ft
3 szoba
130 m2
Eladó családi ház
Eladó családi ház

Tiszalúc, Alkotmány utca

16.9 M Ft
4 szoba
137 m2
Eladó családi ház
Eladó családi ház

Mezőkeresztes

29 M Ft
3 szoba
96 m2
Eladó családi ház
Eladó családi ház

Tolcsva

28 M Ft
3 szoba
98 m2
Eladó családi ház
Eladó családi ház

Tiszalúc

19.9 M Ft
4 szoba
180 m2
Eladó családi ház
Eladó családi ház

Lak

149.9 M Ft
4 szoba
189 m2
Eladó nyaraló
Eladó nyaraló

Miskolc

163.35 M Ft
4 szoba
150 m2
Eladó téglalakás
Eladó téglalakás

Miskolc

23.99 M Ft
2 szoba
42 m2
Eladó családi ház
Eladó családi ház

Tarcal

19.9 M Ft
3 szoba
110 m2
Eladó családi ház
Eladó családi ház

Sajószentpéter

34.9 M Ft
2 + 2 szoba
100 m2
Eladó családi ház
Eladó családi ház

Sajószöged, Bartók Béla

47.9 M Ft
4 + 1 szoba
145 m2
Eladó téglalakás
Eladó téglalakás

Miskolc

27.9 M Ft
2 szoba
53 m2
Eladó téglalakás
Eladó téglalakás

Miskolc

54.9 M Ft
2 szoba
59 m2
Eladó családi ház
Eladó családi ház

Taktaharkány, Magtár utca

9.9 M Ft
3 szoba
100 m2
Eladó mezogazdasagi ingatlan
Eladó mezogazdasagi ingatlan

Szirmabesenyő

6 M Ft
3150 m²
3150 m2

Falusi CSOK ingatlanok

Eladó családi ház
Eladó családi ház

Himesháza

119.9 M Ft
4 szoba
160 m2
Eladó családi ház
Eladó családi ház

Pécsely, Szőlő Dülő

499 M Ft
4 + 2 szoba
183 m2
Eladó sorház
Eladó sorház

Tiszasziget, Sziget lakópark

33.9 M Ft
2 szoba
48 m2
Eladó családi ház
Eladó családi ház

Bükkzsérc

42.5 M Ft
4 szoba
240 m2
Eladó családi ház
Eladó családi ház

Bag

16.9 M Ft
6 szoba
160 m2
Eladó családi ház
Eladó családi ház

Szigetújfalu

36 M Ft
2 szoba
58 m2
Eladó családi ház
Eladó családi ház

Tihany, Csokonai utca 78

559 M Ft
8 szoba
340 m2
Eladó ikerház
Eladó ikerház

Besnyő

79.6 M Ft
5 szoba
117 m2

Falusi CSOK ingatlanok

Eladó családi ház
Eladó családi ház

Kemeneshőgyész

8 M Ft
2 szoba
60 m2
Eladó családi ház
Eladó családi ház

Kemeneshőgyész

6.9 M Ft
3 szoba
124 m2
Eladó családi ház
Eladó családi ház

Örkény

44 M Ft
2 + 1 szoba
92 m2
Eladó családi ház
Eladó családi ház

Orci

59.9 M Ft
3 szoba
101 m2
Eladó családi ház
Eladó családi ház

Badacsonytomaj

149 M Ft
6 szoba
195 m2
Eladó családi ház
Eladó családi ház

Papkeszi

21.9 M Ft
1 + 1 szoba
65 m2
Eladó családi ház
Eladó családi ház

Egerszólát

50 M Ft
3 szoba
120 m2
Eladó családi ház
Eladó családi ház

Sály, Kossuth Lajos 128

31.04 M Ft
6 szoba
160 m2