City Pearl

Eladó ikerház
Budapest, X. kerület, földszint

+ 17 kép 1/20
129 900 000 Ft129.9 M Ft 1 064 754 Ft/m2
4 szoba
122 m²
földszint
építés éve:2025

Részletes adatok

Telekméret: 231 m2
Fűtés: Egyéb
Emelet: földszint
Közmű: Villany, Csatorna
Energetikai besorolás: Nem adta meg a hirdető

Az OTP Bank lakáshitel ajánlataFizetett hirdetés

+36 70 465
Pomucz-Nagy Anita
referens

Érdekel az OTP Bank kedvezményes lakáshitel ajánlata? *

* A kérdésre „Igen” válasz bejelölése esetén, az „Üzenet küldése” gombra kattintva kijelentem, hogy az OTP Bank Nyrt. Adatkezelési tájékoztatójának tartalmát megismertem és tudomásul vettem.

Eladó ikerház leírása

Exkluzív lehetőség azok számára, akik minőségi, XXI. századi otthont keresnek a belvároshoz közel, mégis egy nyugodt, családias környezetben!
A projektben még több lakás is elérhető!

A csendes mellékutcában elhelyezkedő, prémium műszaki tartalommal rendelkező ikerház minden igényt kielégít – a modern életstílus jegyében.

Kiemelkedő adottságok és átgondolt tervezés

Az ingatlan a legmodernebb műszaki elvárások szerint készül, kiváló minőségű anyagok és prémium gépészeti megoldások alkalmazásával. A telek adottságai maximálisan kihasználásra kerültek, így egy esztétikus, funkcionális és hosszú távon értékálló családi otthon születik.

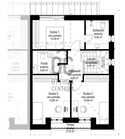
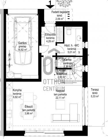
A hasznos alapterület 122 m², két szinten:

Földszint:
- Tágas, 33 m²-es amerikai konyhás nappali, közvetlen teraszkapcsolattal és kerttel
- Zuhanyzó + WC
- Háztartási helyiség
- Nagyméretű, fedett garázs – akár nagyobb autó számára is ideális

Emelet:
- 3 kényelmes hálószoba
- 2 modern fürdőszoba

A házhoz tartozó 231 m²-es privát kert igazi oázis, mely teljes intimitást biztosít, így tökéletes lehet családoknak, pihenéshez vagy akár kertészkedéshez is.

Prémium műszaki tartalom
- 30 cm Porotherm főfalak
- 3 rétegű, hőszigetelt műanyag nyílászárók
- Monolit vasbeton födém
- Terrán Zenit Max Carbon tetőcserép
- 15 cm homlokzati hőszigetelés, korszerű energetikai besorolással
- Hőszivattyús rendszer: mindenhol padlófűtés, nappaliban fan-coil és az emeleten mennyezeti fűtés-hűtés
- Minőségi burkolatok, térkövezett udvar

Extrák, amelyek valódi kényelmet adnak
- Okosotthon rendszer
- Elektromos redőnyök
- Kamera- és riasztórendszer előkészítés
- Videókaputelefon
- Elektromos kapu
- Öntözőrendszer
- Elektromos autótöltő kiépítése
- Garázsban temperáló fűtés + 5 cm belső szigetelés
- WPC kerítés
- Rejtett- és udvarvilágítás
- Beépített bútorok megegyezés alapján
- Teljes digitális átláthatóság az építkezés során

A PlanRadar rendszernek köszönhetően Ön:
- Valós időben követheti az építkezés minden lépését kamerán keresztül
- Kéthetente részletes, fotókkal ellátott jelentést kap
- A projekt végén minden dokumentumot digitálisan átvehet egy biztonságos felületen

Finanszírozás
Az ingatlan hitelre is megvásárolható, ügyfeleink számára díjmentes hitelügyintézéssel, minden hazai bank kínálatából.
Állami támogatások is igénybe vehetők!

Várható átadás: 2026. IV. negyedév

Ne maradjon le!
Ilyen színvonalú, modern és biztonságos otthon ritkán kerül a piacra. Kiváló választás családoknak, pároknak és mindenkinek, aki igényes, hosszú távon értékálló ingatlant keres.

Forduljon hozzám bizalommal a hét bármely napján!

Hirdetés feltöltve: 2025. 11. 29. Utoljára módosítva: 2026. 05. 12.

4 szobás ikerházak ára Budapesten

Ebből az összehasonlításból megtudhatod, hogyan viszonyul a lakás ára a környékbeli ikerházak átlagos árához. Ez nem azt jelenti, hogy ennyivel olcsóbb vagy drágább, mint amennyit a lakás ér, hanem hogy ennyivel tér el a környékbeli átlagtól.

Ennek a m² ára
X. kerület m² ár
Budapest m² ár
1065 e Ft
982 e Ft -8%
1156 e Ft 8%
Ennek az ára
X. kerület átlagár
Budapest átlagár
129.9 M Ft m Ft
121.1 m Ft -7%
167.1 m Ft 22%

Az ingatlan elhelyezkedése

Cím: Budapest, X. kerület, földszint

Eladó ingatlanok a környékről

X. kerület
Eladó ikerház

Budapest, X. kerület

134.9 M Ft
4 szoba
122 m²
XXII. kerület
Eladó ikerház

Budapest, XXII. kerület

175 M Ft
6 + 2 szoba
120 m²
X. kerület
Eladó ikerház

Budapest, X. kerület

117 M Ft
4 szoba
129 m²
VI. kerület
Eladó téglalakás

Budapest, VI. kerület

98 M Ft
2 szoba
70 m²
X. kerület
Eladó iroda

Budapest, X. kerület

779 M Ft
1760 m²
1716 m²
XI. kerület
Eladó panellakás

Budapest, XI. kerület

69.9 M Ft
1 + 1 szoba
49 m²
XX. kerület
Eladó családi ház

Budapest, XX. kerület

124.9 M Ft
4 szoba
140 m²
VIII. kerület
Eladó téglalakás

Budapest, VIII. kerület

82 M Ft
1 + 1 szoba
63 m²
X. kerület
Eladó ikerház

Budapest, X. kerület

117 M Ft
4 szoba
129 m²
X. kerület
Eladó ikerház

Budapest, X. kerület

117 M Ft
4 szoba
129 m²
X. kerület
Eladó ikerház

Budapest, X. kerület

129.9 M Ft
4 + 1 szoba
122 m²
XX. kerület
Eladó téglalakás

Budapest, XX. kerület

104900 M Ft
4 szoba
88 m²
X. kerület
Eladó ikerház

Budapest, X. kerület

129.9 M Ft
4 + 1 szoba
122 m²
X. kerület
Eladó ikerház

Budapest, X. kerület

149.5 M Ft
5 szoba
171 m²
XIII. kerület
Eladó téglalakás

Budapest, XIII. kerület

150 M Ft
5 szoba
113 m²
X. kerület
Eladó ikerház

Budapest, X. kerület

134.9 M Ft
4 + 1 szoba
122 m²
X. kerület
Eladó ikerház

Budapest, X. kerület

117 M Ft
4 szoba
129 m²
XI. kerület, Kelenföld, Barázda utca
Eladó téglalakás

Budapest, XI. kerület

117 M Ft
1 + 1 szoba
56 m²
VII. kerület
Eladó téglalakás

Budapest, VII. kerület

114 M Ft
3 szoba
97 m²
XXIII. kerület
Eladó téglalakás

Budapest, XXIII. kerület

39.9 M Ft
3 szoba
57 m²
X. kerület
Eladó ikerház

Budapest, X. kerület

139 M Ft
4 + 1 szoba
200 m²
X. kerület
Eladó ikerház

Budapest, X. kerület

117 M Ft
4 szoba
129 m²
XVIII. kerület
Eladó családi ház

Budapest, XVIII. kerület

30 M Ft
2 + 1 szoba
110 m²
X. kerület
Eladó ikerház

Budapest, X. kerület

134.9 M Ft
4 szoba
122 m²

Falusi CSOK ingatlanok

Ceglédbercel
Eladó családi ház

Ceglédbercel

89 M Ft
4 szoba
135 m²
Kunadacs
Eladó családi ház

Kunadacs

80 M Ft
4 szoba
148 m²
Jobbágyi
Eladó családi ház

Jobbágyi

399 M Ft
7 szoba
200 m²
Lovasberény
Eladó sorház

Lovasberény

78 M Ft
4 + 1 szoba
124 m²
Kenyeri
Eladó családi ház

Kenyeri

26.64 M Ft
3 szoba
167 m²
Ceglédbercel
Eladó családi ház

Ceglédbercel

39.9 M Ft
3 szoba
55 m²
Balatonszepezd
Eladó családi ház

Balatonszepezd

299 M Ft
5 szoba
220 m²
Szabadbattyán
Eladó családi ház

Szabadbattyán

62 M Ft
5 szoba
210 m²