River Life

Eladó téglalakás
Budapest, VIII. kerület, 1. emelet

+ 17 kép 1/20
79 990 000 Ft79.99 M Ft 1 230 615 Ft/m2
2 szoba
65 m²
1. emelet
építés éve:1935

Részletes adatok

Állapot: Felújított
Fűtés: Gázkonvektor
Emelet: 1. emelet
Extrák: Lift
Energetikai besorolás: Nem adta meg a hirdető

Az OTP Bank lakáshitel ajánlataFizetett hirdetés

+36 70 206
Tamásné Mocsári Ildikó
referens

Érdekel az OTP Bank kedvezményes lakáshitel ajánlata? *

* A kérdésre „Igen” válasz bejelölése esetén, az „Üzenet küldése” gombra kattintva kijelentem, hogy az OTP Bank Nyrt. Adatkezelési tájékoztatójának tartalmát megismertem és tudomásul vettem.

Eladó téglalakás leírása

***Az Otthon Start Program 3%-os fix kamatozású hitel feltételeinek megfelelő lakás!***
*** Fiatal párok, egyetemisták figyelem!!! ***

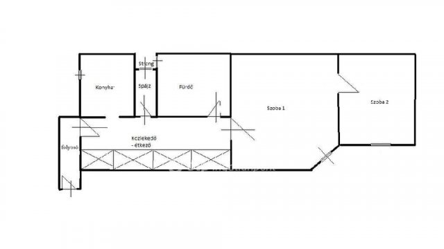
Eladó Budapest VIII. kerület, Nagykörúton belül, a Palotanegyedben, egy 65 nm alapterületű, 2 szobás, I. emeleti, szépen felújított, belső udvarra néző, belvárosi, társasházi lakás. A lakáshoz tartozik egy 6 nm-es zárható folyórész, ami tökéletesen használható erkélyként is.

Az ingatlan egy rendezett, liftes, polgári társasházban található. A társasház csendes, biztonságos, szépen karbantartott. A lakóközösség fiatalos és barátságos, emiatt az emberek szeretnek ott élni.

A lakás 2 éve teljeskörű felújításon esett át, aminek köszönhetően a teljes villany-, és vízvezeték csere megtörtént. A lakás nagy ablakainak köszönhetően szép, világos, napfényes. A szobák tágas belső terekkel rendelkeznek, az otthon melegét gázkonvektor biztosítja, a meleg vizet villanybojler állítja elő. A nappaliba légkondicionáló lett felszerelve. A fotókon látható teljes berendezés a vételár részét képezi.

A lakás kiváló adottságokkal rendelkezik, és tökéletes választás lehet fiatalok számára is első otthonnak, illetve főiskolásoknak/egyetemistáknak egyaránt.

A közös költség 19.500,- Ft. A közüzemi számlák egyedi mérőórák alapján kerülnek elszámolásra.

A lakásban minden kézre áll, az új lakó megkapja a kulcsot és már költözhet is, 1/1 tulajdoni hányadú .

A környék rendkívül jó infrastruktúrával rendelkezik: a közelben számos élelmiszerbolt, Corvin Plaza, óvoda, iskola, orvosi rendelő, posta, bank található. Néhány perces sétatávolságon belül több felsőoktatási intézmény is könnyen elérhető (ELTE, SOTE, Pázmány Péter Katolikus Egyetem, SOTE, Óbudai Egyetem). Emiatt befektetőknek is ideális választás lehet, hiszen könnyen, gyorsan kiadható. A Nagykörút 1 perc sétával elérhető.

Kitűnő elhelyezkedésének köszönhetően tömegközlekedéssel (autóbusz, trolibusz, villamos, metró) a város bármely pontja könnyedén elérhető.

Amennyiben hirdetésem felkeltette az érdeklődését, kérdése van, illetve szeretné megtekinteni a lakást, kérem, hívjon, bizalommal!

ENERGETIKAI TANÚSÍTVÁNY NEM ÁLL RENDELKEZÉSRE!

Referenciaszám: M326253

Az energetikai tanúsítvány készítése folyamatban van, amint rendelkezésre áll, úgy azzal a hirdetés frissítésre kerül.

Referencia szám: M326253-ZE

Hirdetés feltöltve: 2026. 04. 20. Utoljára módosítva: 2026. 05. 10.

2 szobás téglalakások ára Budapesten

Ebből az összehasonlításból megtudhatod, hogyan viszonyul a lakás ára a környékbeli téglalakások átlagos árához. Ez nem azt jelenti, hogy ennyivel olcsóbb vagy drágább, mint amennyit a lakás ér, hanem hogy ennyivel tér el a környékbeli átlagtól.

Ennek a m² ára
VIII. kerület m² ár
Budapest m² ár
1231 e Ft
1449 e Ft 15%
1690 e Ft 27%
Ennek az ára
VIII. kerület átlagár
Budapest átlagár
79.99 M Ft m Ft
73.4 m Ft -9%
88.7 m Ft 10%

Az ingatlan elhelyezkedése

Cím: Budapest, VIII. kerület, 1. emelet

Eladó ingatlanok a környékről

IV. kerület
Eladó panellakás

Budapest, IV. kerület

50 M Ft
2 + 2 szoba
71 m²
VIII. kerület
Eladó téglalakás

Budapest, VIII. kerület

69.9 M Ft
3 szoba
84 m²
VIII. kerület, Józsefváros, Baross utca
Eladó téglalakás

Budapest, VIII. kerület

199 M Ft
859 m²
VIII. kerület, Józsefváros, Kálvária utca 16
Eladó téglalakás

Budapest, VIII. kerület

67 M Ft
1 + 1 szoba
47 m²
VIII. kerület, Józsefváros
Eladó téglalakás

Budapest, VIII. kerület

61.6 M Ft
1 szoba
80 m²
VI. kerület, Belső Terézváros, Teréz körút 20
Eladó ipari ingatlan

Budapest, VI. kerület

75 M Ft
202 m²
II. kerület
Eladó téglalakás

Budapest, II. kerület

90 M Ft
2 szoba
50 m²
VIII. kerület
Eladó téglalakás

Budapest, VIII. kerület

123.9 M Ft
3 szoba
98 m²
XII. kerület
Eladó téglalakás

Budapest, XII. kerület

114 M Ft
3 szoba
60 m²
VIII. kerület
Eladó téglalakás

Budapest, VIII. kerület

88.504 M Ft
2 szoba
55 m²
XIII. kerület
Eladó panellakás

Budapest, XIII. kerület

50 M Ft
2 szoba
51 m²
II. kerület, Törökvész, Lepke utca
Eladó téglalakás

Budapest, II. kerület

0.58 M Ft
3 szoba
86 m²
VIII. kerület
Eladó téglalakás

Budapest, VIII. kerület

85.418 M Ft
2 szoba
58 m²
VII. kerület, Belső Erzsébetváros, Dohány utca 22-24
Eladó téglalakás

Budapest, VII. kerület

89 M Ft
2 szoba
59 m²
VIII. kerület
Eladó téglalakás

Budapest, VIII. kerület

67 M Ft
2 szoba
47 m²
III. kerület, Békásmegyer, Metrodom Young
Eladó téglalakás

Budapest, III. kerület

95 M Ft
1 + 2 szoba
38 m²
VIII. kerület, Józsefváros, 8. Népszínház u
Eladó téglalakás

Budapest, VIII. kerület

79.8 M Ft
3 + 1 szoba
100 m²
VIII. kerület
Eladó téglalakás

Budapest, VIII. kerület

85.418 M Ft
2 szoba
58 m²
VIII. kerület, Palotanegyed, Békési utca
Eladó téglalakás

Budapest, VIII. kerület

44.7 M Ft
2 szoba
42 m²
VIII. kerület, Józsefváros, Kálvária utca 16
Eladó téglalakás

Budapest, VIII. kerület

109.9 M Ft
4 szoba
79 m²
X. kerület
Eladó panellakás

Budapest, X. kerület

84.9 M Ft
3 szoba
71 m²
XIX. kerület, Kispest, Lehel utca 27
Eladó panellakás

Budapest, XIX. kerület

74.8 M Ft
2 + 1 szoba
67 m²
I. kerület
Eladó téglalakás

Budapest, I. kerület

95 M Ft
2 szoba
43 m²
XIII. kerület
Eladó téglalakás

Budapest, XIII. kerület

76.8 M Ft
2 szoba
48 m²

Falusi CSOK ingatlanok

Kislippó
Eladó családi ház

Kislippó

17.99 M Ft
3 szoba
100 m²
Balatonszemes, Ady E. utca 6
Eladó téglalakás

Balatonszemes

108.9 M Ft
2 + 1 szoba
63 m²
Hegyeshalom, Margaréta utca 12
Eladó téglalakás

Hegyeshalom

50.09 M Ft
2 szoba
43 m²
Maráza
Eladó családi ház

Maráza

29.9 M Ft
3 szoba
96 m²
Rakamaz
Eladó családi ház

Rakamaz

86.9 M Ft
5 szoba
280 m²
Tótszentmárton
Eladó családi ház

Tótszentmárton

31.5 M Ft
5 szoba
130 m²
Tóalmás
Eladó családi ház

Tóalmás

38.9 M Ft
3 szoba
62 m²
Bag
Eladó családi ház

Bag

16.9 M Ft
6 szoba
160 m²