Kedves Felhasználónk! Rendszerfrissítés miatt az oldalunk 2026. február 9-én 12 órától várhatóan 20 óráig nem lesz elérhető. Köszönjük megértésed!
Avico Greentop

Eladó családi ház
Kápolnásnyék

+ 17 kép 1/20
167 900 000 Ft167.9 M Ft 763 182 Ft/m2
4 szoba
220 m2
építés éve:2006

Részletes adatok

Állapot: Felújított
Telekméret: 1428 m2
Fűtés: Gázkazán
Energetikai besorolás: A

Az OTP Bank lakáshitel ajánlataFizetett hirdetés

+36 20 487
Darnai Henrietta
referens

Érdekel az OTP Bank kedvezményes lakáshitel ajánlata? *

* A kérdésre „Igen” válasz bejelölése esetén, az „Üzenet küldése” gombra kattintva kijelentem, hogy az OTP Bank Nyrt. Adatkezelési tájékoztatójának tartalmát megismertem és tudomásul vettem.

Eladó családi ház leírása

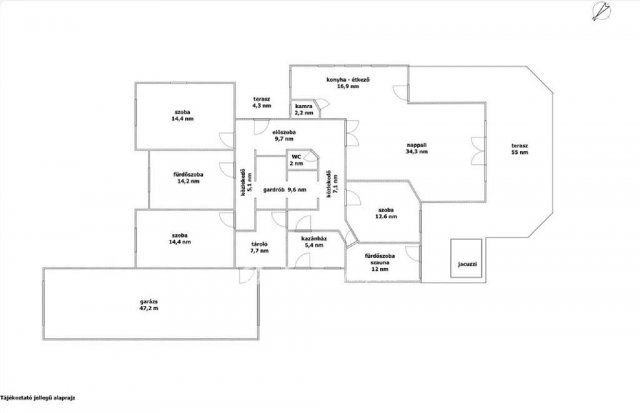
Fejér megye Kápolnásnyék 220 nm-es egyszintes családi ház eladó. A 2006-ban épült, tégla falazatú, szigetelt ingatlan a település csendes, családi házas övezetében egy 1428 nm-es gyönyörűen parkosított, folyamatosan gondozott telken helyezkedik el. A családi házat tágas terek jellemzik, amerikai konyhás nappali, 3 szoba, 1 kamra, 1 kádas fürdőszoba, 1 zuhanyzós fürdőszoba szaunával,1 külön WC, gardróbszoba, 2 tároló található benne, valamint tartozik hozzá egy 47,2 nm-es garázs, 4,3 m-es terasz és egy 55 nm-es fedett terasz jacuzzival. Az ingatlan hasznos alapterülete 167,6 nm, melyhez a garázs és a két fedett terasz fele bele lett számolva a meghirdetett alapterületbe, viszont a különálló melléképületek nem. Az ingatlan jogilag rendezett és tehermentes. A telek végében két különálló melléképület található, melyből az egyik tárolásra, a másik önálló kétszintes kisház 58 nm-es, akár kiadásra, otthoni vállalkozásnak, műhelynek, családi rendezvényeknek adhat otthon. A garázson felül a térkövezett udvaron több autó számára beállási lehetőség biztosított, a telken öntözőrendszer, bográcsozó, jacuzzi is található, Az összes nyílászáró műanyag és redőnnyel felszerelt. A fűtésről gázkazán gondoskodik, a nappaliban padlófűtéses, a többi helyiségben radiátoros hő leadással, ezenfelül a nappaliban található egy hangulatos cserépkályha, az ingatlanban pedig 3 db klíma. Az épület 6 kw-os napelemmel felszerelt. Nyugodt, biztonságos környék, átmenőforgalomtól mentes utcában, a vasútállomás 15 perces kényelmes sétával elérhető. Amennyiben felkeltette az érdeklődését, további kérdések esetén várom hívását, akár hétvégén is! Kedvezményes kamatú hitellel, teljes körű ügyintézéssel segítjük ügyfeleinket díjtalanul, az adásvétel és ingatlanátírás teljes lebonyolításával.

Hirdetés feltöltve: 2025. 10. 10. Utoljára módosítva: 2026. 02. 05.

4 szobás családi házak ára Kápolnásnyéken

Ebből az összehasonlításból megtudhatod, hogyan viszonyul a lakás ára a környékbeli családi házak átlagos árához. Ez nem azt jelenti, hogy ennyivel olcsóbb vagy drágább, mint amennyit a lakás ér, hanem hogy ennyivel tér el a környékbeli átlagtól.

Ennek a m² ára
Kápolnásnyék m² ár
763 e Ft
570 e Ft -34%
Ennek az ára
Kápolnásnyék átlagár
167.9 M Ft m Ft
80.9 m Ft -108%

Az ingatlan elhelyezkedése

Cím: Kápolnásnyék

Eladó családi házak a környékről

Eladó családi ház
Eladó családi ház

Kápolnásnyék

41 M Ft
3 szoba
97 m2
Eladó családi ház
Eladó családi ház

Kápolnásnyék

41 M Ft
3 szoba
97 m2
Eladó családi ház
Eladó családi ház

Velence

80 M Ft
6 szoba
200 m2
Eladó családi ház
Eladó családi ház

Iváncsa

39.9 M Ft
4 szoba
112 m2
Eladó családi ház
Eladó családi ház

Gánt, Gánti út

29.9 M Ft
2 + 1 szoba
40 m2
Eladó családi ház
Eladó családi ház

Velence

42.9 M Ft
1 szoba
40 m2
Eladó családi ház
Eladó családi ház

Mór

110 M Ft
12 szoba
340 m2
Eladó családi ház
Eladó családi ház

Pusztavám

22.9 M Ft
3 szoba
103 m2
Eladó családi ház
Eladó családi ház

Szabadbattyán

357.518 M Ft
9 + 2 szoba
1053 m2
Eladó családi ház
Eladó családi ház

Kápolnásnyék

84.9 M Ft
4 szoba
90 m2
Eladó családi ház
Eladó családi ház

Velence

85.9 M Ft
4 szoba
103 m2
Eladó családi ház
Eladó családi ház

Vértesacsa

86 M Ft
3 + 1 szoba
123 m2
Eladó családi ház
Eladó családi ház

Kápolnásnyék

198 M Ft
9 szoba
300 m2
Eladó családi ház
Eladó családi ház

Csákvár, Kossuth utca

76 M Ft
1 szoba
181 m2
Eladó családi ház
Eladó családi ház

Kápolnásnyék

130 M Ft
4 szoba
326 m2
Eladó családi ház
Eladó családi ház

Kápolnásnyék

84.9 M Ft
4 szoba
90 m2
Eladó családi ház
Eladó családi ház

Alcsútdoboz, Szabadság utca

320 M Ft
12 szoba
620 m2
Eladó családi ház
Eladó családi ház

Vereb

49.9 M Ft
1 + 3 szoba
80 m2
Eladó családi ház
Eladó családi ház

Kápolnásnyék

84.9 M Ft
4 szoba
90 m2
Eladó családi ház
Eladó családi ház

Kápolnásnyék

85 M Ft
4 szoba
112 m2
Eladó családi ház
Eladó családi ház

Székesfehérvár

69.9 M Ft
3 szoba
95 m2
Eladó családi ház
Eladó családi ház

Besnyő

25 M Ft
1 szoba
30 m2
Eladó családi ház
Eladó családi ház

Kápolnásnyék, Móra Ferenc utca

89.9 M Ft
5 szoba
208 m2
Eladó családi ház
Eladó családi ház

Kápolnásnyék

118.6 M Ft
1 + 4 szoba
136 m2

Falusi CSOK ingatlanok

Eladó családi ház
Eladó családi ház

Egerág

159 M Ft
5 szoba
178 m2
Eladó családi ház
Eladó családi ház

Zsámbok

49.9 M Ft
3 + 1 szoba
89 m2
Eladó családi ház
Eladó családi ház

Szabadbattyán

163.99 M Ft
5 szoba
255 m2
Eladó családi ház
Eladó családi ház

Adásztevel

8.9 M Ft
2 szoba
63 m2
Eladó téglalakás
Eladó téglalakás

Balatonszemes

123.3 M Ft
2 szoba
70 m2
Eladó családi ház
Eladó családi ház

Újlengyel

59.9 M Ft
3 szoba
73 m2
Eladó családi ház
Eladó családi ház

Tápszentmiklós

59.8 M Ft
5 szoba
110 m2
Eladó téglalakás
Eladó téglalakás

Balatonszemes

119.9 M Ft
2 szoba
81 m2