Astora Art House

Eladó üzlethelyiség
Budapest, IX. kerület, Ferencváros, Drégely utca

+ 12 kép 1/15
54 900 000 Ft54.9 M Ft 549 000 Ft/m2
100 m2

Részletes adatok

Állapot: Felújított
Fűtés: Gázkazán
Energetikai besorolás: Nem adta meg a hirdető

Az OTP Bank lakáshitel ajánlataFizetett hirdetés

+36 20 852
Pozsár B. Larisa
Starting Ingatlan Iroda

Érdekel az OTP Bank kedvezményes lakáshitel ajánlata? *

* A kérdésre „Igen” válasz bejelölése esetén, az „Üzenet küldése” gombra kattintva kijelentem, hogy az OTP Bank Nyrt. Adatkezelési tájékoztatójának tartalmát megismertem és tudomásul vettem.

Eladó üzlethelyiség leírása

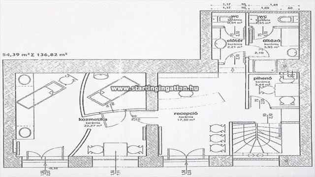
Hivatkozási szám: E-IX-9-464 Azonosító: E-IX-9-464Eladó egy páratlan adottságokkal rendelkező, 100 m²-es utcafronti üzlethelyiség Budapest IX. kerületében, a Drégely utcában A földszinti, 55 m²-es nagyportálos üzlettér világos, tágas és igényesen felújított. A 3,9 méteres belmagasság lehetővé teszi galéria kialakítását is, így a tér sokféleképpen alakítható. Az üzletbe állmennyezet került kialakításra, így a belmagasság 3,5 m. A helyiségek között recepció, munkatér, pihenő, közösségi és személyzeti mosdók, valamint konyha és zuhanyzó is található. Az ingatlan két külön utcafronti bejárattal rendelkezik, így akár két vállalkozás is működhet benne egymás mellett.A földszinti részhez közvetlenül kapcsolódó, 45 m²-es, elszeparált pince kiválóan alkalmas raktárnak, tárolónak vagy akár további munkatérnek.Az ingatlan frissen festett, költségmentes és azonnal birtokba vehető. A biztonságról modern riasztórendszer, alumínium redőnyök és rácsok gondoskodnak. A víz-, villany- és gázfogyasztás egyedi mérők alapján fizetendő, éjszakai áram is be van vezetve.Funkcióját tekintve rendkívül sokoldalú: tökéletes választás lehet magánorvosi vagy fogorvosi rendelőnek, szépségszalonnak, irodának, üzletnek, webáruházi központnak vagy bemutatóteremnek.Kiváló elhelyezkedésének köszönhetően ez az ingatlan igazi ritkaság a piacon: a Mester utca, a Haller utca és a Boráros tér közvetlen közelében található, így mind gyalogosan, mind tömegközlekedéssel könnyen megközelíthető. A 4-es, 6-os, 24-es és 51-es villamos, a 3-as metró, valamint a HÉV is néhány perc sétára van.Az ingatlan tehermentes, az eladó magánszemély, így az ügyintézés gyors és egyszerű.Azon kedves ügyfelek, akik általunk találják meg leendő otthonukat, az ügyvédünk által szerkesztett adásvételi szerződés díjából kedvezményben részesülnek. Eladná ingatlanát? Bízza ránk! Nálunk az értékesítés átlátható, egyszerű és biztonságos folyamat. A vételt és az eladást egy kézben tartjuk - így Önnek csak a sikeres üzletet kell ünnepelnie. Hívjon minket még ma, és ingyenesen felmérjük ingatlana piaci értékét! Miért válasszon minket? Mert: Gyors értékesítés, Széles vevőkör, Tapasztalt értékesítők, Modern, kiemelt online megjelenés, Rugalmas jutalék, Teljes körű ügyintézés az első lépéstől a birtokbaadásig. Hívjon most, vagy Írjon üzenetet még ma, és indítsuk el az értékesítést! Mobil: +36-20-852-8400 További ajánlataim: startingingatlan.hu/ertekesitoink/225

Hirdetés feltöltve: 2025. 11. 05. Utoljára módosítva: 2025. 11. 25.

üzlethelyiségek ára Budapesten

Ebből az összehasonlításból megtudhatod, hogyan viszonyul a lakás ára a környékbeli üzlethelyiségek átlagos árához. Ez nem azt jelenti, hogy ennyivel olcsóbb vagy drágább, mint amennyit a lakás ér, hanem hogy ennyivel tér el a környékbeli átlagtól.

Ennek a m² ára
Ferencváros m² ár
IX. kerület m² ár
Budapest m² ár
549 e Ft
779 e Ft 30%
775 e Ft 29%
1071 e Ft 49%
Ennek az ára
Ferencváros átlagár
IX. kerület átlagár
Budapest átlagár
54.9 M Ft m Ft
133.6 m Ft 59%
81.6 m Ft 33%
150.3 m Ft 63%

Az ingatlan elhelyezkedése

Cím: Budapest, IX. kerület, Ferencváros, Drégely utca

Eladó ingatlanok a környékről

Eladó üzlethelyiség
Eladó üzlethelyiség

IX. kerület, Ferencváros, IX. kerület, Boráros tér

28.9 M Ft
30 m2
Eladó téglalakás
Eladó téglalakás

XI. kerület, Kelenföld, Fehérvári út 120

96.99 M Ft
2 szoba
44 m2
Eladó téglalakás
Eladó téglalakás

XI. kerület, Kelenföld, Fehérvári út 120

127.69 M Ft
3 szoba
65 m2
Eladó üzlethelyiség
Eladó üzlethelyiség

IX. kerület, Ferencváros, Gubacsi út

195 M Ft
1090 m2
Eladó üzlethelyiség
Eladó üzlethelyiség

IX. kerület

55.9 M Ft
3 szoba
46 m2
Eladó üzlethelyiség
Eladó üzlethelyiség

IX. kerület

34.99 M Ft
125 m2
Eladó téglalakás
Eladó téglalakás

XI. kerület, Kelenföld, Fehérvári út 120

96.49 M Ft
2 szoba
47 m2
Eladó üzlethelyiség
Eladó üzlethelyiség

IX. kerület, Ferencváros, Angyal utca

99 M Ft
4 szoba
193 m2
Eladó üzlethelyiség
Eladó üzlethelyiség

IX. kerület

48 M Ft
98 m2
Eladó üzlethelyiség
Eladó üzlethelyiség

IX. kerület, Ferencváros, Lónyay utca

150 M Ft
450 m2
Eladó üzlethelyiség
Eladó üzlethelyiség

IX. kerület, Ferencváros, Kálvin tér vonzásában

325 M Ft
260 m2
Eladó üzlethelyiség
Eladó üzlethelyiség

IX. kerület, Üllői út

34.99 M Ft
125 m2
Eladó téglalakás
Eladó téglalakás

XI. kerület, Kelenföld, Fehérvári út 120

119.75 M Ft
3 szoba
64 m2
Eladó téglalakás
Eladó téglalakás

XI. kerület, Kelenföld, Fehérvári út 120

62.9 M Ft
1 szoba
28 m2
Eladó téglalakás
Eladó téglalakás

XI. kerület, Kelenföld, Fehérvári út 120

89.99 M Ft
2 szoba
36 m2
Eladó téglalakás
Eladó téglalakás

XI. kerület, Kelenföld, Fehérvári út 120

137.79 M Ft
3 szoba
68 m2
Eladó üzlethelyiség
Eladó üzlethelyiség

IX. kerület, Ferencváros

55 M Ft
45 m2
Eladó üzlethelyiség
Eladó üzlethelyiség

IX. kerület

1110.54 M Ft
729 m2
Eladó téglalakás
Eladó téglalakás

XI. kerület, Kelenföld, Fehérvári út 120

125.49 M Ft
3 szoba
65 m2
Eladó panellakás
Eladó panellakás

XXI. kerület

82 M Ft
3 szoba
78 m2
Eladó téglalakás
Eladó téglalakás

XIII. kerület, Vizafogó, Turóc utca

83.9 M Ft
2 szoba
35 m2
Eladó téglalakás
Eladó téglalakás

XI. kerület, Kelenföld, Fehérvári út 120

95.79 M Ft
2 szoba
47 m2
Eladó üzlethelyiség
Eladó üzlethelyiség

IX. kerület

55.9 M Ft
3 szoba
46 m2

Falusi CSOK ingatlanok

Eladó családi ház
Eladó családi ház

Ceglédbercel, Iskola utca

99.99 M Ft
5 szoba
128 m2
Eladó családi ház
Eladó családi ház

Hegyfalu

14.9 M Ft
2 szoba
70 m2
Eladó családi ház
Eladó családi ház

Törtel, Kőrösi út 101

22.21 M Ft
2 szoba
117 m2
Eladó családi ház
Eladó családi ház

Hernádnémeti

18.9 M Ft
2 szoba
62 m2
Eladó családi ház
Eladó családi ház

Vitnyéd, Petőfi Sándor utca 3

16.71 M Ft
1 + 1 szoba
99 m2
Eladó családi ház
Eladó családi ház

Orci

119.9 M Ft
6 szoba
200 m2
Eladó családi ház
Eladó családi ház

Újszilvás

22.5 M Ft
2 szoba
65 m2
Eladó téglalakás
Eladó téglalakás

Herend

63 M Ft
3 szoba
69 m2