River Life

Eladó téglalakás
Budapest, II. kerület, 2. emelet

1/2
153 300 000 Ft153.3 M Ft 2 643 103 Ft/m2
3 szoba
58 m²
2. emelet
építés éve:2021

Részletes adatok

Fűtés: Egyéb
Emelet: 2. emelet
Közmű: Víz, Villany, Csatorna, Szélessáv, KábelTV
Energetikai besorolás: A+

Az OTP Bank lakáshitel ajánlataFizetett hirdetés

+36 30 948
Harai és Társai Kereskedelmi és Szolgáltató Betéti Társaság
Harai Ingatlaniroda

Érdekel az OTP Bank kedvezményes lakáshitel ajánlata? *

* A kérdésre „Igen” válasz bejelölése esetén, az „Üzenet küldése” gombra kattintva kijelentem, hogy az OTP Bank Nyrt. Adatkezelési tájékoztatójának tartalmát megismertem és tudomásul vettem.

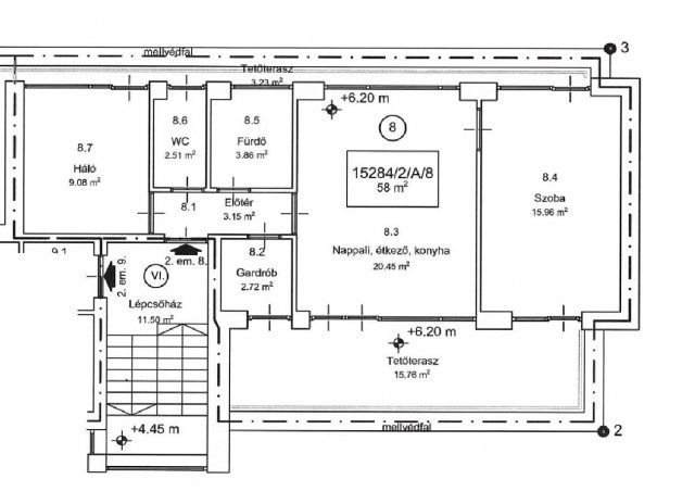
Eladó téglalakás leírása

Tetőteraszos lakás eladó a XII. kerület csendes, zöld részén
A XII. kerület egyik nyugodt, zöldövezeti utcájában kínálunk megvételre egy második emeleti, világos lakást, saját tetőterasszal, egy 9 lakásos társasházban.
A lakás hűtése és fűtése Daikin levegő-víz hőszivattyúról megoldott. Mennyezet hűtés/fűtés!
Az ingatlan 57,73 m²-es, jól kihasználható terekkel. A nappali–étkező–konyha egy légtérben helyezkedik el, amely tágas és világos életteret biztosít. Emellett egy hálószoba és egy külön nyíló szoba áll rendelkezésre, így ideális lehet pároknak, kisebb családnak vagy akár otthoni dolgozószobát keresőknek is.
Helyiségek:
előtér
nappali–étkező–konyha
hálószoba
külön szoba
fürdőszoba
külön WC
gardrób
A lakás egyik legnagyobb előnye a 15,76 m²-es tetőterasz, amelyet egy további 3,23 m²-es terasz egészít ki. A terasz kiváló lehetőség pihenésre, baráti beszélgetésekre vagy akár egy esti vacsorára a szabadban.
A felső szintnek köszönhetően a lakás csendes, napfényes, a környezet rendezett és zöld. A környéken minden fontos szolgáltatás elérhető, a közlekedés autóval és tömegközlekedéssel is kényelmes.
Az ingatlanhoz egy 14 m²-es gépkocsi-beálló tartozik, amely külön megvásárolható.
Ha a XII. kerületben keres tetőteraszos, jól élhető lakást nyugodt környezetben, ez az ingatlan kiváló választás lehet.
További információért és megtekintésért keressen bizalommal.

Hirdetés feltöltve: 2026. 02. 20.

3 szobás téglalakások ára Budapesten

Ebből az összehasonlításból megtudhatod, hogyan viszonyul a lakás ára a környékbeli téglalakások átlagos árához. Ez nem azt jelenti, hogy ennyivel olcsóbb vagy drágább, mint amennyit a lakás ér, hanem hogy ennyivel tér el a környékbeli átlagtól.

Ennek a m² ára
II. kerület m² ár
Budapest m² ár
2643 e Ft
2091 e Ft -26%
1698 e Ft -56%
Ennek az ára
II. kerület átlagár
Budapest átlagár
153.3 M Ft m Ft
182.3 m Ft 16%
131.4 m Ft -17%

Az ingatlan elhelyezkedése

Cím: Budapest, II. kerület, 2. emelet

Eladó ingatlanok a környékről

II. kerület
Eladó téglalakás

Budapest, II. kerület

450 M Ft
4 szoba
138 m²
XIII. kerület, Angyalföld, Frangepán utca 74
Eladó téglalakás

Budapest, XIII. kerület

94.36 M Ft
3 szoba
67 m²
II. kerület
Eladó téglalakás

Budapest, II. kerület

417.098 M Ft
2 szoba
221 m²
II. kerület, Rózsadomb
Eladó téglalakás

Budapest, II. kerület

187 M Ft
2 szoba
64 m²
XIII. kerület, Angyalföld, Frangepán utca 74
Eladó téglalakás

Budapest, XIII. kerület

111.82 M Ft
3 szoba
80 m²
II. kerület, Rózsadomb
Eladó téglalakás

Budapest, II. kerület

700 M Ft
4 szoba
236 m²
II. kerület, Rézmál
Eladó téglalakás

Budapest, II. kerület

421.6 M Ft
5 szoba
138 m²
II. kerület, Rézmál
Eladó téglalakás

Budapest, II. kerület

266.6 M Ft
3 szoba
75 m²
II. kerület, Szemlőhegy, Szeréna út
Eladó téglalakás

Budapest, II. kerület

187 M Ft
2 szoba
64 m²
II. kerület, Lipótmező, Hűvösvölgyi út
Eladó téglalakás

Budapest, II. kerület

199.99 M Ft
6 szoba
115 m²
II. kerület
Eladó téglalakás

Budapest, II. kerület

85 M Ft
1 szoba
56 m²
II. kerület
Eladó téglalakás

Budapest, II. kerület

1042.745 M Ft
6 szoba
370 m²
III. kerület, Óbuda, Szomolnok utca
Eladó téglalakás

Budapest, III. kerület

89.9 M Ft
2 + 2 szoba
96 m²
I. kerület, Víziváros, Széna tér
Eladó iroda

Budapest, I. kerület

189 M Ft
4 szoba
90 m²
VIII. kerület, Józsefváros, Rákóczi út
Eladó téglalakás

Budapest, VIII. kerület

185 M Ft
5 szoba
121 m²
V. kerület, Belváros, Petőfi Sándor utca
Eladó téglalakás

Budapest, V. kerület

134 M Ft
2 szoba
59 m²
II. kerület
Eladó téglalakás

Budapest, II. kerület

325 M Ft
4 + 1 szoba
180 m²
XIII. kerület, Angyalföld, Frangepán utca 74
Eladó téglalakás

Budapest, XIII. kerület

108.38 M Ft
3 szoba
74 m²
XIV. kerület, Nagyzugló, Kövér Lajos utca
Eladó téglalakás

Budapest, XIV. kerület

168 M Ft
4 szoba
84 m²
XIII. kerület, Angyalföld, Frangepán utca 74
Eladó téglalakás

Budapest, XIII. kerület

115.84 M Ft
3 szoba
80 m²
II. kerület, Rózsadomb, Szemlőhegy
Eladó téglalakás

Budapest, II. kerület

250 M Ft
4 szoba
142 m²
XXII. kerület, Budafok, Baross utca
Eladó családi ház

Budapest, XXII. kerület

222 M Ft
6 + 1 szoba
200 m²
XIII. kerület, Angyalföld, Frangepán utca 74
Eladó téglalakás

Budapest, XIII. kerület

63.99 M Ft
1 szoba
32 m²
VI. kerület, Külső Terézváros, Szív utca
Eladó téglalakás

Budapest, VI. kerület

124.9 M Ft
3 szoba
94 m²

Falusi CSOK ingatlanok

Végegyháza
Eladó családi ház

Végegyháza

62.9 M Ft
4 + 1 szoba
150 m²
Dunavecse
Eladó családi ház

Dunavecse

37 M Ft
2 szoba
110 m²
Cún, Fő utca
Eladó családi ház

Cún

8.5 M Ft
3 szoba
90 m²
Kislippó
Eladó családi ház

Kislippó

16 M Ft
3 szoba
100 m²
Balatonfenyves
Eladó családi ház

Balatonfenyves

430 M Ft
4 szoba
274 m²
Véménd, Zrínyi Miklós utca
Eladó családi ház

Véménd

12.99 M Ft
3 szoba
70 m²
Tokod
Eladó családi ház

Tokod

89 M Ft
6 szoba
187 m²
Mikepércs
Eladó családi ház

Mikepércs

56 M Ft
3 + 1 szoba
87 m²