Avico Greentop

Eladó téglalakás
Budapest, II. kerület, 1. emelet

+ 10 kép 1/13
132 000 000 Ft132 M Ft 2 095 238 Ft/m2
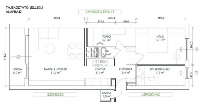
3 szoba
63 m²
1. emelet
építés éve:1970

Részletes adatok

Állapot: Felújított
Fűtés: Gázkazán
Emelet: 1. emelet
Energetikai besorolás: Nem adta meg a hirdető

Az OTP Bank lakáshitel ajánlataFizetett hirdetés

+36 70 465
Séfer Tamás
referens

Érdekel az OTP Bank kedvezményes lakáshitel ajánlata? *

* A kérdésre „Igen” válasz bejelölése esetén, az „Üzenet küldése” gombra kattintva kijelentem, hogy az OTP Bank Nyrt. Adatkezelési tájékoztatójának tartalmát megismertem és tudomásul vettem.

Eladó téglalakás leírása

Eladó egy frissen és magas színvonalon felújított, 60 nm-es, egyedi tervezésű lakás Budapest II. kerületének egyik legkedveltebb, csendes részén, Zöldmál városrészben.

Az ingatlan valódi ritkaság a piacon: minden részletében átgondolt, harmonikus enteriőr és tudatos térkihasználás jellemzi.
A lakás kialakításánál az esztétikum és a funkcionalitás tökéletes egyensúlya volt a cél — minden négyzetméter értéket képvisel.

Főbb jellemzők:
- Kiváló elrendezésű, világos terek,
- Egyedi gyártású bútorok és nyílászárók — prémium minőség, nem tömeggyártott megoldások,
- Magas színvonalú anyaghasználat és igényes kivitelezés,
- Fűtő-hűtő klíma minden helyiségben a maximális komfortért,
- Hang- és hőszigetelt falak és nyílászárók,
- Megbízható, hatékony kazánfűtés (Ariston),
- Két külön bejáratú saját tároló (2 nm és 4 nm).

A lakáshoz tartozó terasz intim, zöldre néző kilátást biztosít, ideális helyszíne egy nyugodt reggeli kávézásnak vagy egy hosszú nap utáni esti kikapcsolódásnak.
Az emeleti elhelyezkedés privát életteret nyújt, miközben a környék természetközeli hangulata folyamatosan jelen van.

Ez az otthon ideális választás azok számára, akik a minőséget, az egyediséget és a zöldövezeti nyugalmat keresik — kompromisszumok nélkül.

További információért vagy megtekintési időpont egyeztetéséhez keressen bizalommal.

Az energetikai tanúsítvány készítése folyamatban van, amint rendelkezésre áll, úgy azzal a hirdetés frissítésre kerül.

Hirdetés feltöltve: 2026. 04. 01. Utoljára módosítva: 2026. 05. 10.

3 szobás téglalakások ára Budapesten

Ebből az összehasonlításból megtudhatod, hogyan viszonyul a lakás ára a környékbeli téglalakások átlagos árához. Ez nem azt jelenti, hogy ennyivel olcsóbb vagy drágább, mint amennyit a lakás ér, hanem hogy ennyivel tér el a környékbeli átlagtól.

Ennek a m² ára
II. kerület m² ár
Budapest m² ár
2095 e Ft
2074 e Ft -1%
1706 e Ft -23%
Ennek az ára
II. kerület átlagár
Budapest átlagár
132 M Ft m Ft
177.5 m Ft 26%
131.3 m Ft -1%

Az ingatlan elhelyezkedése

Cím: Budapest, II. kerület, 1. emelet

Eladó ingatlanok a környékről

VI. kerület
Eladó téglalakás

Budapest, VI. kerület

493 M Ft
5 szoba
285 m²
VII. kerület, Külső Erzsébetváros, István utca
Eladó téglalakás

Budapest, VII. kerület

84 M Ft
2 szoba
47 m²
II. kerület
Eladó téglalakás

Budapest, II. kerület

392.37 M Ft
2 szoba
221 m²
III. kerület
Eladó panellakás

Budapest, III. kerület

64.9 M Ft
3 szoba
50 m²
XV. kerület
Eladó családi ház

Budapest, XV. kerület

119.9 M Ft
5 szoba
144 m²
II. kerület
Eladó téglalakás

Budapest, II. kerület

144.9 M Ft
3 szoba
66 m²
VII. kerület, Külső Erzsébetváros, Erzsébet körút
Eladó téglalakás

Budapest, VII. kerület

195 M Ft
4 szoba
93 m²
II. kerület, Lipótmező, Hűvösvölgyi út
Eladó téglalakás

Budapest, II. kerület

199.99 M Ft
6 szoba
115 m²
II. kerület
Eladó téglalakás

Budapest, II. kerület

392.37 M Ft
3 szoba
220 m²
XII. kerület
Eladó téglalakás

Budapest, XII. kerület

137 M Ft
3 szoba
83 m²
II. kerület
Eladó téglalakás

Budapest, II. kerület

187 M Ft
2 szoba
64 m²
VII. kerület, Külső Erzsébetváros, Klauzál utca
Eladó téglalakás

Budapest, VII. kerület

63.4 M Ft
1 szoba
39 m²
II. kerület
Eladó téglalakás

Budapest, II. kerület

266.6 M Ft
3 szoba
75 m²
I. kerület
Eladó téglalakás

Budapest, I. kerület

270 M Ft
3 szoba
87 m²
VIII. kerület, Józsefváros, Rákóczi út
Eladó téglalakás

Budapest, VIII. kerület

192 M Ft
5 szoba
122 m²
II. kerület
Eladó téglalakás

Budapest, II. kerület

329 M Ft
4 + 1 szoba
153 m²
XIV. kerület
Eladó téglalakás

Budapest, XIV. kerület

65 M Ft
2 szoba
60 m²
II. kerület, Víziváros, Margit körút
Eladó téglalakás

Budapest, II. kerület

275 M Ft
9 + 1 szoba
240 m²
VII. kerület, Külső Erzsébetváros, Garay tér
Eladó téglalakás

Budapest, VII. kerület

68.5 M Ft
2 szoba
35 m²
XI. kerület
Eladó téglalakás

Budapest, XI. kerület

149.9 M Ft
4 szoba
139 m²
II. kerület
Eladó téglalakás

Budapest, II. kerület

745.503 M Ft
5 szoba
321 m²
XIV. kerület, Alsórákos, Ond vezér útja
Eladó panellakás

Budapest, XIV. kerület

62.6 M Ft
2 szoba
49 m²
II. kerület, Szemlőhegy, Szeréna út
Eladó téglalakás

Budapest, II. kerület

187 M Ft
2 szoba
64 m²
VII. kerület, Külső Erzsébetváros, Dózsa György út
Eladó téglalakás

Budapest, VII. kerület

95.5 M Ft
2 szoba
67 m²

Falusi CSOK ingatlanok

Németkér
Eladó családi ház

Németkér

149.9 M Ft
2 szoba
540 m²
Zagyvarékas, Erdő utca 16
Eladó családi ház

Zagyvarékas

0.1 M Ft
2 szoba
113 m²
Csurgó
Eladó családi ház

Csurgó

29 M Ft
3 szoba
80 m²
Sződ
Eladó családi ház

Sződ

102.9 M Ft
4 szoba
92 m²
Hosszúpereszteg
Eladó családi ház

Hosszúpereszteg

27.9 M Ft
4 szoba
0 m²
Rakamaz
Eladó családi ház

Rakamaz

86.9 M Ft
5 szoba
280 m²
Gyékényes
Eladó családi ház

Gyékényes

16.9 M Ft
3 szoba
83 m²
Szigliget, Soponyai út
Eladó ikerház

Szigliget

429 M Ft
7 + 2 szoba
212 m²