Metrodom

Eladó iroda
Budapest, X. kerület, Felsőrákos

+ 17 kép 1/20
277 000 000 Ft277 M Ft 503 636 Ft/m2
550 m2
építés éve:1989

Részletes adatok

Telekméret: 1020 m2
Fűtés: Gázkazán
Közmű: Gáz, Villany, Csatorna
Energetikai besorolás: Nem adta meg a hirdető

Az OTP Bank lakáshitel ajánlataFizetett hirdetés

+36 70 465
Kópis László
referens

Érdekel az OTP Bank kedvezményes lakáshitel ajánlata? *

* A kérdésre „Igen” válasz bejelölése esetén, az „Üzenet küldése” gombra kattintva kijelentem, hogy az OTP Bank Nyrt. Adatkezelési tájékoztatójának tartalmát megismertem és tudomásul vettem.

Eladó iroda leírása

Eladóvá vált egy családi házban működő gyártó cég telephelyeként szolgáló ingatlan!

Az ingatlan saját 1020 m2-es telekkel rendelkezik, ami a Keresztúri úton található!
BEFEKTETÉSI LEHETŐSÉG! ELADÁS-VISSZABÉRLÉSI KONSTRUKCIÓVAL IS!
A tulajdonos, eladás után az ingatlant akár hosszútávú bérleti szerződéssel is visszabérelné.

Az ingatlan főbb jellemzői:
- Az épület szintjei a földszint, emelet és az alagsor
- Fűtése cirkó kazán
- Víz, gáz, csatorna bekötve
- Minden helyiség fűtött
- Az emeleten 6, a földszinten 4, az alagsorban 1 klímaberendezés található
- Az ingatlan riasztó- és kamerarendszerrel felszerelt
- Az ingatlanhoz tartozik 3 faház, valamint 9 fémkonténer ( 3 konténer a szomszéd ingatlan területén található, érvényes bérleti szerződés jár hozzá)
- Az udvaron 10-12 parkolóhely található
- Az épület szigeteléssel rendelkezik

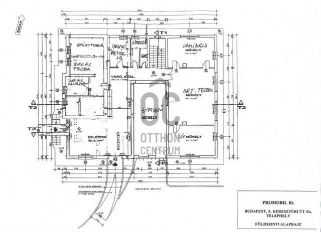
A földszinti helységek (315 cm-es belmagasság, 255,4 m2) :
- előtér/recepció 28 m2
-üzlet 23,08 m2
-orvosi váróterem
-orvosi rendelő
-5 kisebb helyiség
-1 mellékhelyiség
-4 műhely 89 m2
- közlekedő

Az emeleti helységek (255 cm-es belmagasság, 167 m2) :
-6 irodahelyiség
-2 mellékhelyiség
-1 teakonyha
- közlekedő

Az alagsori helységek (235 cm-es belmagasság, 128,43 m2):
-2 műhely 45 m2
-1 raktár 14,46 m2
-1 konyha 14,46 m2
-1 öltöző 6,8 m2
-1 zuhanyzó 2,8 m2
-1 mellékhelyiség 1,4 m2
-kazánház 12,3 m2
- közlekedő

Az ingatlan tömegközlekedéssel, személygépjárművel, és tehergépkocsival is kiválóan megközelíthető.

A gyártóegységek képei érthető módon nem publikusak, de kérésre elküldöm őket.

Az épület családi házon kívül használható irodának, logisztikai központnak, hostel-nek, műhelynek, irodaháznak, és számtalan lehetőség adott a jó közlekedés és elosztás miatt.

100 méteres körzetben SPAR, Aldi, egyéb üzletek, valamit benzinkút is található.

BKK megállók a közelben:
Busz: 44, 45, 67, 277
HÉV: H8, H9
Éjszakai: 908, 908A, 931

Hirdetés feltöltve: 2025. 12. 06. Utoljára módosítva: 2026. 01. 13.

Irodák ára Budapesten

Ebből az összehasonlításból megtudhatod, hogyan viszonyul a lakás ára a környékbeli irodák átlagos árához. Ez nem azt jelenti, hogy ennyivel olcsóbb vagy drágább, mint amennyit a lakás ér, hanem hogy ennyivel tér el a környékbeli átlagtól.

Ennek a m² ára
X. kerület m² ár
Budapest m² ár
504 e Ft
385 e Ft -31%
1009 e Ft 50%
Ennek az ára
X. kerület átlagár
Budapest átlagár
277 M Ft m Ft
458.7 m Ft 40%
267 m Ft -4%

Az ingatlan elhelyezkedése

Cím: Budapest, X. kerület, Felsőrákos

Eladó ingatlanok a környékről

Eladó téglalakás
Eladó téglalakás

III. kerület, Óbuda, Szomolnok utca

89.9 M Ft
2 + 2 szoba
96 m2
Eladó téglalakás
Eladó téglalakás

VI. kerület, Külső Terézváros, Szív utca

124.9 M Ft
3 szoba
94 m2
Eladó téglalakás
Eladó téglalakás

III. kerület, Óbudaisziget, Folyamőr utca

69.9 M Ft
1 szoba
25 m2
Eladó téglalakás
Eladó téglalakás

VIII. kerület, Palotanegyed, Rákóczi út

185 M Ft
5 szoba
121 m2
Eladó iroda
Eladó iroda

X. kerület, Felsőrákos

330.75 M Ft
2283 m2
Eladó iroda
Eladó iroda

X. kerület

1260 M Ft
4200 m²
4200 m2
Eladó iroda
Eladó iroda

X. kerület

54.08 M Ft
3 szoba
106 m2
Eladó téglalakás
Eladó téglalakás

VIII. kerület, Józsefváros, Balassa utca 7

114.73 M Ft
3 szoba
59 m2
Eladó téglalakás
Eladó téglalakás

XIV. kerület, Kiszugló, Kövér Lajos utca

168 M Ft
3 + 1 szoba
84 m2
Eladó iroda
Eladó iroda

X. kerület

380 M Ft
1042 m2
Eladó iroda
Eladó iroda

X. kerület

330.75 M Ft
17 szoba
2283 m2
Eladó téglalakás
Eladó téglalakás

IV. kerület, Újpest, Kassai utca

84.9 M Ft
2 + 1 szoba
71 m2
Eladó iroda
Eladó iroda

X. kerület

69.9 M Ft
10 szoba
151 m2
Eladó téglalakás
Eladó téglalakás

XIV. kerület

73 M Ft
1 + 2 szoba
43 m2
Eladó téglalakás
Eladó téglalakás

VIII. kerület, Józsefváros, Balassa utca 7

73.82 M Ft
1 szoba
33 m2
Eladó téglalakás
Eladó téglalakás

VII. kerület, Belső Erzsébetváros, Rózsa utca

170 M Ft
5 szoba
124 m2
Eladó iroda
Eladó iroda

X. kerület

779 M Ft
1760 m²
1716 m2
Eladó téglalakás
Eladó téglalakás

VIII. kerület, Józsefváros, Balassa utca 7

137.33 M Ft
3 szoba
72 m2
Eladó téglalakás
Eladó téglalakás

VI. kerület, Külső Terézváros, Szófia utca

112.9 M Ft
4 szoba
103 m2
Eladó iroda
Eladó iroda

X. kerület

190 M Ft
521 m2
Eladó iroda
Eladó iroda

X. kerület

190 M Ft
521 m2
Eladó téglalakás
Eladó téglalakás

VII. kerület, Belső Erzsébetváros, Erzsébet körút

89.9 M Ft
1 + 1 szoba
71 m2
Eladó téglalakás
Eladó téglalakás

XI. kerület, Gellérthegy, Gyula utca

130 M Ft
2 szoba
56 m2
Eladó téglalakás
Eladó téglalakás

V. kerület, Belváros, Belgrád rakpart

78 M Ft
1 + 1 szoba
42 m2

Falusi CSOK ingatlanok

Eladó családi ház
Eladó családi ház

Töttös, Rákóczi utca

55.9 M Ft
4 szoba
129 m2
Eladó családi ház
Eladó családi ház

Szakmár

12.9 M Ft
3 + 1 szoba
90 m2
Eladó családi ház
Eladó családi ház

Újlengyel

110 M Ft
4 szoba
121 m2
Eladó családi ház
Eladó családi ház

Nyékládháza, Mátyás király utca

34.9 M Ft
2 szoba
88 m2
Eladó családi ház
Eladó családi ház

Tabajd

79 M Ft
4 szoba
82 m2
Eladó családi ház
Eladó családi ház

Gönyű, Kossuth Lajos utca

77.9 M Ft
3 szoba
80 m2
Eladó családi ház
Eladó családi ház

Balatonszárszó

178 M Ft
6 szoba
260 m2
Eladó családi ház
Eladó családi ház

Dombrád

8 M Ft
2 szoba
85 m2