BAM Living

Eladó iroda
Budapest, X. kerület, Óhegy

+ 13 kép 1/16
779 000 000 Ft779 M Ft 453 963 Ft/m2
1716 m2
építés éve:1950

Részletes adatok

Fűtés: Egyéb
Emelet: földszint
Extrák: Lift
Energetikai besorolás: Nem adta meg a hirdető

Az OTP Bank lakáshitel ajánlataFizetett hirdetés

+36 70 465
Csuha Attila
referens

Érdekel az OTP Bank kedvezményes lakáshitel ajánlata? *

* A kérdésre „Igen” válasz bejelölése esetén, az „Üzenet küldése” gombra kattintva kijelentem, hogy az OTP Bank Nyrt. Adatkezelési tájékoztatójának tartalmát megismertem és tudomásul vettem.

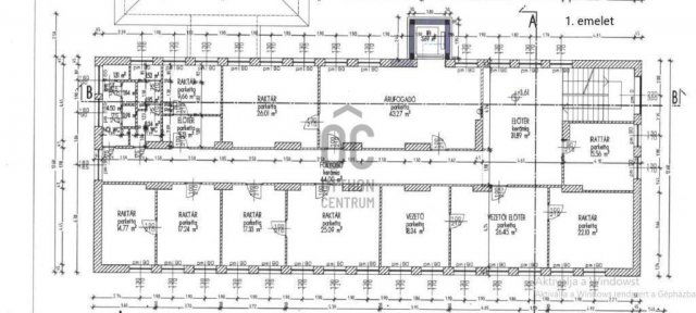
Eladó iroda leírása

A telek 1760 m2, melyen egy az 50-es években épült, a 90-es években teljesen felujitott, - 2005-ben az I. és II. emelet újra felújitva, energetikailag és a designt tekintve átalakitva - 2 emeletes ingatlan taláható, alapterülete 512 m2, kb. 20-25 irodahelyiséggel, mellette egy 2015-ben épitett 180 m2-es bemutatóterem, üzlet van.
A két épület össze van kötve egymással.

Az összes terület: 1716 m2. Az ingatlannak 2 bejárata van, elöl személy, hátul az udvarra teher és személygépkocsi bejárat, a főépületbe pedig személy és árufogadó bejárat.

Kiváló elhelyezkedés, közlekedési kapcsolatok, a szomszédságban számos bevásárlási lehetőség, a KÖKI termináltól 1 km, Gyömrői út /4-es út/ 500 m.

Az ingatlan cég tulajdona, tárgyi adómentes, az ár tehát ÁFA nélküli.

Jelenleg 20 db parkolóhely van az udvaron. Az épülethez egy kb. 50 m2-es LÉGO pince is tartozik. Fa nyilászárók, zsindelyes tető.
A főépület minden emeletén és a bemutatóteremben is konyha, mosdó valamint összesen 2 zuhanyzó áll rendelkezésre.

Gázkazános fűtésű, kültéri folyadékhűtéses klima által kiszolgált minden helyiség.
Egy 2014-ben létesitett 10 személyes, 800 kg teherbirású lift tartozik még a főépülethez.
Az ingatlan minden engedéllyel rendelkező tűzjelző- és riasztó rendszerrel van felszerelve.

Kiválóan hasznositható irodaházként, cég telephelyként, munkásszállóként és egyéb intézménynek is.

További információért kérem keressen!

779000000 Ft
Csuha Attila +36704545076
Email: csuha.attila@oc.hu
Várom megtisztelő hívását a hét bármely napján!

Referencia szám: UZ018240-ZE

Hirdetés feltöltve: 2025. 11. 09. Utoljára módosítva: 2026. 01. 13.

Irodák ára Budapesten

Ebből az összehasonlításból megtudhatod, hogyan viszonyul a lakás ára a környékbeli irodák átlagos árához. Ez nem azt jelenti, hogy ennyivel olcsóbb vagy drágább, mint amennyit a lakás ér, hanem hogy ennyivel tér el a környékbeli átlagtól.

Ennek a m² ára
X. kerület m² ár
Budapest m² ár
454 e Ft
437 e Ft -4%
1010 e Ft 55%
Ennek az ára
X. kerület átlagár
Budapest átlagár
779 M Ft m Ft
395.4 m Ft -97%
255.3 m Ft -205%

Az ingatlan elhelyezkedése

Cím: Budapest, X. kerület, Óhegy

Eladó ingatlanok a környékről

Eladó téglalakás
Eladó téglalakás

II. kerület

110 M Ft
2 szoba
56 m2
Eladó téglalakás
Eladó téglalakás

V. kerület, Belváros, Petőfi Sándor utca

134 M Ft
2 szoba
59 m2
Eladó iroda
Eladó iroda

X. kerület, Újhegy, Újhegyi út

900 M Ft
2420 m2
Eladó téglalakás
Eladó téglalakás

XIV. kerület, Kiszugló, Kövér Lajos utca

168 M Ft
3 + 1 szoba
84 m2
Eladó téglalakás
Eladó téglalakás

III. kerület, Óbuda, Szomolnok utca

89.9 M Ft
2 + 2 szoba
96 m2
Eladó téglalakás
Eladó téglalakás

V. kerület, Belváros, Belgrád rakpart

78 M Ft
1 + 1 szoba
42 m2
Eladó téglalakás
Eladó téglalakás

VII. kerület

77.99 M Ft
4 szoba
58 m2
Eladó családi ház
Eladó családi ház

XIV. kerület

499.9 M Ft
9 szoba
440 m2
Eladó családi ház
Eladó családi ház

XX. kerület

84.5 M Ft
3 szoba
72 m2
Eladó sorház
Eladó sorház

III. kerület, Táborhegy

126.9 M Ft
3 szoba
70 m2
Eladó téglalakás
Eladó téglalakás

VI. kerület, Külső Terézváros, Szív utca

119.5 M Ft
3 szoba
94 m2
Eladó téglalakás
Eladó téglalakás

XIII. kerület

69.5 M Ft
2 szoba
47 m2
Eladó téglalakás
Eladó téglalakás

I. kerület

135 M Ft
2 + 1 szoba
83 m2
Eladó téglalakás
Eladó téglalakás

V. kerület

139.563 M Ft
1 + 1 szoba
58 m2
Eladó téglalakás
Eladó téglalakás

I. kerület, Krisztinaváros, Feszty Árpád utca

78.99 M Ft
1 szoba
28 m2
Eladó téglalakás
Eladó téglalakás

XXI. kerület, Gyártelep, II.Rákóczi Ferenc utca 107-115

79.5 M Ft
3 szoba
67 m2
Eladó panellakás
Eladó panellakás

IV. kerület

67.9 M Ft
3 szoba
56 m2
Eladó iroda
Eladó iroda

X. kerület, Felsőrákos

380 M Ft
1042 m2
Eladó téglalakás
Eladó téglalakás

XI. kerület, Gellérthegy, Gombócz Zoltán utca

142 M Ft
2 + 1 szoba
71 m2
Eladó téglalakás
Eladó téglalakás

XII. kerület, Krisztinaváros, Márvány utca

187.9 M Ft
4 szoba
94 m2
Eladó ipari ingatlan
Eladó ipari ingatlan

XIII. kerület

450 M Ft
544 m2
Eladó családi ház
Eladó családi ház

XVI. kerület

229 M Ft
5 szoba
251 m2
Eladó téglalakás
Eladó téglalakás

VI. kerület

65 M Ft
2 szoba
44 m2
Eladó téglalakás
Eladó téglalakás

VI. kerület

109.8 M Ft
3 szoba
71 m2

Falusi CSOK ingatlanok

Eladó családi ház
Eladó családi ház

Demecser

30 M Ft
3 szoba
130 m2
Eladó családi ház
Eladó családi ház

Kocsola

7.5 M Ft
2 + 1 szoba
75 m2
Eladó családi ház
Eladó családi ház

Simontornya

48.9 M Ft
4 szoba
134 m2
Eladó családi ház
Eladó családi ház

Borsodnádasd

28 M Ft
6 szoba
275 m2
Eladó családi ház
Eladó családi ház

Tiszaszőlős

27 M Ft
1 szoba
30 m2
Eladó családi ház
Eladó családi ház

Biharkeresztes, Táncsics utca

55 M Ft
5 szoba
110 m2
Eladó családi ház
Eladó családi ház

Tóalmás

47.5 M Ft
5 szoba
90 m2
Eladó családi ház
Eladó családi ház

Csikóstőttős, Szabadság utca 166.

5.15 M Ft
1 + 1 szoba
88 m2