Astora Márvány8

Eladó téglalakás
Budapest, VI. kerület, Külső Terézváros, Rózsa utca 82, 3. emelet

+ 2 kép 1/5
85 920 000 Ft85.92 M Ft 1 790 000 Ft/m2
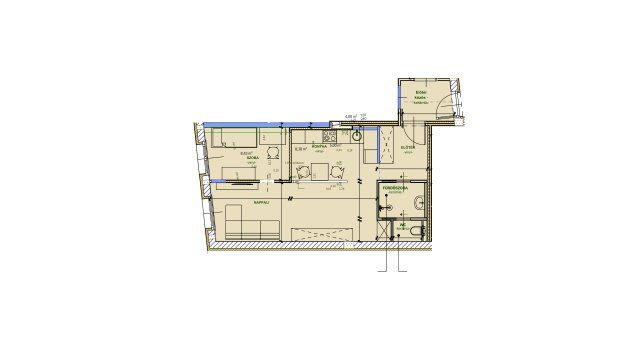
2 szoba
48 m²
3. emelet

Részletes adatok

Fűtés: Egyéb
Emelet: 3. emelet
Energetikai besorolás: A+

Az OTP Bank lakáshitel ajánlataFizetett hirdetés

+36 70 433
Pintácsi Nóra

Érdekel az OTP Bank kedvezményes lakáshitel ajánlata? *

* A kérdésre „Igen” válasz bejelölése esetén, az „Üzenet küldése” gombra kattintva kijelentem, hogy az OTP Bank Nyrt. Adatkezelési tájékoztatójának tartalmát megismertem és tudomásul vettem.

Eladó téglalakás leírása

Közvetlenül a beruházótól eladó Budapest VI. kerületében, az Andrássy út közvetlen közelében, a Rózsa utcában.

A beruházás egy klasszikus belvárosi társasház szintráépítésével valósult meg. A projektben még elérhető ingatlanok a 3. emeleten találhatók, keleti tájolásúak, utcára néznek, világos és jól élhető terekkel. A lakások amerikai konyhás nappalival és külön hálószobával rendelkeznek. A helyiségeket elegáns, falba süllyesztett tolóajtók választják el, így a tér egyszerre nyitott és jól szeparálható. A korszerű hőszivattyús rendszerrel működő padlófűtés és mennyezeti hűtés-fűtés egyenletes hőkomfortot biztosítanak, valamint elektromos redőnyök biztosítják a modern műszaki színvonalat.

A vételár tartalmazza a szanitereket és szerelvényeket. Igény esetén, felár ellenében vállaljuk a konyhabútor egyedi tervezését és kivitelezését is.

A projektben egy berendezett bemutatólakás segít elképzelni az ingatlanokban rejlő lehetőségeket. Áprilisban használatba vételi, májusban pedig külön albetéttel befejeződik a beruházás.

Csendes utcában, mégis kiváló lokációval, minden elérhető távolságban, a közelben üzletek, éttermek és gyógyszertár.

Hirdetés feltöltve: 2026. 03. 24. Utoljára módosítva: 2026. 03. 24.

2 szobás téglalakások ára Budapesten

Ebből az összehasonlításból megtudhatod, hogyan viszonyul a lakás ára a környékbeli téglalakások átlagos árához. Ez nem azt jelenti, hogy ennyivel olcsóbb vagy drágább, mint amennyit a lakás ér, hanem hogy ennyivel tér el a környékbeli átlagtól.

Ennek a m² ára
Külső Terézváros m² ár
VI. kerület m² ár
Budapest m² ár
1790 e Ft
1791 e Ft 0%
1882 e Ft 5%
1693 e Ft -6%
Ennek az ára
Külső Terézváros átlagár
VI. kerület átlagár
Budapest átlagár
85.92 M Ft m Ft
135.1 m Ft 36%
118.2 m Ft 27%
90.2 m Ft 5%

Az ingatlan elhelyezkedése

Cím: Budapest, VI. kerület, Külső Terézváros, Rózsa utca 82, 3. emelet

Eladó ingatlanok a környékről

VI. kerület
Eladó téglalakás

Budapest, VI. kerület

125.724 M Ft
3 szoba
77 m²
XX. kerület
Eladó családi ház

Budapest, XX. kerület

89.9 M Ft
4 szoba
114 m²
XV. kerület
Eladó családi ház

Budapest, XV. kerület

81.9 M Ft
3 szoba
90 m²
VI. kerület
Eladó téglalakás

Budapest, VI. kerület

154.9 M Ft
4 szoba
128 m²
VI. kerület
Eladó téglalakás

Budapest, VI. kerület

315 M Ft
4 szoba
143 m²
XVII. kerület
Eladó családi ház

Budapest, XVII. kerület

179 M Ft
5 szoba
150 m²
VIII. kerület, Palotanegyed
Eladó téglalakás

Budapest, VIII. kerület

74.9 M Ft
3 szoba
28 m²
III. kerület, Csillaghegy
Eladó családi ház

Budapest, III. kerület

128.8 M Ft
4 szoba
120 m²
XVIII. kerület, Liptáktelep
Eladó családi ház

Budapest, XVIII. kerület

105 M Ft
2 szoba
90 m²
VI. kerület
Eladó téglalakás

Budapest, VI. kerület

115.385 M Ft
2 szoba
73 m²
VIII. kerület
Eladó téglalakás

Budapest, VIII. kerület

109.9 M Ft
2 + 1 szoba
64 m²
VI. kerület
Eladó téglalakás

Budapest, VI. kerület

119.9 M Ft
4 szoba
75 m²
VI. kerület, Belső Terézváros, Bajcsy-Zsilinszky út
Eladó téglalakás

Budapest, VI. kerület

149 M Ft
3 szoba
98 m²
XVIII. kerület, Lónyaytelep
Eladó téglalakás

Budapest, XVIII. kerület

69 M Ft
3 szoba
63 m²
XIII. kerület
Eladó panellakás

Budapest, XIII. kerület

79.8 M Ft
1 + 2 szoba
58 m²
VI. kerület, Külső Terézváros, Szondi-Bajnok utca sarkán eladó lakás
Eladó téglalakás

Budapest, VI. kerület

99 M Ft
2 + 1 szoba
84 m²
VI. kerület
Eladó téglalakás

Budapest, VI. kerület

139 M Ft
6 szoba
130 m²
VI. kerület, Külső Terézváros, Podmaniczky utca
Eladó téglalakás

Budapest, VI. kerület

260 M Ft
3 szoba
117 m²
VI. kerület, Belső Terézváros, Teréz körúton
Eladó téglalakás

Budapest, VI. kerület

150 M Ft
3 szoba
105 m²
VI. kerület, Külső Terézváros, Szinyei Merse utca
Eladó téglalakás

Budapest, VI. kerület

114.9 M Ft
3 szoba
93 m²
VI. kerület, Belső Terézváros, Teréz körút
Eladó téglalakás

Budapest, VI. kerület

51 M Ft
1 szoba
49 m²
XIV. kerület, Herminamező
Eladó iroda

Budapest, XIV. kerület

480 M Ft
7 szoba
250 m²
XVIII. kerület, Szent Imre kertváros
Eladó családi ház

Budapest, XVIII. kerület

99.9 M Ft
2 szoba
80 m²
XVIII. kerület, Szemeretelep
Eladó ikerház

Budapest, XVIII. kerület

84 M Ft
5 szoba
103 m²

Falusi CSOK ingatlanok

Fülöpszállás
Eladó családi ház

Fülöpszállás

23.6 M Ft
3 szoba
115 m²
Kaposszerdahely, Rákóczi utca
Eladó családi ház

Kaposszerdahely

6.5 M Ft
1 szoba
32 m²
Herend
Eladó téglalakás

Herend

59.99 M Ft
3 szoba
69 m²
Palkonya
Eladó családi ház

Palkonya

129 M Ft
6 szoba
160 m²
Szigetcsép
Eladó családi ház

Szigetcsép

35 M Ft
3 szoba
92 m²
Balatonszemes
Eladó téglalakás

Balatonszemes

125.2 M Ft
2 szoba
50 m²
Emőd
Eladó családi ház

Emőd

34.99 M Ft
2 szoba
74 m²
Felsőmocsolád
Eladó családi ház

Felsőmocsolád

48 M Ft
4 szoba
150 m²