Astora Art House

Eladó iroda
Budapest, X. kerület, földszint

+ 17 kép 1/20
779 000 000 Ft779 M Ft 453 963 Ft/m2
1716 m²
földszint
építés éve:1950

Részletes adatok

Fűtés: Egyéb
Emelet: földszint
Extrák: Lift
Energetikai besorolás: Nem adta meg a hirdető

Az OTP Bank lakáshitel ajánlataFizetett hirdetés

+36 70 465
Bittera Viktória
Szi-We Otthona Kft

Érdekel az OTP Bank kedvezményes lakáshitel ajánlata? *

* A kérdésre „Igen” válasz bejelölése esetén, az „Üzenet küldése” gombra kattintva kijelentem, hogy az OTP Bank Nyrt. Adatkezelési tájékoztatójának tartalmát megismertem és tudomásul vettem.

Eladó iroda leírása

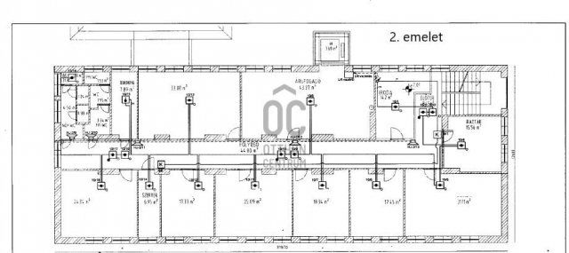
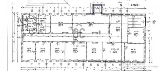
A telek 1760 m2, melyen egy az 50-es években épült, a 90-es években teljesen felujitott, - 2005-ben az I. és II. emelet újra felújitva, energetikailag és a designt tekintve átalakitva - 2 emeletes ingatlan taláható, alapterülete 512 m2, kb. 20-25 irodahelyiséggel, mellette egy 2015-ben épitett 180 m2-es bemutatóterem, üzlet van.
A két épület össze van kötve egymással.

Az összes terület: 1716 m2. Az ingatlannak 2 bejárata van, elöl személy, hátul az udvarra teher és személygépkocsi bejárat, a főépületbe pedig személy és árufogadó bejárat.

Kiváló elhelyezkedés, közlekedési kapcsolatok, a szomszédságban számos bevásárlási lehetőség, a KÖKI termináltól 1 km, Gyömrői út /4-es út/ 500 m.

Az ingatlan cég tulajdona, tárgyi adómentes, az ár tehát ÁFA nélküli.

Jelenleg 20 db parkolóhely van az udvaron. Az épülethez egy kb. 50 m2-es LÉGO pince is tartozik. Fa nyilászárók, zsindelyes tető.
A főépület minden emeletén és a bemutatóteremben is konyha, mosdó valamint összesen 2 zuhanyzó áll rendelkezésre.

Gázkazános fűtésű, kültéri folyadékhűtéses klima által kiszolgált minden helyiség.
Egy 2014-ben létesitett 10 személyes, 800 kg teherbirású lift tartozik még a főépülethez.
Az ingatlan minden engedéllyel rendelkező tűzjelző- és riasztó rendszerrel van felszerelve.

Kiválóan hasznositható irodaházként, cég telephelyként, munkásszállóként és egyéb intézménynek is.

Az energetikai tanúsítvány készítése folyamatban van, amint rendelkezésre áll, úgy azzal a hirdetés frissítésre kerül.

További információért kérem keressen!

Az energetikai tanúsítvány készítése folyamatban van, amint rendelkezésre áll, úgy azzal a hirdetés frissítésre kerül.

Az energetikai tanúsítvány készítése folyamatban van, amint rendelkezésre áll, úgy azzal a hirdetés frissítésre kerül.

Referencia szám: UZ018240-ZE

Hirdetés feltöltve: 2025. 09. 11. Utoljára módosítva: 2026. 05. 18.

Irodák ára Budapesten

Ebből az összehasonlításból megtudhatod, hogyan viszonyul a lakás ára a környékbeli irodák átlagos árához. Ez nem azt jelenti, hogy ennyivel olcsóbb vagy drágább, mint amennyit a lakás ér, hanem hogy ennyivel tér el a környékbeli átlagtól.

Ennek a m² ára
X. kerület m² ár
Budapest m² ár
454 e Ft
364 e Ft -25%
1066 e Ft 57%
Ennek az ára
X. kerület átlagár
Budapest átlagár
779 M Ft m Ft
468 m Ft -66%
236 m Ft -230%

Az ingatlan elhelyezkedése

Cím: Budapest, X. kerület, földszint

Eladó ingatlanok a környékről

XIV. kerület
Eladó téglalakás

Budapest, XIV. kerület

59 M Ft
2 szoba
41 m²
XIV. kerület
Eladó téglalakás

Budapest, XIV. kerület

38.9 M Ft
1 szoba
25 m²
X. kerület
Eladó iroda

Budapest, X. kerület

190 M Ft
521 m²
XVII. kerület
Eladó panellakás

Budapest, XVII. kerület

50 M Ft
3 szoba
58 m²
X. kerület
Eladó iroda

Budapest, X. kerület

190 M Ft
521 m²
XII. kerület
Eladó téglalakás

Budapest, XII. kerület

125 M Ft
2 + 1 szoba
74 m²
XXI. kerület
Eladó panellakás

Budapest, XXI. kerület

55 M Ft
1 + 1 szoba
46 m²
X. kerület
Eladó iroda

Budapest, X. kerület

330.75 M Ft
17 szoba
2283 m²
XIII. kerület
Eladó téglalakás

Budapest, XIII. kerület

74.85 M Ft
2 szoba
54 m²
X. kerület
Eladó iroda

Budapest, X. kerület

779 M Ft
1760 m²
1716 m²
VIII. kerület
Eladó téglalakás

Budapest, VIII. kerület

100 M Ft
2 + 1 szoba
68 m²
VII. kerület
Eladó üzlethelyiség

Budapest, VII. kerület

47.9 M Ft
2 szoba
79 m²
VIII. kerület
Eladó téglalakás

Budapest, VIII. kerület

80 M Ft
1 + 1 szoba
39 m²
X. kerület
Eladó iroda

Budapest, X. kerület

390 M Ft
1777 m²
III. kerület
Eladó panellakás

Budapest, III. kerület

69.5 M Ft
2 szoba
50 m²
X. kerület
Eladó téglalakás

Budapest, X. kerület

49.9 M Ft
1 szoba
45 m²
XVI. kerület
Eladó családi ház

Budapest, XVI. kerület

142 M Ft
6 szoba
266 m²
X. kerület
Eladó iroda

Budapest, X. kerület

69.9 M Ft
10 szoba
151 m²
X. kerület
Eladó iroda

Budapest, X. kerület

330.75 M Ft
2283 m²
XVII. kerület
Eladó panellakás

Budapest, XVII. kerület

79.5 M Ft
3 szoba
63 m²
X. kerület
Eladó iroda

Budapest, X. kerület

54.08 M Ft
3 szoba
106 m²
XIII. kerület
Eladó téglalakás

Budapest, XIII. kerület

42.9 M Ft
1 szoba
22 m²
XIII. kerület
Eladó téglalakás

Budapest, XIII. kerület

59.9 M Ft
1 + 1 szoba
35 m²
X. kerület
Eladó iroda

Budapest, X. kerület

900 M Ft
1722 m²
2420 m²

Falusi CSOK ingatlanok

Verpelét, Liget út 12
Eladó családi ház

Verpelét

44 M Ft
3 szoba
68 m²
Seregélyes
Eladó családi ház

Seregélyes

87 M Ft
4 szoba
96 m²
Bakonyszentlászló
Eladó családi ház

Bakonyszentlászló

48.5 M Ft
3 szoba
103 m²
Győrság
Eladó családi ház

Győrság

89.9 M Ft
4 szoba
92 m²
Kunszállás
Eladó családi ház

Kunszállás

65.9 M Ft
4 szoba
90 m²
Balatonszepezd
Eladó családi ház

Balatonszepezd

299 M Ft
5 szoba
220 m²
Rakamaz
Eladó családi ház

Rakamaz

31.9 M Ft
3 szoba
98 m²
Kemecse
Eladó családi ház

Kemecse

25 M Ft
4 szoba
93 m²