NapForrás 20 - Buda

Eladó családi ház
Kálmánháza

Figyelem!

Ez az ingatlan a 2019.07.01-től induló falusi CSOK által támogatott településen található

+ 17 kép 1/20
65 000 000 Ft65 M Ft 430 464 Ft/m2
3 + 1 szoba
151 m²
építés éve:1988

Részletes adatok

Telekméret: 1591 m2
Fűtés: Gázkazán
Komfort: Duplakomfortos
Energetikai besorolás: Nem adta meg a hirdető

Az OTP Bank lakáshitel ajánlataFizetett hirdetés

+36 20 468
Kissné Orosz Ildikó Krisztina
OTPIP Nyíregyháza Hunyadi u.

Érdekel az OTP Bank kedvezményes lakáshitel ajánlata? *

* A kérdésre „Igen” válasz bejelölése esetén, az „Üzenet küldése” gombra kattintva kijelentem, hogy az OTP Bank Nyrt. Adatkezelési tájékoztatójának tartalmát megismertem és tudomásul vettem.

Eladó családi ház leírása

Kiváló állapotú, duplakomfortos, napelemes családi ház eladó Kálmánházán - gazdálkodásra, vállalkozásra és nagycsaládosoknak is tökéletes választás!

Eladásra kínálom ezt a szigetelt, korszerű és rendkívül jól felszerelt családi házat, amely egyaránt ideális állandó lakhatásra, többgenerációs életformára, vagy akár gazdasági, vállalkozási célokra is.

A csendes, jól megközelíthető környéken található ingatlan nemcsak otthonként, hanem lehetőségként is megállja a helyét.

Főbb jellemzők:
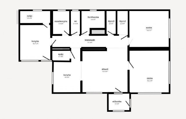
Telek mérete: 1591 nm szépen karbantartott, gondozott udvarral.
Lakóház: 151 nm szigetelt, jó állapotú.
Duplakomfortos kialakítás, 3 fürdőszoba, kényelmes belső elrendezés.
Fűtés: gázkazán és vegyestüzelésű kazán egyaránt rendelkezésre áll.
Napelemes rendszer -alacsony fenntartási költségek önfenntartó ház.
4 db hűtő-fűtő klímák.
Garázs és 60 nm-es, több helységes száraz pince.
Kerekes kút - öntözéshez, gazdasági használatra ideális.

Belső elrendezés:
Földszint: nappali, konyha, 2 szoba, fürdőszoba és külön mosókonyha. Lejárat a pincébe, illetve feljárat az emeletre.

Emelet: 2 különnyíló hálószoba, gardróbszoba, fürdőszoba.

Gazdálkodásra és vállalkozásra alkalmas melléképületek:
Hűtőház - kiváló kereskedelmi vagy háztáji célokra, Füstölő - házi húsfeldolgozáshoz.

Több melléképület, melyek állattartásra alkalmas állapotban.

Óriási, könnyűszerkezetes tárolócsarnok - akár traktor vagy nagyobb mezőgazdasági gépek elhelyezésére is megfelelő.

Kinek ajánlom?
Olyan vevőnek, aki a kényelmet, a praktikumot és a gazdasági lehetőségeket egyszerre keresi. Nagycsaládosoknak vagy több generáció együttélésére. Gazdálkodóknak, vállalkozóknak. Akik egy minden szempontból jól felszerelt, önellátásra is alkalmas otthont keresnek.

Ez az ingatlan többet nyújt, mint egy egyszerű otthon - valódi érték, hosszú távú lehetőségekkel!
Hívjon bizalommal vagy írjon üzenetet a megtekintéshez!
OTP Ingatlanpont - megbízhat bennünk.

OTP Banki hátterünknek köszönhetően finanszírozási igényekben (pl. Otthon Start Hitelprogram , Babaváró, Falusi CSOK, CSOK Plusz, Lakáshitel, Személyi kölcsön stb.), illetve biztosítások tekintetében is díjmentesen, soron kívüli ügyintézéssel segítem ügyfeleim! Referenciaszám: M308022

Az energetikai tanúsítvány készítése folyamatban van, amint rendelkezésre áll, úgy azzal a hirdetés frissítésre kerül.

Hirdetés feltöltve: 2026. 04. 10. Utoljára módosítva: 2026. 05. 20.

Az ingatlan elhelyezkedése

Cím: Kálmánháza

Eladó családi házak a környékről

Nyíregyháza
Eladó családi ház

Nyíregyháza

90 M Ft
3 + 1 szoba
100 m²
Kálmánháza, Petőfi Sándor utca
Eladó családi ház

Kálmánháza

29.9 M Ft
2 szoba
80 m²
Nyíregyháza
Eladó családi ház

Nyíregyháza

250 M Ft
4 szoba
440 m²
Nyíregyháza
Eladó családi ház

Nyíregyháza

65 M Ft
3 szoba
135 m²
Nyíregyháza
Eladó családi ház

Nyíregyháza

63.9 M Ft
2 + 1 szoba
100 m²
Nyíregyháza
Eladó családi ház

Nyíregyháza

190 M Ft
4 szoba
230 m²
Napkor
Eladó családi ház

Napkor

115 M Ft
5 szoba
292 m²
Nyíregyháza
Eladó családi ház

Nyíregyháza

100 M Ft
4 szoba
220 m²
Kálmánháza
Eladó családi ház

Kálmánháza

65 M Ft
3 + 1 szoba
151 m²
Kálmánháza
Eladó családi ház

Kálmánháza

83 M Ft
4 + 1 szoba
225 m²
Nyíregyháza
Eladó családi ház

Nyíregyháza

60 M Ft
3 szoba
100 m²
Nyíregyháza
Eladó családi ház

Nyíregyháza

240 M Ft
3 szoba
204 m²
Nyíregyháza
Eladó családi ház

Nyíregyháza

98 M Ft
4 szoba
125 m²
Kálmánháza
Eladó családi ház

Kálmánháza

79.9 M Ft
5 szoba
137 m²
Nyíregyháza
Eladó családi ház

Nyíregyháza

150 M Ft
2 szoba
120 m²
Kálmánháza
Eladó családi ház

Kálmánháza

65 M Ft
3 + 1 szoba
151 m²
Kálmánháza
Eladó családi ház

Kálmánháza

25.99 M Ft
2 szoba
63 m²
Kálmánháza
Eladó családi ház

Kálmánháza

79.9 M Ft
5 szoba
137 m²
Kálmánháza
Eladó családi ház

Kálmánháza

79.9 M Ft
5 szoba
137 m²
Kálmánháza
Eladó családi ház

Kálmánháza

83 M Ft
4 + 1 szoba
225 m²
Kálmánháza
Eladó családi ház

Kálmánháza

30 M Ft
3 szoba
114 m²
Kálmánháza
Eladó családi ház

Kálmánháza

65 M Ft
3 + 1 szoba
151 m²
Kálmánháza
Eladó családi ház

Kálmánháza

79.9 M Ft
5 szoba
137 m²
Nyíregyháza
Eladó családi ház

Nyíregyháza

89.9 M Ft
5 szoba
274 m²

Falusi CSOK ingatlanok

Érsekcsanád
Eladó családi ház

Érsekcsanád

69.9 M Ft
4 + 2 szoba
206 m²
Balinka, Petőfi S. utca 27
Eladó családi ház

Balinka

12.65 M Ft
1 + 2 szoba
79 m²
Rakamaz
Eladó családi ház

Rakamaz

86.9 M Ft
5 szoba
280 m²
Verseg
Eladó családi ház

Verseg

69.9 M Ft
4 szoba
0 m²
Szabadbattyán
Eladó családi ház

Szabadbattyán

79.6 M Ft
4 szoba
101 m²
Igal
Eladó családi ház

Igal

45.9 M Ft
5 szoba
280 m²
Hegyeshalom, Margaréta utca 12
Eladó téglalakás

Hegyeshalom

50.09 M Ft
2 szoba
43 m²
Lovasberény
Eladó sorház

Lovasberény

78 M Ft
4 + 1 szoba
124 m²

Falusi CSOK ingatlanok

Tihany
Eladó családi ház

Tihany

385 M Ft
5 szoba
200 m²
Törtel
Eladó családi ház

Törtel

31 M Ft
3 szoba
66 m²
Arló, Mátyás Király utca
Eladó családi ház

Arló

14.99 M Ft
2 szoba
66 m²
Ceglédbercel
Eladó családi ház

Ceglédbercel

89 M Ft
4 szoba
135 m²
Villány
Eladó családi ház

Villány

31 M Ft
1 szoba
35 m²
Halimba
Eladó családi ház

Halimba

59.9 M Ft
6 szoba
182 m²
Tápióság
Eladó családi ház

Tápióság

30 M Ft
3 szoba
105 m²
Ceglédbercel
Eladó családi ház

Ceglédbercel

67 M Ft
3 szoba
97 m²