Astora Olive Club House

Eladó családi ház
Kálmánháza

Figyelem!

Ez az ingatlan a 2019.07.01-től induló falusi CSOK által támogatott településen található

+ 17 kép 1/20
72 000 000 Ft72 M Ft 476 821 Ft/m2
3 + 1 szoba
151 m2
építés éve:1988

Részletes adatok

Telekméret: 1591 m2
Fűtés: Gázkazán
Energetikai besorolás: Nem adta meg a hirdető

Az OTP Bank lakáshitel ajánlataFizetett hirdetés

+36 20 940
Lipcseiné Kozák Judit
OTPIP Nyíregyháza Hunyadi u.

Érdekel az OTP Bank kedvezményes lakáshitel ajánlata? *

* A kérdésre „Igen” válasz bejelölése esetén, az „Üzenet küldése” gombra kattintva kijelentem, hogy az OTP Bank Nyrt. Adatkezelési tájékoztatójának tartalmát megismertem és tudomásul vettem.

Eladó családi ház leírása

Kiváló állapotú, duplakomfortos, napelemes családi ház eladó Kálmánházán - gazdálkodásra, vállalkozásra és nagycsaládosoknak is tökéletes választás!

Eladásra kínálom ezt a szigetelt, korszerű és rendkívül jól felszerelt családi házat, amely egyaránt ideális állandó lakhatásra, többgenerációs életformára, vagy akár gazdasági, vállalkozási célokra is.

A csendes, jól megközelíthető környéken található ingatlan nemcsak otthonként, hanem lehetőségként is megállja a helyét.

Főbb jellemzők:
Telek mérete: 1591 nm szépen karbantartott, gondozott udvarral.
Lakóház: 151 nm szigetelt, jó állapotú.
Duplakomfortos kialakítás, 3 fürdőszoba, kényelmes belső elrendezés.
Fűtés: gázkazán és vegyestüzelésű kazán egyaránt rendelkezésre áll.
Napelemes rendszer -alacsony fenntartási költségek önfenntartó ház.
4 db hűtő-fűtő klímák.
Garázs és 60 nm-es, több helységes száraz pince.
Kerekes kút - öntözéshez, gazdasági használatra ideális.

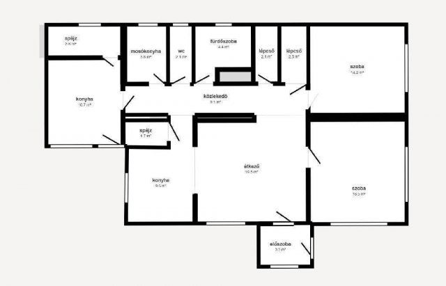
Belső elrendezés:
Földszint: nappali, konyha, 2 szoba, fürdőszoba és külön mosókonyha. Lejárat a pincébe, illetve feljárat az emeletre.

Emelet: 2 különnyíló hálószoba, gardróbszoba, fürdőszoba.

Gazdálkodásra és vállalkozásra alkalmas melléképületek:
Hűtőház - kiváló kereskedelmi vagy háztáji célokra, Füstölő - házi húsfeldolgozáshoz.

Több melléképület, melyek állattartásra alkalmas állapotban.

Óriási, könnyűszerkezetes tárolócsarnok - akár traktor vagy nagyobb mezőgazdasági gépek elhelyezésére is megfelelő.

Kinek ajánlom?
Olyan vevőnek, aki a kényelmet, a praktikumot és a gazdasági lehetőségeket egyszerre keresi. Nagycsaládosoknak vagy több generáció együttélésére. Gazdálkodóknak, vállalkozóknak. Akik egy minden szempontból jól felszerelt, önellátásra is alkalmas otthont keresnek.

Ez az ingatlan többet nyújt, mint egy egyszerű otthon - valódi érték, hosszú távú lehetőségekkel!
Hívjon bizalommal vagy írjon üzenetet a megtekintéshez!
OTP Ingatlanpont - megbízhat bennünk.

OTP Banki hátterünknek köszönhetően finanszírozási igényekben (pl. Babaváró, Falusi CSOK, CSOK Plusz, Lakáshitel, Személyi kölcsön stb.), illetve biztosítások tekintetében is díjmentesen, soron kívüli ügyintézéssel segítem ügyfeleim! Referenciaszám: M308022

Hirdetés feltöltve: 2025. 12. 11. Utoljára módosítva: 2025. 12. 11.

Az ingatlan elhelyezkedése

Cím: Kálmánháza

Eladó családi házak a környékről

Eladó családi ház
Eladó családi ház

Nyíregyháza

75.9 M Ft
6 szoba
240 m2
Eladó családi ház
Eladó családi ház

Nyíregyháza

250 M Ft
4 szoba
440 m2
Eladó családi ház
Eladó családi ház

Nyíregyháza

90 M Ft
3 szoba
170 m2
Eladó családi ház
Eladó családi ház

Kálmánháza

42.5 M Ft
3 szoba
114 m2
Eladó családi ház
Eladó családi ház

Nyíregyháza

190 M Ft
4 szoba
230 m2
Eladó családi ház
Eladó családi ház

Kálmánháza

72 M Ft
3 + 1 szoba
151 m2
Eladó családi ház
Eladó családi ház

Nyíregyháza

85 M Ft
3 szoba
110 m2
Eladó családi ház
Eladó családi ház

Kálmánháza, Kossuth utca

72 M Ft
3 + 1 szoba
151 m2
Eladó családi ház
Eladó családi ház

Nyíregyháza

44.9 M Ft
1 szoba
51 m2
Eladó családi ház
Eladó családi ház

Kálmánháza

72 M Ft
3 + 1 szoba
151 m2
Eladó családi ház
Eladó családi ház

Kálmánháza

72 M Ft
3 + 1 szoba
151 m2
Eladó családi ház
Eladó családi ház

Nyíregyháza

92 M Ft
3 szoba
161 m2
Eladó családi ház
Eladó családi ház

Kálmánháza

79.9 M Ft
5 szoba
137 m2
Eladó családi ház
Eladó családi ház

Nyírtelek

10.9 M Ft
2 szoba
55 m2
Eladó családi ház
Eladó családi ház

Nyíregyháza, Oros, Oros

55 M Ft
4 szoba
100 m2
Eladó családi ház
Eladó családi ház

Kálmánháza

42.5 M Ft
3 szoba
114 m2
Eladó családi ház
Eladó családi ház

Napkor

115 M Ft
5 szoba
292 m2
Eladó családi ház
Eladó családi ház

Nyíregyháza

240 M Ft
3 szoba
204 m2
Eladó családi ház
Eladó családi ház

Kálmánháza

72 M Ft
3 + 1 szoba
151 m2
Eladó családi ház
Eladó családi ház

Nyíregyháza

92.8 M Ft
5 szoba
240 m2
Eladó családi ház
Eladó családi ház

Kálmánháza

79.9 M Ft
5 szoba
137 m2
Eladó családi ház
Eladó családi ház

Kálmánháza

72 M Ft
3 + 1 szoba
151 m2
Eladó családi ház
Eladó családi ház

Kálmánháza

79.9 M Ft
5 szoba
137 m2
Eladó családi ház
Eladó családi ház

Kálmánháza

72 M Ft
3 + 1 szoba
151 m2

Falusi CSOK ingatlanok

Eladó családi ház
Eladó családi ház

Farmos

38.9 M Ft
2 szoba
46 m2
Eladó családi ház
Eladó családi ház

Kenyeri

21.8 M Ft
2 szoba
75 m2
Eladó családi ház
Eladó családi ház

Kondorfa, Alvég utca

34.9 M Ft
1 + 1 szoba
67 m2
Eladó családi ház
Eladó családi ház

Nyáregyháza

124.9 M Ft
7 szoba
267 m2
Eladó családi ház
Eladó családi ház

Városlőd

51.9 M Ft
1 + 2 szoba
53 m2
Eladó családi ház
Eladó családi ház

Ősi

64.9 M Ft
4 szoba
181 m2
Eladó családi ház
Eladó családi ház

Balatonfenyves

199 M Ft
5 szoba
210 m2
Eladó családi ház
Eladó családi ház

Somogygeszti

38.6 M Ft
3 + 1 szoba
98 m2

Falusi CSOK ingatlanok

Eladó családi ház
Eladó családi ház

Olaszfa

70.38 M Ft
3 szoba
139 m2
Eladó családi ház
Eladó családi ház

Szigetcsép

110 M Ft
3 szoba
137 m2
Eladó téglalakás
Eladó téglalakás

Újlengyel

72.99 M Ft
2 szoba
68 m2
Eladó családi ház
Eladó családi ház

Mezőzombor

19.99 M Ft
3 szoba
91 m2
Eladó családi ház
Eladó családi ház

Szentmártonkáta

55 M Ft
3 szoba
86 m2
Eladó családi ház
Eladó családi ház

Mezőfalva

39 M Ft
3 szoba
77 m2
Eladó családi ház
Eladó családi ház

Enese

82.9 M Ft
4 szoba
90 m2
Eladó téglalakás
Eladó téglalakás

Nagyharsány

22.5 M Ft
3 szoba
71 m2