River Life

Eladó családi ház
Győrság

Figyelem!

Ez az ingatlan a 2019.07.01-től induló falusi CSOK által támogatott településen található

+ 17 kép 1/20
457 000 000 Ft457 M Ft 409 865 Ft/m2
12 szoba
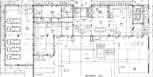
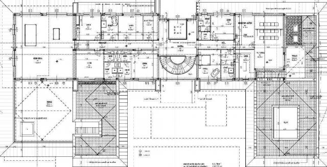
1115 m²
építés éve:2025

Részletes adatok

Telekméret: 8392 m2
Fűtés: Egyéb
Energetikai besorolás: Nem adta meg a hirdető

Az OTP Bank lakáshitel ajánlataFizetett hirdetés

+36 30 650
Vörös Brigitta
referens

Érdekel az OTP Bank kedvezményes lakáshitel ajánlata? *

* A kérdésre „Igen” válasz bejelölése esetén, az „Üzenet küldése” gombra kattintva kijelentem, hogy az OTP Bank Nyrt. Adatkezelési tájékoztatójának tartalmát megismertem és tudomásul vettem.

Eladó családi ház leírása

Győrság lenyűgöző panorámás birtoka várja új tulajdonosát!
Ez az exkluzív ingatlan 8400 négyzetméteren terül el, és páratlan lehetőségeket kínál mind privát, mind üzleti célú felhasználásra. Az 1115 négyzetméteres épület modern infrastruktúrával és félkész állapotban várja, hogy álmai otthonává vagy sikeres vállalkozás alapjává váljon.
A telek mérete és elhelyezkedése ideális befektetőknek, akik társasházak, apartmanok vagy egyéb szálló kialakítását tervezik. Az épület már rendelkezik korszerű tetőszigeteléssel és antracit színű, acél nyílászárókkal, amelyek nemcsak esztétikusak, de kiváló szigetelést is biztosítanak. A belső munkák végső simításai már az új tulajdonos ízlésére szabhatóak.
A vízellátás Pannonhalmáról érkezik, a villamos hálózat korszerűsítve lett, így az ingatlan minden feltételt biztosít a komfortos és zavartalan élethez.
Ez a helyszín nemcsak otthon, de életstílus is: csendes környezet, lélegzetelállító táj, és határtalan lehetőségek egy olyan birtokon, amely egyszerre nyújt intimitást és végtelen kreatív szabadságot.
További információért és megtekintésért forduljon hozzánk bizalommal.
Referenciaszám: M301714

Hirdetés feltöltve: 2026. 04. 19.

Az ingatlan elhelyezkedése

Cím: Győrság

Eladó családi házak a környékről

Fertőszéplak
Eladó családi ház

Fertőszéplak

92 M Ft
5 szoba
95 m²
Győrság
Eladó családi ház

Győrság

99 M Ft
5 szoba
196 m²
Lébény
Eladó családi ház

Lébény

62.99 M Ft
4 szoba
90 m²
Nagycenk
Eladó családi ház

Nagycenk

64.8 M Ft
3 + 1 szoba
76 m²
Győr
Eladó családi ház

Győr

278 M Ft
6 szoba
339 m²
Harka
Eladó családi ház

Harka

60.9 M Ft
3 + 1 szoba
67 m²
Győrság
Eladó családi ház

Győrság

89 M Ft
5 szoba
90 m²
Sopron
Eladó családi ház

Sopron

189.9 M Ft
8 szoba
280 m²
Harka
Eladó családi ház

Harka

86.7 M Ft
3 szoba
102 m²
Győrság
Eladó családi ház

Győrság

93.45 M Ft
4 szoba
96 m²
Sopron
Eladó családi ház

Sopron

130 M Ft
3 szoba
140 m²
Győrság
Eladó családi ház

Győrság

89.9 M Ft
4 szoba
92 m²
Dunakiliti
Eladó családi ház

Dunakiliti

127.012 M Ft
3 + 1 szoba
140 m²
Győr
Eladó családi ház

Győr

325 M Ft
6 szoba
365 m²
Győrság
Eladó családi ház

Győrság

475 M Ft
13 szoba
1115 m²
Nagycenk
Eladó családi ház

Nagycenk

80.6 M Ft
4 szoba
106 m²
Győrság
Eladó családi ház

Győrság

89.9 M Ft
4 szoba
92 m²
Győrság
Eladó családi ház

Győrság

70.1 M Ft
5 szoba
116 m²
Győrság
Eladó családi ház

Győrság

79.9 M Ft
4 szoba
92 m²
Győrzámoly
Eladó családi ház

Győrzámoly

199 M Ft
6 szoba
230 m²
Győrság
Eladó családi ház

Győrság

99 M Ft
4 szoba
196 m²
Sopron
Eladó családi ház

Sopron

170 M Ft
4 szoba
122 m²
Zsira
Eladó családi ház

Zsira

110.9 M Ft
8 szoba
200 m²
Győrság
Eladó családi ház

Győrság

89.9 M Ft
4 szoba
92 m²

Falusi CSOK ingatlanok

Gelse
Eladó családi ház

Gelse

49.9 M Ft
3 szoba
97 m²
Recsk
Eladó családi ház

Recsk

40 M Ft
3 + 1 szoba
110 m²
Badacsonytördemic
Eladó családi ház

Badacsonytördemic

90 M Ft
3 szoba
130 m²
Tápiógyörgye
Eladó családi ház

Tápiógyörgye

34.9 M Ft
3 szoba
74 m²
Balatonszemes
Eladó téglalakás

Balatonszemes

119.9 M Ft
2 szoba
81 m²
Szentmártonkáta
Eladó családi ház

Szentmártonkáta

95 M Ft
5 + 1 szoba
152 m²
Földeák, Béke utca
Eladó családi ház

Földeák

59 M Ft
7 szoba
357 m²
Bőny
Eladó családi ház

Bőny

69.9 M Ft
4 szoba
91 m²

Falusi CSOK ingatlanok

Balatonakali
Eladó ikerház

Balatonakali

560 M Ft
4 szoba
140 m²
Balatonederics
Eladó családi ház

Balatonederics

119 M Ft
3 szoba
140 m²
Gáborján
Eladó családi ház

Gáborján

5.5 M Ft
2 szoba
68 m²
Újlengyel
Eladó családi ház

Újlengyel

110 M Ft
4 szoba
121 m²
Tök
Eladó családi ház

Tök

20 M Ft
2 szoba
47 m²
Ceglédbercel
Eladó családi ház

Ceglédbercel

53 M Ft
3 szoba
67 m²
Nagykarácsony
Eladó családi ház

Nagykarácsony

34.9 M Ft
3 szoba
112 m²
Gönyű
Eladó családi ház

Gönyű

111.951 M Ft
5 szoba
105 m²