Seven Pearl

Eladó családi ház
Győrság

Figyelem!

Ez az ingatlan a 2019.07.01-től induló falusi CSOK által támogatott településen található

+ 17 kép 1/20
457 000 000 Ft457 M Ft 409 865 Ft/m2
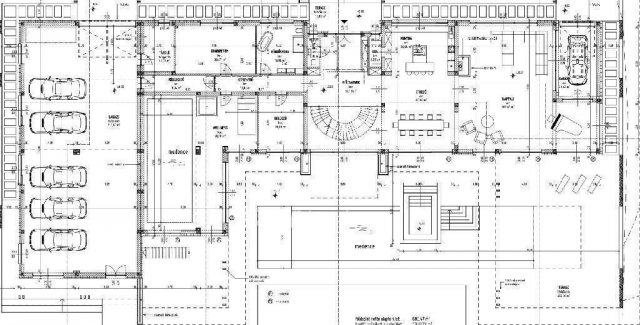
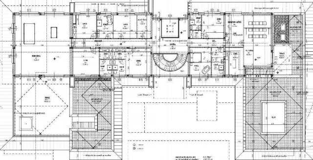
12 szoba
1115 m²
építés éve:2025

Részletes adatok

Telekméret: 8392 m2
Fűtés: Egyéb
Parkolás: Garázs
Energetikai besorolás: Nem adta meg a hirdető

Az OTP Bank lakáshitel ajánlataFizetett hirdetés

+36 70 250
Péter Richárd
referens

Érdekel az OTP Bank kedvezményes lakáshitel ajánlata? *

* A kérdésre „Igen” válasz bejelölése esetén, az „Üzenet küldése” gombra kattintva kijelentem, hogy az OTP Bank Nyrt. Adatkezelési tájékoztatójának tartalmát megismertem és tudomásul vettem.

Eladó családi ház leírása

Győrság lenyűgöző panorámás birtoka várja új tulajdonosát!
Ez az exkluzív ingatlan 8400 négyzetméteren terül el, és páratlan lehetőségeket kínál mind privát, mind üzleti célú felhasználásra. Az 1115 négyzetméteres épület modern infrastruktúrával és félkész állapotban várja, hogy álmai otthonává vagy sikeres vállalkozás alapjává váljon.
A telek mérete és elhelyezkedése ideális befektetőknek, akik társasházak, apartmanok vagy egyéb szálló kialakítását tervezik. Az épület már rendelkezik korszerű tetőszigeteléssel és antracit színű, acél nyílászárókkal, amelyek nemcsak esztétikusak, de kiváló szigetelést is biztosítanak. A belső munkák végső simításai már az új tulajdonos ízlésére szabhatóak.
A vízellátás Pannonhalmáról érkezik, a villamos hálózat korszerűsítve lett, így az ingatlan minden feltételt biztosít a komfortos és zavartalan élethez.
Ez a helyszín nemcsak otthon, de életstílus is: csendes környezet, lélegzetelállító táj, és határtalan lehetőségek egy olyan birtokon, amely egyszerre nyújt intimitást és végtelen kreatív szabadságot.
További információért és megtekintésért forduljon hozzánk bizalommal.
Referenciaszám: M325043

Hirdetés feltöltve: 2026. 04. 18.

Az ingatlan elhelyezkedése

Cím: Győrság

Eladó családi házak a környékről

Győr
Eladó családi ház

Győr

278 M Ft
6 szoba
339 m²
Győrság
Eladó családi ház

Győrság

93.45 M Ft
4 szoba
96 m²
Győrság
Eladó családi ház

Győrság

99 M Ft
5 szoba
196 m²
Győrság
Eladó családi ház

Győrság

89.9 M Ft
4 szoba
92 m²
Győrság
Eladó családi ház

Győrság

89.9 M Ft
4 szoba
92 m²
Kapuvár
Eladó családi ház

Kapuvár

115 M Ft
5 szoba
222 m²
Győrság
Eladó családi ház

Győrság

89.9 M Ft
4 szoba
92 m²
Fertőszéplak
Eladó családi ház

Fertőszéplak

99 M Ft
4 szoba
98 m²
Győrság
Eladó családi ház

Győrság

89.9 M Ft
4 szoba
92 m²
Nagycenk
Eladó családi ház

Nagycenk

64.8 M Ft
3 + 1 szoba
76 m²
Kapuvár
Eladó családi ház

Kapuvár

22.99 M Ft
1 + 1 szoba
65 m²
Harka
Eladó családi ház

Harka

60.9 M Ft
3 + 1 szoba
67 m²
Győr
Eladó családi ház

Győr

325 M Ft
6 szoba
365 m²
Nagycenk
Eladó családi ház

Nagycenk

102.5 M Ft
4 szoba
98 m²
Győrság
Eladó családi ház

Győrság

76.5 M Ft
4 szoba
91 m²
Nagycenk
Eladó családi ház

Nagycenk

80.6 M Ft
4 szoba
106 m²
Győrság
Eladó családi ház

Győrság

99 M Ft
4 szoba
196 m²
Harka
Eladó családi ház

Harka

99 M Ft
4 szoba
103 m²
Győrság
Eladó családi ház

Győrság

70.1 M Ft
5 szoba
116 m²
Győrság
Eladó családi ház

Győrság

475 M Ft
13 szoba
1115 m²
Rábacsanak
Eladó családi ház

Rábacsanak

30 M Ft
2 szoba
107 m²
Győrság
Eladó családi ház

Győrság

79.5 M Ft
4 szoba
91 m²
Dunakiliti
Eladó családi ház

Dunakiliti

127.012 M Ft
3 + 1 szoba
140 m²
Győrság
Eladó családi ház

Győrság

63 M Ft
4 szoba
113 m²

Falusi CSOK ingatlanok

Szarvaskő, Rózsa utca
Eladó családi ház

Szarvaskő

54.9 M Ft
1 + 3 szoba
140 m²
Vokány
Eladó családi ház

Vokány

30 M Ft
4 szoba
100 m²
Iklad
Eladó családi ház

Iklad

60 M Ft
3 szoba
76 m²
Recsk
Eladó családi ház

Recsk

40 M Ft
3 + 1 szoba
110 m²
Zsámbok
Eladó családi ház

Zsámbok

32 M Ft
2 szoba
75 m²
Perkáta
Eladó családi ház

Perkáta

38.95 M Ft
1 + 2 szoba
72 m²
Cece
Eladó családi ház

Cece

56.95 M Ft
5 szoba
170 m²
Sződ
Eladó családi ház

Sződ

102.9 M Ft
4 szoba
92 m²

Falusi CSOK ingatlanok

Iklad
Eladó családi ház

Iklad

60 M Ft
3 szoba
76 m²
Tápiószőlős
Eladó családi ház

Tápiószőlős

9.5 M Ft
2 szoba
46 m²
Ambrózfalva
Eladó családi ház

Ambrózfalva

26.9 M Ft
5 szoba
194 m²
Szigetcsép
Eladó családi ház

Szigetcsép

110 M Ft
3 szoba
137 m²
Somlójenő
Eladó családi ház

Somlójenő

64.9 M Ft
4 szoba
221 m²
Balatonszepezd
Eladó családi ház

Balatonszepezd

219.99 M Ft
13 szoba
409 m²
Nyáregyháza
Eladó családi ház

Nyáregyháza

114.99 M Ft
7 szoba
267 m²
Tápióbicske
Eladó családi ház

Tápióbicske

79.9 M Ft
3 szoba
160 m²