Metrodom

Eladó téglalakás
Tiszavasvári, Sorház

18 000 000 Ft18 M Ft 264 706 Ft/m2
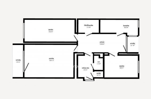
2 + 1 szoba
68 m2
Sorház
építés éve:1980

Részletes adatok

Állapot: Átlagos
Fűtés: Távfűtés
Emelet: 3. emelet
Energetikai besorolás: Nem adta meg a hirdető

Az OTP Bank lakáshitel ajánlataFizetett hirdetés

+36 20 218
Zsuposné Erdős Juliánna
referens

Érdekel az OTP Bank kedvezményes lakáshitel ajánlata? *

* A kérdésre „Igen” válasz bejelölése esetén, az „Üzenet küldése” gombra kattintva kijelentem, hogy az OTP Bank Nyrt. Adatkezelési tájékoztatójának tartalmát megismertem és tudomásul vettem.

Eladó téglalakás leírása

Eladó tágas, 72 nm-es, 3. emeleti téglalakás Tiszavasváriban!

Tiszavasvári központjától néhány percre, egy négyemeletes téglaépület 3. emeletén kínálunk eladásra egy karbantartott, világos, 72 nm-es lakást.
Az ingatlan beton alapon épült, tégla falazatú, és központi, radiátoros fűtéssel rendelkezik, amely rendkívül kedvező rezsivel üzemel ? a téli hónapokban is tízezer forint alatt marad a fűtés költsége.
A keleti fekvésű lakás nyáron is kellemesen hűvös, köszönhetően a ház előtt álló nagy, árnyékot adó fáknak.
A környék csendes, rendezett, a városközpont, üzletek, óvoda és iskola mind pár perc sétára találhatók, így ideális választás családok számára is.
OTP Banki hátterünknek köszönhetően finanszírozási igényekben (pl. Otthon Start Hitelprogram, Babaváró, Falusi CSOK, CSOK Plusz, Lakáshitel, Személyi kölcsön stb.), illetve biztosítások tekintetében is díjmentesen, soron kívüli ügyintézéssel segítem ügyfeleim!
Referenciaszám : M315013

Referencia szám: M315013

Hirdetés feltöltve: 2026. 01. 17. Utoljára módosítva: 2026. 01. 17.

Az ingatlan elhelyezkedése

Cím: Tiszavasvári, Sorház

Eladó ingatlanok a környékről

Eladó téglalakás
Eladó téglalakás

Nyíregyháza

39.5 M Ft
2 + 1 szoba
79 m2
Eladó téglalakás
Eladó téglalakás

Nyíregyháza

39.9 M Ft
2 szoba
54 m2
Eladó ikerház
Eladó ikerház

Nyíregyháza

64.9 M Ft
1 + 2 szoba
91 m2
Eladó téglalakás
Eladó téglalakás

Nyíregyháza

37.5 M Ft
1 szoba
44 m2
Eladó családi ház
Eladó családi ház

Tiszakóród

69.9 M Ft
3 szoba
140 m2
Eladó családi ház
Eladó családi ház

Nyíregyháza

79.9 M Ft
5 + 1 szoba
192 m2
Eladó panellakás
Eladó panellakás

Nyíregyháza

34.8 M Ft
1 + 1 szoba
42 m2
Eladó téglalakás
Eladó téglalakás

Nyíregyháza

53.7 M Ft
2 szoba
103 m2
Eladó téglalakás
Eladó téglalakás

Nyíregyháza

40.5 M Ft
3 + 1 szoba
79 m2
Eladó téglalakás
Eladó téglalakás

Tiszavasvári, Kossuth Lajos utca

18 M Ft
3 szoba
61 m2
Eladó téglalakás
Eladó téglalakás

Tiszavasvári

6.99 M Ft
2 szoba
63 m2
Eladó téglalakás
Eladó téglalakás

Nyíregyháza

77.5 M Ft
4 szoba
120 m2
Eladó téglalakás
Eladó téglalakás

Tiszavasvári

18 M Ft
2 + 1 szoba
68 m2
Eladó családi ház
Eladó családi ház

Nyíregyháza

69 M Ft
2 szoba
77 m2
Eladó családi ház
Eladó családi ház

Vasmegyer

39.5 M Ft
2 szoba
130 m2
Eladó téglalakás
Eladó téglalakás

Nyíregyháza

39.9 M Ft
1 + 2 szoba
55 m2
Eladó téglalakás
Eladó téglalakás

Kisvárda

54.2 M Ft
4 szoba
74 m2
Eladó téglalakás
Eladó téglalakás

Nyíregyháza

49.5 M Ft
3 szoba
66 m2
Eladó téglalakás
Eladó téglalakás

Tiszavasvári

18 M Ft
2 + 1 szoba
68 m2
Eladó téglalakás
Eladó téglalakás

Tiszavasvári

19.5 M Ft
1 + 2 szoba
57 m2
Eladó téglalakás
Eladó téglalakás

Tiszavasvári

18 M Ft
2 + 1 szoba
68 m2
Eladó téglalakás
Eladó téglalakás

Nyíregyháza

79.99 M Ft
4 szoba
152 m2
Eladó családi ház
Eladó családi ház

Nagyecsed

29.9 M Ft
2 + 1 szoba
150 m2
Eladó téglalakás
Eladó téglalakás

Nyíregyháza, Örökösföld, Törzs utca 2

74.9 M Ft
3 szoba
75 m2

Falusi CSOK ingatlanok

Eladó családi ház
Eladó családi ház

Bag

16.9 M Ft
6 szoba
160 m2
Eladó családi ház
Eladó családi ház

Szigetcsép

47 M Ft
3 szoba
87 m2
Eladó családi ház
Eladó családi ház

Kenyeri

39.9 M Ft
3 szoba
94 m2
Eladó családi ház
Eladó családi ház

Segesd

14.3 M Ft
3 szoba
100 m2
Eladó családi ház
Eladó családi ház

Galambok

118 M Ft
7 szoba
249 m2
Eladó családi ház
Eladó családi ház

Pánd

31.5 M Ft
4 szoba
74 m2
Eladó családi ház
Eladó családi ház

Nagykarácsony

34.9 M Ft
3 szoba
112 m2
Eladó családi ház
Eladó családi ház

Tabajd

79 M Ft
4 szoba
82 m2