NapForrás 20 - Buda

Eladó téglalakás
Tiszavasvári, 3. emelet

+ 12 kép 1/15
18 000 000 Ft18 M Ft 264 706 Ft/m2
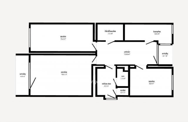
2 + 1 szoba
68 m²
3. emelet
építés éve:1980

Részletes adatok

Állapot: Átlagos
Fűtés: Távfűtés
Emelet: 3. emelet
Energetikai besorolás: Nem adta meg a hirdető

Az OTP Bank lakáshitel ajánlataFizetett hirdetés

+36 70 609
Támcsu Richárd
OTPip - Nyíregyháza Sólyom utca 4 - OTP Ingatlanpont Iroda

Érdekel az OTP Bank kedvezményes lakáshitel ajánlata? *

* A kérdésre „Igen” válasz bejelölése esetén, az „Üzenet küldése” gombra kattintva kijelentem, hogy az OTP Bank Nyrt. Adatkezelési tájékoztatójának tartalmát megismertem és tudomásul vettem.

Eladó téglalakás leírása

Eladó tágas, 72 nm-es, 3. emeleti téglalakás Tiszavasváriban!

Tiszavasvári központjától néhány percre, egy négyemeletes téglaépület 3. emeletén kínálunk eladásra egy karbantartott, világos, 72 nm-es lakást.
Az ingatlan beton alapon épült, tégla falazatú, és központi, radiátoros fűtéssel rendelkezik, amely rendkívül kedvező rezsivel üzemel ? a téli hónapokban is tízezer forint alatt marad a fűtés költsége.
A keleti fekvésű lakás nyáron is kellemesen hűvös, köszönhetően a ház előtt álló nagy, árnyékot adó fáknak.
A környék csendes, rendezett, a városközpont, üzletek, óvoda és iskola mind pár perc sétára találhatók, így ideális választás családok számára is.
OTP Banki hátterünknek köszönhetően finanszírozási igényekben (pl. Otthon Start Hitelprogram, Babaváró, Falusi CSOK, CSOK Plusz, Lakáshitel, Személyi kölcsön stb.), illetve biztosítások tekintetében is díjmentesen, soron kívüli ügyintézéssel segítem ügyfeleim!
Referenciaszám : M315013

Referencia szám: M315013

Hirdetés feltöltve: 2026. 03. 07. Utoljára módosítva: 2026. 03. 26.

Az ingatlan elhelyezkedése

Cím: Tiszavasvári, 3. emelet

Eladó téglalakások a környékről

Tiszavasvári
Eladó téglalakás

Tiszavasvári

31.5 M Ft
3 + 1 szoba
115 m²
Nyíregyháza
Eladó téglalakás

Nyíregyháza

64.9 M Ft
5 szoba
120 m²
Nyíregyháza
Eladó téglalakás

Nyíregyháza

77.5 M Ft
4 szoba
120 m²
Tiszavasvári
Eladó téglalakás

Tiszavasvári

31.5 M Ft
3 + 1 szoba
115 m²
Tiszavasvári
Eladó téglalakás

Tiszavasvári

31.5 M Ft
3 + 1 szoba
115 m²
Nyíregyháza
Eladó téglalakás

Nyíregyháza

53.7 M Ft
2 szoba
103 m²
Tiszavasvári
Eladó téglalakás

Tiszavasvári

16.99 M Ft
2 + 1 szoba
63 m²
Nyíregyháza, Örökösföld, Törzs utca 2
Eladó téglalakás

Nyíregyháza

67.9 M Ft
3 szoba
71 m²
Tiszavasvári
Eladó téglalakás

Tiszavasvári

25.5 M Ft
2 szoba
64 m²
Tiszavasvári
Eladó téglalakás

Tiszavasvári

25.5 M Ft
1 + 2 szoba
59 m²
Nyíregyháza
Eladó téglalakás

Nyíregyháza

54.5 M Ft
3 szoba
67 m²
Tiszavasvári
Eladó téglalakás

Tiszavasvári

19.5 M Ft
3 szoba
61 m²
Tiszavasvári
Eladó téglalakás

Tiszavasvári

25.5 M Ft
1 + 2 szoba
59 m²
Tiszavasvári
Eladó téglalakás

Tiszavasvári

18 M Ft
2 + 1 szoba
68 m²
Nyíregyháza
Eladó téglalakás

Nyíregyháza

43.5 M Ft
2 + 2 szoba
79 m²
Nyíregyháza
Eladó téglalakás

Nyíregyháza

36 M Ft
2 szoba
58 m²
Nyíregyháza
Eladó téglalakás

Nyíregyháza

43.5 M Ft
2 + 2 szoba
79 m²
Nyíregyháza
Eladó téglalakás

Nyíregyháza

36 M Ft
2 szoba
58 m²
Tiszavasvári
Eladó téglalakás

Tiszavasvári

18 M Ft
2 + 1 szoba
68 m²
Nyíregyháza
Eladó téglalakás

Nyíregyháza

43.5 M Ft
2 + 1 szoba
79 m²
Nyíregyháza
Eladó téglalakás

Nyíregyháza

36 M Ft
2 szoba
58 m²
Tiszavasvári
Eladó téglalakás

Tiszavasvári

25.5 M Ft
2 szoba
64 m²
Tiszavasvári
Eladó téglalakás

Tiszavasvári

31.5 M Ft
3 + 1 szoba
115 m²
Tiszavasvári
Eladó téglalakás

Tiszavasvári

25.5 M Ft
1 + 2 szoba
59 m²

Falusi CSOK ingatlanok

Balatonszemes
Eladó téglalakás

Balatonszemes

119.9 M Ft
2 szoba
81 m²
Ságvár
Eladó családi ház

Ságvár

53.9 M Ft
3 szoba
75 m²
Jakabszállás
Eladó családi ház

Jakabszállás

105 M Ft
6 szoba
180 m²
Seregélyes
Eladó családi ház

Seregélyes

75 M Ft
6 szoba
160 m²
Recsk
Eladó családi ház

Recsk

59 M Ft
2 szoba
70 m²
Nyáregyháza
Eladó családi ház

Nyáregyháza

68.9 M Ft
3 szoba
143 m²
Nyírtura
Eladó családi ház

Nyírtura

69.9 M Ft
4 szoba
120 m²
Verseg
Eladó családi ház

Verseg

38 M Ft
3 szoba
83 m²