Avico Greentop

Eladó téglalakás
Tiszavasvári, 3. emelet

+ 12 kép 1/15
18 000 000 Ft18 M Ft 264 706 Ft/m2
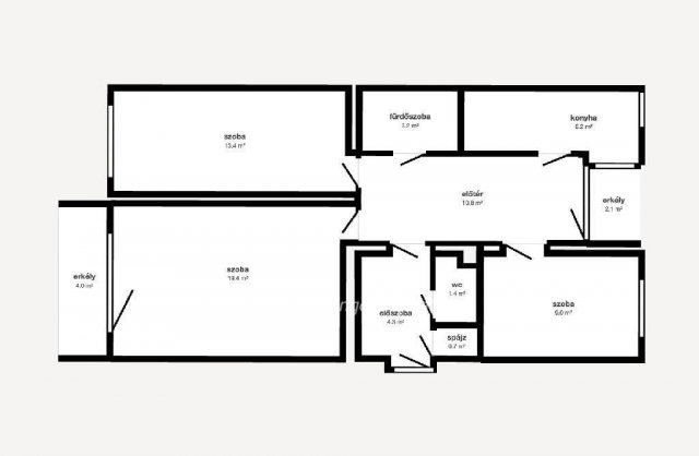
2 + 1 szoba
68 m²
3. emelet
építés éve:1980

Részletes adatok

Állapot: Átlagos
Fűtés: Távfűtés
Emelet: 3. emelet
Energetikai besorolás: Nem adta meg a hirdető

Az OTP Bank lakáshitel ajánlataFizetett hirdetés

+36 20 468
Kissné Orosz Ildikó Krisztina
OTPIP Nyíregyháza Hunyadi u.

Érdekel az OTP Bank kedvezményes lakáshitel ajánlata? *

* A kérdésre „Igen” válasz bejelölése esetén, az „Üzenet küldése” gombra kattintva kijelentem, hogy az OTP Bank Nyrt. Adatkezelési tájékoztatójának tartalmát megismertem és tudomásul vettem.

Eladó téglalakás leírása

Eladó tágas, 72 nm-es, 3. emeleti téglalakás Tiszavasváriban!

Tiszavasvári központjától néhány percre, egy négyemeletes téglaépület 3. emeletén kínálunk eladásra egy karbantartott, világos, 72 nm-es lakást.
Az ingatlan beton alapon épült, tégla falazatú, és központi, radiátoros fűtéssel rendelkezik, amely rendkívül kedvező rezsivel üzemel ? a téli hónapokban is tízezer forint alatt marad a fűtés költsége.
A keleti fekvésű lakás nyáron is kellemesen hűvös, köszönhetően a ház előtt álló nagy, árnyékot adó fáknak.
A környék csendes, rendezett, a városközpont, üzletek, óvoda és iskola mind pár perc sétára találhatók, így ideális választás családok számára is.
OTP Banki hátterünknek köszönhetően finanszírozási igényekben (pl. Otthon Start Hitelprogram, Babaváró, Falusi CSOK, CSOK Plusz, Lakáshitel, Személyi kölcsön stb.), illetve biztosítások tekintetében is díjmentesen, soron kívüli ügyintézéssel segítem ügyfeleim!
Referenciaszám : M315013

Hirdetés feltöltve: 2025. 11. 09. Utoljára módosítva: 2026. 04. 02.

3 szobás téglalakások ára Tiszavasváriban

Ebből az összehasonlításból megtudhatod, hogyan viszonyul a lakás ára a környékbeli téglalakások átlagos árához. Ez nem azt jelenti, hogy ennyivel olcsóbb vagy drágább, mint amennyit a lakás ér, hanem hogy ennyivel tér el a környékbeli átlagtól.

Ennek a m² ára
Tiszavasvári m² ár
265 e Ft
325 e Ft 19%
Ennek az ára
Tiszavasvári átlagár
18 M Ft m Ft
21.1 m Ft 15%

Az ingatlan elhelyezkedése

Cím: Tiszavasvári, 3. emelet

Eladó téglalakások a környékről

Nyíregyháza
Eladó téglalakás

Nyíregyháza

53.7 M Ft
2 szoba
103 m²
Tiszavasvári
Eladó téglalakás

Tiszavasvári

31.5 M Ft
3 + 1 szoba
115 m²
Nyíregyháza
Eladó téglalakás

Nyíregyháza

77.5 M Ft
4 szoba
120 m²
Nyíregyháza
Eladó téglalakás

Nyíregyháza

36 M Ft
2 szoba
58 m²
Tiszavasvári
Eladó téglalakás

Tiszavasvári

31.5 M Ft
3 + 1 szoba
115 m²
Nyíregyháza
Eladó téglalakás

Nyíregyháza

79.99 M Ft
4 szoba
152 m²
Tiszavasvári
Eladó téglalakás

Tiszavasvári

25.5 M Ft
2 + 1 szoba
59 m²
Nyíregyháza
Eladó téglalakás

Nyíregyháza

73 M Ft
2 + 1 szoba
67 m²
Nyíregyháza
Eladó téglalakás

Nyíregyháza

54.5 M Ft
3 szoba
67 m²
Nyíregyháza
Eladó téglalakás

Nyíregyháza

43.5 M Ft
2 + 2 szoba
79 m²
Nyíregyháza
Eladó téglalakás

Nyíregyháza

43.5 M Ft
2 + 2 szoba
79 m²
Tiszavasvári
Eladó téglalakás

Tiszavasvári

18 M Ft
2 + 1 szoba
68 m²
Nyíregyháza
Eladó téglalakás

Nyíregyháza

36 M Ft
2 szoba
58 m²
Tiszavasvári
Eladó téglalakás

Tiszavasvári

25.5 M Ft
1 + 2 szoba
59 m²
Tiszavasvári
Eladó téglalakás

Tiszavasvári

31.5 M Ft
3 + 1 szoba
115 m²
Tiszavasvári
Eladó téglalakás

Tiszavasvári

25.5 M Ft
1 + 2 szoba
59 m²
Tiszavasvári
Eladó téglalakás

Tiszavasvári

16.5 M Ft
3 szoba
61 m²
Nyíregyháza
Eladó téglalakás

Nyíregyháza

59.9 M Ft
3 + 1 szoba
120 m²
Tiszavasvári
Eladó téglalakás

Tiszavasvári

18 M Ft
2 + 1 szoba
68 m²
Nyíregyháza
Eladó téglalakás

Nyíregyháza

55.5 M Ft
2 szoba
78 m²
Nyíregyháza
Eladó téglalakás

Nyíregyháza

64.9 M Ft
4 szoba
120 m²
Nyíregyháza
Eladó téglalakás

Nyíregyháza

43.5 M Ft
2 + 1 szoba
79 m²
Nyíregyháza
Eladó téglalakás

Nyíregyháza

36 M Ft
2 szoba
58 m²
Nyíregyháza
Eladó téglalakás

Nyíregyháza

36 M Ft
2 szoba
58 m²

Falusi CSOK ingatlanok

Lengyeltóti
Eladó családi ház

Lengyeltóti

49.9 M Ft
3 szoba
110 m²
Szigetújfalu
Eladó családi ház

Szigetújfalu

120 M Ft
4 szoba
291 m²
Ceglédbercel
Eladó családi ház

Ceglédbercel

79.9 M Ft
5 szoba
140 m²
Gádoros
Eladó családi ház

Gádoros

25.5 M Ft
4 szoba
140 m²
Vid
Eladó családi ház

Vid

27 M Ft
4 szoba
100 m²
Vásárosdombó
Eladó családi ház

Vásárosdombó

14.99 M Ft
2 szoba
69 m²
Cserépfalu
Eladó családi ház

Cserépfalu

58 M Ft
4 szoba
143 m²
Szenta
Eladó családi ház

Szenta

14.9 M Ft
3 szoba
88 m²