Aerogate Homes

Eladó téglalakás
Taksony, földszint

+ 16 kép 1/19
146 000 000 Ft146 M Ft 1 000 000 Ft/m2
6 szoba
146 m²
földszint
építés éve:2026

Részletes adatok

Telekméret: 200 m2
Fűtés: Egyéb
Emelet: földszint
Parkolás: Garázs
Energetikai besorolás: A++

Az OTP Bank lakáshitel ajánlataFizetett hirdetés

+36 20 588
Goldea Edit Anikó
referens

Érdekel az OTP Bank kedvezményes lakáshitel ajánlata? *

* A kérdésre „Igen” válasz bejelölése esetén, az „Üzenet küldése” gombra kattintva kijelentem, hogy az OTP Bank Nyrt. Adatkezelési tájékoztatójának tartalmát megismertem és tudomásul vettem.

Eladó téglalakás leírása

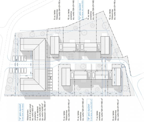
ECOLAND lakópark Taksonyban!

Taksonyban 6265 nm-es területen egy modern 12 lakásos lakópark építése hamarosan megkezdődik, és ezzel együtt elindítjuk az előértékesítést!

Amit kínálunk!
-Prémium kivitelezés,
-Korszerű, energiatakarékos lakások,
-Átgondolt alaprajzok, kényelmes életterek,
-Csendes, nyugodt környezet,
-Földszinti lakások saját kertrésszel rendelkeznek,
-Kiváló megközelíthetőség.

Legyen ön az elsők között, akik kiválaszthatják álmaik otthonát a legjobb adottságú lakások közül!

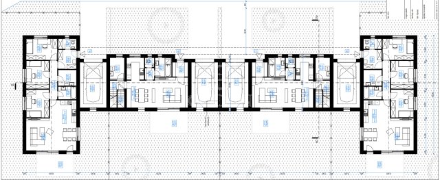
A lakások különböző méretűek, a belső terek még az ön izlése, igénye szerint alakíthatóak. A projektben különböző méretű üzlethelyiségek kialakítása is tervezett. A hirdetésben mellékelünk néhány alaprajzot.

Épül- 4 db kétszintes lakás garázzsal + terasszal + saját kertrésszel.
nappali+ étkező+konyha+5 szoba+ fürdőszoba-WC+zuhanyzó-
WC+ tároló
Akár kétgenerációssá alaktíható!
a lakások alapterülete: nettó 146 nm + 15 nm terasz + saját
kertrész kb. 200 nm. A garázs teteje monolit födém, járható,
beépíthető!
Ára: 146.000.000.-Ft

- 4 db földszinti lakás garázzsal + terasszal + saját kertrésszel.
a lakások alapterülete: nettó 115 nm + 15 nm terasz + saját
kertrész kb. 316 nm. Ára: 115.000.000.-Ft

- 3 db emeleti lakás loggiával.
a lakások alapterülete: nettó 80 nm.
Ára: 96.000.000.-Ft

- 1 db 240 nm-es emeleti lakás. BEFEKTETŐKNEK!
3 teljesértékű lakássá alakítható (saját fűtés, víz, villany
kialakítva, saját mérőórák). Ára: 240.000.000.-Ft

Műszaki tartalom:
- falazat Porotherm N+F 30 tégla,
- vasbeton födém + 25 cm szigetelés,
- külső szigetelés 15 cm polisztirol,
- 3 rétegű műanyag nyílászárók,
- elektromos alumínium redőny + szúnyogháló,
- elektromos garázsajtó,
- hőszivattyús fűtésrendszer, padlófűtés,
- lakásonként 4 db Gree hűtő-fűtő klíma,
- hideg burkolatok 7.000.-Ft/nm,
- meleg burkolatok 6.000.-Ft/nm,
- beltéri ajtók 80.000.- Ft/db,
- szaniterek 800.000.-Ft-ig.
- földszinti lakások saját telekrésze lekerítve,
- elektromos autó töltési lehetőség.

Várható átadás: 2027. évvége.
A lakások 20 % önerővel leköthetők.

Irodánk 30 éves szakmai tapasztalattal áll ügyfelei rendelkezésére!
Amivel segítjük az Ön ingatlan vásárlását:
- ingyenes hitelügyintézés (CSOK és Babaváró és egyéb hitel ügyintézése is)
- jogi háttér,
- földhivatali ügyintézés,
- energetikai tanúsítvány ügyintézése,
- a vevő számára ingyenes az ingatlanközvetítés.

Várom szíves megkeresését! ...TOVÁBBI, TÖBBEZRES INGATLAN KÍNÁLAT: www.gdn-ingatlan.hu - GDN azonosító: 394561

Hirdetés feltöltve: 2026. 04. 08.

Az ingatlan elhelyezkedése

Cím: Taksony, földszint

Eladó ingatlanok a környékről

Göd
Eladó téglalakás

Göd

46.5 M Ft
4 szoba
72 m²
Fót
Eladó téglalakás

Fót

140 M Ft
3 szoba
78 m²
Gyál
Eladó családi ház

Gyál

54.9 M Ft
4 + 1 szoba
84 m²
Kistarcsa
Eladó családi ház

Kistarcsa

94.9 M Ft
4 szoba
113 m²
Göd
Eladó téglalakás

Göd

46.5 M Ft
3 szoba
69 m²
Inárcs
Eladó telek

Inárcs

599 M Ft
3.09 ha
0 m²
Dunaharaszti
Eladó telek

Dunaharaszti

54.9 M Ft
656 m²
0 m²
Vecsés, Róder Imre utca
Eladó családi ház

Vecsés

61 M Ft
2 szoba
63 m²
Göd
Eladó téglalakás

Göd

44.5 M Ft
3 szoba
69 m²
Inárcs
Eladó családi ház

Inárcs

89.9 M Ft
2 szoba
80 m²
Dunaharaszti
Eladó nyaraló

Dunaharaszti

57 M Ft
2 szoba
38 m²
Vác
Eladó családi ház

Vác

44.9 M Ft
1 szoba
50 m²
Göd
Eladó téglalakás

Göd

28.9 M Ft
2 szoba
44 m²
Göd
Eladó téglalakás

Göd

27.9 M Ft
2 szoba
43 m²
Taksony
Eladó téglalakás

Taksony

115 M Ft
4 szoba
115 m²
Göd
Eladó téglalakás

Göd

44.5 M Ft
3 szoba
73 m²
Dunakeszi, Alag központ, Barátság útja
Eladó panellakás

Dunakeszi

74 M Ft
3 szoba
71 m²
Gyömrő
Eladó telek

Gyömrő

148 M Ft
5920 m²
Göd
Eladó téglalakás

Göd

27.9 M Ft
2 szoba
43 m²
Tóalmás
Eladó nyaraló

Tóalmás

16 M Ft
2 szoba
30 m²
Páty, Kökény utca
Eladó telek

Páty

79.9 M Ft
5573 m²
Ráckeve
Eladó nyaraló

Ráckeve

37.8 M Ft
2 szoba
48 m²
Gyömrő
Eladó telek

Gyömrő

148 M Ft
5925 m²
Göd
Eladó téglalakás

Göd

42.9 M Ft
3 szoba
61 m²

Falusi CSOK ingatlanok

Herend
Eladó családi ház

Herend

114.3 M Ft
5 szoba
108 m²
Nagyréde
Eladó családi ház

Nagyréde

69.5 M Ft
4 szoba
110 m²
Ceglédbercel
Eladó családi ház

Ceglédbercel

79.9 M Ft
5 szoba
140 m²
Bozsok
Eladó családi ház

Bozsok

290 M Ft
6 szoba
370 m²
Tápióbicske
Eladó ikerház

Tápióbicske

93.5 M Ft
7 szoba
136 m²
Somogycsicsó
Eladó családi ház

Somogycsicsó

15.99 M Ft
4 szoba
98 m²
Cece
Eladó családi ház

Cece

69.8 M Ft
4 szoba
215 m²
Bősárkány
Eladó családi ház

Bősárkány

60 M Ft
4 szoba
107 m²