Oasis Residence

Eladó téglalakás
Taksony, 1. emelet

+ 16 kép 1/19
96 000 000 Ft96 M Ft 1 200 000 Ft/m2
3 szoba
80 m²
1. emelet
építés éve:2026

Részletes adatok

Fűtés: Egyéb
Emelet: 1. emelet
Parkolás: Garázs
Energetikai besorolás: A++

Az OTP Bank lakáshitel ajánlataFizetett hirdetés

+36 20 588
Goldea Edit Anikó
referens

Érdekel az OTP Bank kedvezményes lakáshitel ajánlata? *

* A kérdésre „Igen” válasz bejelölése esetén, az „Üzenet küldése” gombra kattintva kijelentem, hogy az OTP Bank Nyrt. Adatkezelési tájékoztatójának tartalmát megismertem és tudomásul vettem.

Eladó téglalakás leírása

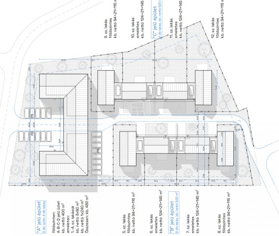
ECOLAND lakópark Taksonyban!

Taksonyban 6265 nm-es területen egy modern 12 lakásos lakópark építése hamarosan megkezdődik, és ezzel együtt elindítjuk az előértékesítést!

Amit kínálunk!
-Prémium kivitelezés,
-Korszerű, energiatakarékos lakások,
-Átgondolt alaprajzok, kényelmes életterek,
-Csendes, nyugodt környezet,
-Földszinti lakások saját kertrésszel rendelkeznek,
-Kiváló megközelíthetőség.

Legyen ön az elsők között, akik kiválaszthatják álmaik otthonát a legjobb adottságú lakások közül!

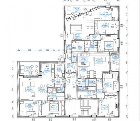
A lakások különböző méretűek, a belső terek még az ön izlése, igénye szerint alakíthatóak. A projektben különböző méretű üzlethelyiségek kialakítása is tervezett. A hirdetésben mellékelünk néhány alaprajzot.

Épül - 3 db emeleti lakás loggiával.
a lakások alapterülete: nettó 80 nm.
nappali+ étkező+ konyha+ fürdőszoba-WC+ házt.h+WC+loggia
Ára: 96.000.000.-Ft

- 4 db földszinti lakás garázzsal + terasszal + saját kertrésszel.
a lakások alapterülete: nettó 115 nm + 15 nm terasz + saját
kertrész kb. 316 nm. Ára: 115.000.000.-Ft

- 4 db kétszintes lakás garázzsal + terasszal + saját kertrésszel.
Akár kétgenerációssá alaktíható!
a lakások alapterülete: nettó 146 nm + 15 nm terasz + saját
kertrész kb. 200 nm. A garázs teteje monolit födém, járható,
beépíthető!
Ára: 146.000.000.-Ft

- 1 db 240 nm-es emeleti lakás. BEFEKTETŐKNEK!
3 teljesértékű lakássá alakítható (saját fűtés, víz, villany
kialakítva, saját mérőórák). Ára: 240.000.000.-Ft

Műszaki tartalom:
- falazat Porotherm N+F 30 tégla,
- vasbeton födém + 25 cm szigetelés,
- külső szigetelés 15 cm polisztirol,
- 3 rétegű műanyag nyílászárók,
- elektromos alumínium redőny + szúnyogháló,
- elektromos garázsajtó,
- hőszivattyús fűtésrendszer, padlófűtés,
- lakásonként 4 db Gree hűtő-fűtő klíma,
- hideg burkolatok 7.000.-Ft/nm,
- meleg burkolatok 6.000.-Ft/nm,
- beltéri ajtók 80.000.- Ft/db,
- szaniterek 800.000.-Ft-ig.
- földszinti lakások saját telekrésze lekerítve,
- elektromos autó töltési lehetőség.

Várható átadás: 2027. évvége.
A lakások 20 % önerővel leköthetők.

Irodánk 30 éves szakmai tapasztalattal áll ügyfelei rendelkezésére!
Amivel segítjük az Ön ingatlan vásárlását:
- ingyenes hitelügyintézés (CSOK és Babaváró és egyéb hitel ügyintézése is)
- jogi háttér,
- földhivatali ügyintézés,
- energetikai tanúsítvány ügyintézése,
- a vevő számára ingyenes az ingatlanközvetítés.

Várom szíves megkeresését! ...TOVÁBBI, TÖBBEZRES INGATLAN KÍNÁLAT: www.gdn-ingatlan.hu - GDN azonosító: 394562

Hirdetés feltöltve: 2026. 04. 08. Utoljára módosítva: 2026. 04. 08.

Az ingatlan elhelyezkedése

Cím: Taksony, 1. emelet

Eladó ingatlanok a környékről

Vecsés
Eladó családi ház

Vecsés

89 M Ft
5 szoba
118 m²
Göd
Eladó téglalakás

Göd

90 M Ft
2 szoba
44 m²
Göd
Eladó téglalakás

Göd

29.5 M Ft
2 szoba
44 m²
Fót
Eladó téglalakás

Fót

140 M Ft
3 szoba
78 m²
Göd
Eladó téglalakás

Göd

44.5 M Ft
3 szoba
69 m²
Taksony
Eladó telek

Taksony

165 M Ft
8422 m²
0 m²
Szigetszentmiklós
Eladó családi ház

Szigetszentmiklós

114.9 M Ft
4 szoba
155 m²
Göd
Eladó téglalakás

Göd

27.9 M Ft
2 szoba
44 m²
Göd
Eladó téglalakás

Göd

46.5 M Ft
3 szoba
69 m²
Nyáregyháza
Eladó ikerház

Nyáregyháza

82.9 M Ft
4 szoba
97 m²
Göd
Eladó téglalakás

Göd

46.5 M Ft
4 szoba
72 m²
Göd
Eladó téglalakás

Göd

32.5 M Ft
2 szoba
44 m²
Göd
Eladó téglalakás

Göd

32.9 M Ft
2 szoba
44 m²
Göd
Eladó téglalakás

Göd

29.5 M Ft
2 szoba
47 m²
Göd
Eladó téglalakás

Göd

28.9 M Ft
2 szoba
46 m²
Göd
Eladó téglalakás

Göd

42.5 M Ft
3 szoba
65 m²
Göd
Eladó téglalakás

Göd

44.5 M Ft
3 szoba
70 m²
Kistarcsa
Eladó családi ház

Kistarcsa

94.9 M Ft
4 szoba
113 m²
Göd
Eladó téglalakás

Göd

27.9 M Ft
2 szoba
43 m²
Gyömrő
Eladó telek

Gyömrő

2405.55 M Ft
6.31 ha
0 m²
Göd
Eladó téglalakás

Göd

27.9 M Ft
2 szoba
43 m²
Páty, Kökény utca
Eladó telek

Páty

79.9 M Ft
5573 m²
Göd
Eladó téglalakás

Göd

42.9 M Ft
3 szoba
61 m²
Gyömrő
Eladó telek

Gyömrő

148 M Ft
5920 m²

Falusi CSOK ingatlanok

Bag
Eladó családi ház

Bag

16.9 M Ft
6 szoba
160 m²
Röszke
Eladó családi ház

Röszke

69.99 M Ft
4 szoba
99 m²
Szentmártonkáta
Eladó családi ház

Szentmártonkáta

51.9 M Ft
5 szoba
150 m²
Cece
Eladó családi ház

Cece

69.8 M Ft
4 szoba
215 m²
Békéssámson
Eladó családi ház

Békéssámson

7.99 M Ft
4 szoba
100 m²
Ostffyasszonyfa
Eladó családi ház

Ostffyasszonyfa

37.9 M Ft
5 szoba
494 m²
Homokbödöge
Eladó családi ház

Homokbödöge

47.9 M Ft
4 + 1 szoba
167 m²
Tóalmás
Eladó családi ház

Tóalmás

109 M Ft
4 szoba
241 m²