Eladó téglalakás
Nyíregyháza, 3. emelet

+ 10 kép 1/13
38 800 000 Ft38.8 M Ft 705 455 Ft/m2
2 szoba
55 m2
3. emelet
építés éve:1970

Részletes adatok

Fűtés: Gázkonvektor
Energetikai besorolás: Nem adta meg a hirdető

Az OTP Bank lakáshitel ajánlataFizetett hirdetés

+36 20 940
Lipcseiné Kozák Judit
OTPIP Nyíregyháza Hunyadi u.

Érdekel az OTP Bank kedvezményes lakáshitel ajánlata? *

* A kérdésre „Igen” válasz bejelölése esetén, az „Üzenet küldése” gombra kattintva kijelentem, hogy az OTP Bank Nyrt. Adatkezelési tájékoztatójának tartalmát megismertem és tudomásul vettem.

Eladó téglalakás leírása

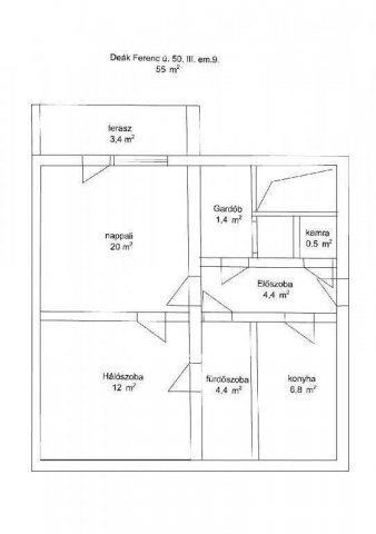
Belvároshoz közel, a Deák Ferenc utcán eladó egy szigetelt, tégla falazatú társasházban 3. emeleti, 55 négyzetméteres, 2 szobás, hőszigetelt, műanyag nyílászárós , kelet-nyugati fekvésű, napfényes, jó állapotú, erkélyes lakás. Az ingatlan azonnal birtokba vehető, teljes bútorzattal, gépesítéssel kerül átadásra ? minden, ami a fotókon látható, a vételár részét képezi. A lakás világos, jól elrendezett, a házban jó lakóközösség biztosítja a nyugodt, barátságos környezetet. Fiataloknak, első lakáshoz jutóknak, illetve befektetőknek is remek választás, hiszen azonnal költözhető, tehermentes, és kiváló elhelyezkedésű ingatlan. A lakás saját használatú pincével rendelkezik!
Kérem, tekintse meg személyesen, várom hívását akár hétvégén is!
OTP Banki hátterünknek köszönhetően finanszírozási igényekben (pl. Babaváró, Falusi CSOK, CSOK Plusz, Lakáshitel, Személyi kölcsön stb.), illetve biztosítások tekintetében is díjmentesen, soron kívüli ügyintézéssel segítem ügyfeleim! Referenciaszám: M314877

Hirdetés feltöltve: 2025. 10. 19. Utoljára módosítva: 2025. 10. 19.

2 szobás téglalakások ára Nyíregyházán

Ebből az összehasonlításból megtudhatod, hogyan viszonyul a lakás ára a környékbeli téglalakások átlagos árához. Ez nem azt jelenti, hogy ennyivel olcsóbb vagy drágább, mint amennyit a lakás ér, hanem hogy ennyivel tér el a környékbeli átlagtól.

Ennek a m² ára
Nyíregyháza m² ár
705 e Ft
854 e Ft 17%
Ennek az ára
Nyíregyháza átlagár
38.8 M Ft m Ft
47.8 m Ft 19%

Az ingatlan elhelyezkedése

Cím: Nyíregyháza, 3. emelet

Eladó téglalakások a környékről

Eladó téglalakás
Eladó téglalakás

Nyíregyháza

39.2 M Ft
3 + 1 szoba
79 m2
Eladó téglalakás
Eladó téglalakás

Nyíregyháza, Örökösföld, Törzs utca 2

74.9 M Ft
3 szoba
75 m2
Eladó téglalakás
Eladó téglalakás

Nyíregyháza

104.9 M Ft
5 szoba
209 m2
Eladó téglalakás
Eladó téglalakás

Nyíregyháza

39.2 M Ft
3 + 1 szoba
79 m2
Eladó téglalakás
Eladó téglalakás

Nyíregyháza

49.7 M Ft
2 szoba
103 m2
Eladó téglalakás
Eladó téglalakás

Nyíregyháza

54.5 M Ft
3 szoba
67 m2
Eladó téglalakás
Eladó téglalakás

Nyíregyháza

54.5 M Ft
2 + 1 szoba
67 m2
Eladó téglalakás
Eladó téglalakás

Nyíregyháza

39.2 M Ft
3 + 1 szoba
79 m2
Eladó téglalakás
Eladó téglalakás

Kisvárda

54.2 M Ft
4 szoba
74 m2
Eladó téglalakás
Eladó téglalakás

Nyíregyháza

55.5 M Ft
2 szoba
78 m2
Eladó téglalakás
Eladó téglalakás

Nyíregyháza

39.2 M Ft
3 + 1 szoba
79 m2
Eladó téglalakás
Eladó téglalakás

Nyíregyháza

39.2 M Ft
3 + 1 szoba
79 m2
Eladó téglalakás
Eladó téglalakás

Nyíregyháza

49.7 M Ft
2 szoba
83 m2
Eladó téglalakás
Eladó téglalakás

Nyíregyháza

104.9 M Ft
5 szoba
209 m2
Eladó téglalakás
Eladó téglalakás

Nyíregyháza

62.9 M Ft
2 + 2 szoba
130 m2
Eladó téglalakás
Eladó téglalakás

Nyíregyháza

39.2 M Ft
2 + 1 szoba
79 m2
Eladó téglalakás
Eladó téglalakás

Nyíregyháza

49.7 M Ft
2 szoba
103 m2
Eladó téglalakás
Eladó téglalakás

Nyíregyháza, Örökösföld, Törzs utca 2

74.9 M Ft
3 szoba
75 m2
Eladó téglalakás
Eladó téglalakás

Nyíregyháza

39.2 M Ft
2 + 2 szoba
79 m2
Eladó téglalakás
Eladó téglalakás

Nyíregyháza

46.5 M Ft
2 szoba
102 m2
Eladó téglalakás
Eladó téglalakás

Nyíregyháza

77.5 M Ft
4 szoba
120 m2
Eladó téglalakás
Eladó téglalakás

Nyíregyháza

54.5 M Ft
2 + 1 szoba
67 m2
Eladó téglalakás
Eladó téglalakás

Nyíregyháza

49.7 M Ft
3 szoba
83 m2
Eladó téglalakás
Eladó téglalakás

Nyíregyháza

49.7 M Ft
3 szoba
83 m2

Falusi CSOK ingatlanok

Eladó családi ház
Eladó családi ház

Homokkomárom

14 M Ft
0 + 3 szoba
72 m2
Eladó családi ház
Eladó családi ház

Szalánta

149.9 M Ft
10 szoba
301 m2
Eladó téglalakás
Eladó téglalakás

Felsőszentiván, Jókai Mór u 9 fszt 2

17.56 M Ft
1 + 1 szoba
90 m2
Eladó családi ház
Eladó családi ház

Elek

35.49 M Ft
2 szoba
75 m2
Eladó családi ház
Eladó családi ház

Tök

96.2 M Ft
4 szoba
104 m2
Eladó családi ház
Eladó családi ház

Pórszombat

20.5 M Ft
3 szoba
88 m2
Eladó családi ház
Eladó családi ház

Litke, Dózsa György út 86

10.55 M Ft
3 szoba
139 m2
Eladó családi ház
Eladó családi ház

Tápióbicske

12.5 M Ft
2 szoba
51 m2