Avico Greentop

Eladó téglalakás
Budapest, XX. kerület, 3. emelet

+ 1 kép 1/4
79 000 000 Ft79 M Ft 1 196 970 Ft/m2
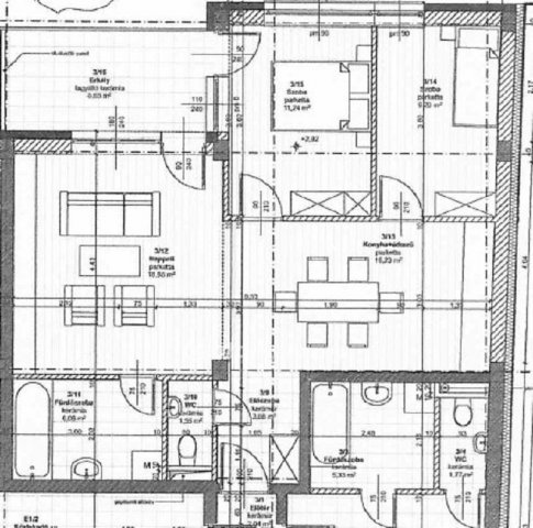
3 szoba
66 m2
3. emelet
építés éve:2023

Részletes adatok

Fűtés: Házközponti
Extrák: Lift
Energetikai besorolás: Nem adta meg a hirdető

Az OTP Bank lakáshitel ajánlataFizetett hirdetés

+36 30 204
Reisz Éva
OTPIP - Pécs, Rákóczi út 19.

Érdekel az OTP Bank kedvezményes lakáshitel ajánlata? *

* A kérdésre „Igen” válasz bejelölése esetén, az „Üzenet küldése” gombra kattintva kijelentem, hogy az OTP Bank Nyrt. Adatkezelési tájékoztatójának tartalmát megismertem és tudomásul vettem.

Eladó téglalakás leírása

Budapest XX. kerületében, kertvárosi környezetben mégis jól megközelíthető helyen 22 lakásos, liftes, új építésű lakások várják tulajdonosaikat.

A kínálatban 1+1 szobás, 2 szobás valamint nagyobb alapterületű, akár négy szobával rendelkező otthonok is megtalálhatóak.

A lakások kialakításakor egyik fő szempont volt a praktikus elrendezés, a legtöbb lakáshoz erkély vagy terasz tartozik. A biztonságos, telken belüli parkolás felszíni beállók kialakításával lesz biztosítva, melynek megvásárlása opcionális.

A változatos méretű és alaprajzú lakástípusok között az első lakást kereső fiatalok, vagy a nagycsaládosok is megtalálhatják álmaik otthonát. Tervezett átadás: 2025. I. negyedév
M262198

Referencia szám: M262198-ZE

Hirdetés feltöltve: 2025. 03. 07. Utoljára módosítva: 2026. 01. 13.

3 szobás téglalakások ára Budapesten

Ebből az összehasonlításból megtudhatod, hogyan viszonyul a lakás ára a környékbeli téglalakások átlagos árához. Ez nem azt jelenti, hogy ennyivel olcsóbb vagy drágább, mint amennyit a lakás ér, hanem hogy ennyivel tér el a környékbeli átlagtól.

Ennek a m² ára
XX. kerület m² ár
Budapest m² ár
1197 e Ft
1086 e Ft -10%
1695 e Ft 29%
Ennek az ára
XX. kerület átlagár
Budapest átlagár
79 M Ft m Ft
70.1 m Ft -13%
130.8 m Ft 40%

Az ingatlan elhelyezkedése

Cím: Budapest, XX. kerület, 3. emelet

Eladó ingatlanok a környékről

Eladó téglalakás
Eladó téglalakás

VII. kerület, Belső Erzsébetváros, Erzsébet körút

160 M Ft
3 szoba
88 m2
Eladó téglalakás
Eladó téglalakás

XX. kerület

65.9 M Ft
3 szoba
48 m2
Eladó téglalakás
Eladó téglalakás

XX. kerület, Erzsébetfalva

148 M Ft
4 szoba
126 m2
Eladó téglalakás
Eladó téglalakás

V. kerület, Belváros, Belgrád rakpart

78 M Ft
1 + 1 szoba
42 m2
Eladó téglalakás
Eladó téglalakás

IV. kerület

87.5 M Ft
3 szoba
60 m2
Eladó téglalakás
Eladó téglalakás

III. kerület, Óbudaisziget, Folyamőr utca

69.9 M Ft
1 szoba
25 m2
Eladó garázs
Eladó garázs

XIII. kerület, Angyalföld

6.5 M Ft
12 m2
Eladó téglalakás
Eladó téglalakás

XX. kerület

73.5 M Ft
3 szoba
66 m2
Eladó téglalakás
Eladó téglalakás

XIV. kerület, Kiszugló, Kövér Lajos utca

168 M Ft
3 + 1 szoba
84 m2
Eladó téglalakás
Eladó téglalakás

XX. kerület

23 M Ft
1 szoba
32 m2
Eladó téglalakás
Eladó téglalakás

XX. kerület

65.9 M Ft
3 szoba
48 m2
Eladó téglalakás
Eladó téglalakás

XX. kerület

59.9 M Ft
2 szoba
62 m2
Eladó téglalakás
Eladó téglalakás

XX. kerület

65.9 M Ft
3 szoba
48 m2
Eladó téglalakás
Eladó téglalakás

XI. kerület, Lágymányos, Móricz Zsigmond körtér

89.5 M Ft
2 szoba
52 m2
Eladó családi ház
Eladó családi ház

XXII. kerület, Budafok, Baross utca

222 M Ft
6 + 1 szoba
200 m2
Eladó téglalakás
Eladó téglalakás

XX. kerület

85 M Ft
3 szoba
70 m2
Eladó téglalakás
Eladó téglalakás

VIII. kerület, Palotanegyed, Rákóczi út

185 M Ft
5 szoba
121 m2
Eladó téglalakás
Eladó téglalakás

XX. kerület

68 M Ft
3 szoba
61 m2
Eladó téglalakás
Eladó téglalakás

I. kerület, Krisztinaváros, Feszty Árpád utca

78.99 M Ft
1 szoba
28 m2
Eladó téglalakás
Eladó téglalakás

XI. kerület, Gellérthegy, Gyula utca

130 M Ft
2 szoba
56 m2
Eladó téglalakás
Eladó téglalakás

XX. kerület

148 M Ft
4 szoba
126 m2
Eladó családi ház
Eladó családi ház

II. kerület

224.8 M Ft
5 szoba
240 m2
Eladó téglalakás
Eladó téglalakás

III. kerület, Óbuda, Szomolnok utca

89.9 M Ft
2 + 2 szoba
96 m2
Eladó téglalakás
Eladó téglalakás

XX. kerület, Pacsirtatelep

83.9 M Ft
3 szoba
100 m2

Falusi CSOK ingatlanok

Eladó családi ház
Eladó családi ház

Csengőd

42 M Ft
2 szoba
81 m2
Eladó családi ház
Eladó családi ház

Bozsok

290 M Ft
6 szoba
370 m2
Eladó családi ház
Eladó családi ház

Palkonya

137 M Ft
7 szoba
160 m2
Eladó családi ház
Eladó családi ház

Tokod

89 M Ft
6 szoba
187 m2
Eladó családi ház
Eladó családi ház

Törtel

59.9 M Ft
3 szoba
66 m2
Eladó családi ház
Eladó családi ház

Egyed

24.9 M Ft
2 + 1 szoba
56 m2
Eladó családi ház
Eladó családi ház

Parád

15 M Ft
3 szoba
90 m2
Eladó családi ház
Eladó családi ház

Kenyeri

39.9 M Ft
3 szoba
94 m2