Aerogate Homes

Eladó téglalakás
Budapest, XVIII. kerület, 3. emelet

+ 2 kép 1/5
139 200 000 Ft139.2 M Ft 1 450 000 Ft/m2
3 + 1 szoba
96 m²
3. emelet
építés éve:2025

Részletes adatok

Fűtés: Egyéb
Emelet: 3. emelet
Energetikai besorolás: Nem adta meg a hirdető

Az OTP Bank lakáshitel ajánlataFizetett hirdetés

+36 70 599
Marczi Aletta
Szigetszentmiklós OTP Ip

Érdekel az OTP Bank kedvezményes lakáshitel ajánlata? *

* A kérdésre „Igen” válasz bejelölése esetén, az „Üzenet küldése” gombra kattintva kijelentem, hogy az OTP Bank Nyrt. Adatkezelési tájékoztatójának tartalmát megismertem és tudomásul vettem.

Eladó téglalakás leírása

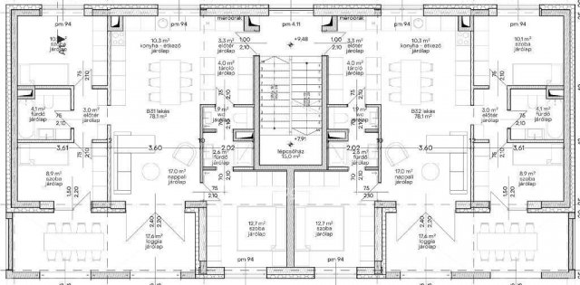
Pestszentlőrinc központjában találd meg előértékesítéssel épülő álmaid társasházi lakását ajándék konyhabútorral, ahol a modern, energiatakarékos hőszivattyús rendszerű kényelem és a luxus egységben van! Várható átadás 2026. év vége. Az épület 3 szintes, 12 lakásos, az eladó 96 m2-es lakások az. 1., 2. és 3. emeleten találhatóak, az árban a konyhabútor és a tároló is benne van. Az ingatlankomplexum eladója, aki egyben az építője is, széles körű referenciával bír és magas minőségű ingatlanokat épít. A belső udvarban mélyített parkolásra van lehetősége kizárólagos használattal a vásárlóknak, az udvar parkosított lesz. A lakások kialakítása tágas tereivel és beosztásával a modern igényeknek, a műszaki tartalom a kor magas szintű elvárásainak felel meg. Csokra, csok pluszra alkalmas, kedvezményes pénzügyi konstrukciókkal, felkészült hitelügyintézőkkel, értékesítőkkel segítünk a sikeres vásárlásban.
Referenciaszám: M299672

Az energetikai tanúsítvány készítése folyamatban van, amint rendelkezésre áll, úgy azzal a hirdetés frissítésre kerül.

Hirdetés feltöltve: 2026. 04. 18. Utoljára módosítva: 2026. 05. 10.

4 szobás téglalakások ára Budapesten

Ebből az összehasonlításból megtudhatod, hogyan viszonyul a lakás ára a környékbeli téglalakások átlagos árához. Ez nem azt jelenti, hogy ennyivel olcsóbb vagy drágább, mint amennyit a lakás ér, hanem hogy ennyivel tér el a környékbeli átlagtól.

Ennek a m² ára
XVIII. kerület m² ár
Budapest m² ár
1450 e Ft
1117 e Ft -30%
1757 e Ft 17%
Ennek az ára
XVIII. kerület átlagár
Budapest átlagár
139.2 M Ft m Ft
115.8 m Ft -20%
183.6 m Ft 24%

Az ingatlan elhelyezkedése

Cím: Budapest, XVIII. kerület, 3. emelet

Eladó ingatlanok a környékről

XVIII. kerület
Eladó téglalakás

Budapest, XVIII. kerület

139.9 M Ft
4 szoba
117 m²
XVIII. kerület
Eladó téglalakás

Budapest, XVIII. kerület

139.2 M Ft
3 + 1 szoba
96 m²
XVIII. kerület
Eladó téglalakás

Budapest, XVIII. kerület

139.2 M Ft
3 + 1 szoba
96 m²
XVIII. kerület
Eladó téglalakás

Budapest, XVIII. kerület

139.2 M Ft
3 + 1 szoba
96 m²
XVIII. kerület
Eladó téglalakás

Budapest, XVIII. kerület

90 M Ft
3 szoba
73 m²
XVIII. kerület
Eladó téglalakás

Budapest, XVIII. kerület

98 M Ft
3 szoba
72 m²
XVIII. kerület
Eladó téglalakás

Budapest, XVIII. kerület

139.9 M Ft
4 szoba
117 m²
XIV. kerület
Eladó téglalakás

Budapest, XIV. kerület

79.9 M Ft
1 + 1 szoba
46 m²
XVIII. kerület
Eladó téglalakás

Budapest, XVIII. kerület

139.2 M Ft
3 + 1 szoba
96 m²
XVIII. kerület
Eladó téglalakás

Budapest, XVIII. kerület

131.9 M Ft
4 szoba
162 m²
XX. kerület
Eladó családi ház

Budapest, XX. kerület

81.99 M Ft
3 szoba
83 m²
XVIII. kerület
Eladó panellakás

Budapest, XVIII. kerület

64.9 M Ft
2 szoba
53 m²
XVIII. kerület
Eladó téglalakás

Budapest, XVIII. kerület

139.2 M Ft
3 + 1 szoba
96 m²
XXI. kerület
Eladó panellakás

Budapest, XXI. kerület

63 M Ft
2 szoba
48 m²
XII. kerület
Eladó téglalakás

Budapest, XII. kerület

152 M Ft
3 szoba
82 m²
XVIII. kerület
Eladó panellakás

Budapest, XVIII. kerület

64.9 M Ft
2 szoba
53 m²
IV. kerület
Eladó panellakás

Budapest, IV. kerület

74.6 M Ft
3 szoba
60 m²
XVIII. kerület
Eladó téglalakás

Budapest, XVIII. kerület

98 M Ft
3 szoba
72 m²
XX. kerület
Eladó családi ház

Budapest, XX. kerület

96 M Ft
4 szoba
112 m²
XX. kerület
Eladó családi ház

Budapest, XX. kerület

169.9 M Ft
5 szoba
130 m²
XVIII. kerület
Eladó téglalakás

Budapest, XVIII. kerület

139.2 M Ft
3 + 1 szoba
96 m²
XVIII. kerület
Eladó téglalakás

Budapest, XVIII. kerület

69.9 M Ft
4 szoba
78 m²
XVIII. kerület
Eladó téglalakás

Budapest, XVIII. kerület

58.9 M Ft
2 + 1 szoba
63 m²
XVIII. kerület
Eladó téglalakás

Budapest, XVIII. kerület

84.9 M Ft
3 szoba
65 m²

Falusi CSOK ingatlanok

Onga
Eladó családi ház

Onga

81.9 M Ft
4 szoba
109 m²
Vanyola
Eladó családi ház

Vanyola

22.9 M Ft
2 + 1 szoba
93 m²
Mihályháza
Eladó családi ház

Mihályháza

2.9 M Ft
1 szoba
42 m²
Sárosd
Eladó családi ház

Sárosd

21.9 M Ft
3 szoba
86 m²
Kiszombor, Óbébai utca
Eladó családi ház

Kiszombor

32.9 M Ft
4 szoba
140 m²
Berzence
Eladó családi ház

Berzence

40 M Ft
3 szoba
233 m²
Bak
Eladó családi ház

Bak

55 M Ft
5 szoba
140 m²
Köveskál
Eladó családi ház

Köveskál

215 M Ft
4 szoba
100 m²