Kedves Felhasználónk! Rendszerfrissítés miatt az oldalunk 2026. február 9-én 12 órától várhatóan 20 óráig nem lesz elérhető. Köszönjük megértésed!
City Pearl

Eladó téglalakás
Budapest, VIII. kerület, Palotanegyed, 1. emelet

+ 17 kép 1/20
84 900 000 Ft84.9 M Ft 1 306 154 Ft/m2
2 szoba
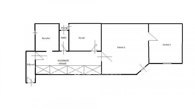
65 m2
1. emelet
építés éve:1940

Részletes adatok

Állapot: Újszerű
Fűtés: Gázkonvektor
Emelet: 1. emelet
Extrák: Lift
Energetikai besorolás: Nem adta meg a hirdető
Zenga Premier

Friss hirdetések, amiket nem találsz meg más ingatlankereső portálon.

Fedezd fel elsőként a Zenga Premier címkés eladó ingatlanokat!

További részletek a zenga.hu-n

Az OTP Bank lakáshitel ajánlataFizetett hirdetés

+36 30 426
Dr. Jakus Péter
referens

Érdekel az OTP Bank kedvezményes lakáshitel ajánlata? *

* A kérdésre „Igen” válasz bejelölése esetén, az „Üzenet küldése” gombra kattintva kijelentem, hogy az OTP Bank Nyrt. Adatkezelési tájékoztatójának tartalmát megismertem és tudomásul vettem.

Eladó téglalakás leírása

***Az Otthon Start Program 3%-os fix kamatozású hitel feltételeinek megfelelő lakás!***
*** Fiatal párok, egyetemisták figyelem!!! ***

Eladó Budapest VIII. kerület, Nagykörúton belül, a Palotanegyedben, egy 65 nm alapterületű, 2 szobás, I. emeleti, szépen felújított, belső udvarra néző, belvárosi, társasházi lakás.

Az ingatlan egy rendezett, liftes, polgári társasházban található. A társasház csendes, biztonságos, szépen karbantartott. A lakóközösség fiatalos és barátságos, emiatt az emberek szeretnek ott élni.

A lakás 2 éve teljeskörű felújításon esett át, aminek köszönhetően a teljes villany-, és vízvezeték csere megtörtént. A lakás nagy ablakainak köszönhetően szép, világos, napfényes. A szobák tágas belső terekkel rendelkeznek, az otthon melegét gázkonvektor biztosítja, a meleg vizet villanybojler állítja elő. A nappaliba légkondicionáló lett felszerelve. A fotókon látható teljes berendezés a vételár részét képezi.

A lakás kiváló adottságokkal rendelkezik, és tökéletes választás lehet fiatalok számára is első otthonnak, illetve főiskolásoknak/egyetemistáknak egyaránt.

A közös költség 19.500,- Ft. A közüzemi számlák egyedi mérőórák alapján kerülnek elszámolásra.

A lakásban minden kézre áll, az új lakó megkapja a kulcsot és már költözhet is, 1/1 tulajdoni hányadú, tehermentes.

A környék rendkívül jó infrastruktúrával rendelkezik: a közelben számos élelmiszerbolt, Corvin Plaza, óvoda, iskola, orvosi rendelő, posta, bank található. Néhány perces sétatávolságon belül több felsőoktatási intézmény is könnyen elérhető (ELTE, SOTE, Pázmány Péter Katolikus Egyetem, SOTE, Óbudai Egyetem). Emiatt befektetőknek is ideális választás lehet, hiszen könnyen, gyorsan kiadható. A Nagykörút 1 perc sétával elérhető.

Kitűnő elhelyezkedésének köszönhetően tömegközlekedéssel (autóbusz, trolibusz, villamos, metró) a város bármely pontja könnyedén elérhető.

Ajánlom ezt a kedves lakást fiatal pároknak, egyetemistáknak első lakásként.

Szükség esetén teljeskörű ügyintézéssel (kedvezményes hitelkonstrukcióval, megbízható ügyvédi közreműködéssel) állok rendelkezésére!

Amennyiben hirdetésem felkeltette az érdeklődését, kérdése van, illetve szeretné megtekinteni a lakást, kérem, hívjon, bizalommal!

Referenciaszám: M321482

Hirdetés feltöltve: 2026. 02. 05. Utoljára módosítva: 2026. 02. 06.

2 szobás téglalakások ára Budapesten

Ebből az összehasonlításból megtudhatod, hogyan viszonyul a lakás ára a környékbeli téglalakások átlagos árához. Ez nem azt jelenti, hogy ennyivel olcsóbb vagy drágább, mint amennyit a lakás ér, hanem hogy ennyivel tér el a környékbeli átlagtól.

Ennek a m² ára
Palotanegyed m² ár
VIII. kerület m² ár
Budapest m² ár
1306 e Ft
1368 e Ft 5%
1486 e Ft 12%
1698 e Ft 23%
Ennek az ára
Palotanegyed átlagár
VIII. kerület átlagár
Budapest átlagár
84.9 M Ft m Ft
116.8 m Ft 27%
77 m Ft -10%
90.6 m Ft 6%

Az ingatlan elhelyezkedése

Cím: Budapest, VIII. kerület, Palotanegyed, 1. emelet

Eladó ingatlanok a környékről

Eladó téglalakás
Eladó téglalakás

VIII. kerület, Józsefváros, Kálvária utca 16

109.9 M Ft
4 szoba
79 m2
Eladó téglalakás
Eladó téglalakás

VIII. kerület

105.272 M Ft
3 szoba
69 m2
Eladó téglalakás
Eladó téglalakás

VIII. kerület, Józsefváros, Baross utca

95 M Ft
3 + 1 szoba
100 m2
Eladó téglalakás
Eladó téglalakás

VIII. kerület, Futó utca

89.051 M Ft
2 szoba
49 m2
Eladó téglalakás
Eladó téglalakás

V. kerület, Lipótváros

700 M Ft
4 szoba
200 m2
Eladó családi ház
Eladó családi ház

XIV. kerület, Alsórákos

63 M Ft
3 szoba
59 m2
Eladó téglalakás
Eladó téglalakás

VIII. kerület, Palotanegyed, Békési utca

38.8 M Ft
1 szoba
33 m2
Eladó ipari ingatlan
Eladó ipari ingatlan

IV. kerület, Újpest

95 M Ft
95 m2
Eladó téglalakás
Eladó téglalakás

VIII. kerület, Futó utca

85.521 M Ft
1 szoba
39 m2
Eladó üzlethelyiség
Eladó üzlethelyiség

X. kerület

369 M Ft
2300 m²
650 m2
Eladó téglalakás
Eladó téglalakás

VIII. kerület, Józsefváros, Baross utca

199 M Ft
859 m2
Eladó téglalakás
Eladó téglalakás

VIII. kerület, Józsefváros, Kálvária utca 16

79.9 M Ft
2 + 1 szoba
63 m2
Eladó téglalakás
Eladó téglalakás

VIII. kerület, Józsefváros, Kálvária utca 16

67 M Ft
1 + 1 szoba
47 m2
Eladó téglalakás
Eladó téglalakás

XI. kerület, Gellérthegy

999 M Ft
4 szoba
219 m2
Eladó téglalakás
Eladó téglalakás

VIII. kerület, Futó utca

101.495 M Ft
2 szoba
49 m2
Eladó ipari ingatlan
Eladó ipari ingatlan

VIII. kerület, Józsefváros

1500 M Ft
379 m²
2883 m2
Eladó téglalakás
Eladó téglalakás

VIII. kerület, Futó utca

74.721 M Ft
1 szoba
34 m2
Eladó panellakás
Eladó panellakás

XXI. kerület

48.8 M Ft
2 szoba
46 m2
Eladó téglalakás
Eladó téglalakás

VIII. kerület, Futó utca

79.12 M Ft
1 szoba
39 m2
Eladó téglalakás
Eladó téglalakás

VIII. kerület, Józsefváros, 8. Népszínház u

79.8 M Ft
3 + 1 szoba
100 m2
Eladó téglalakás
Eladó téglalakás

VII. kerület, Külső Erzsébetváros, Rottenbiller utca

66.9 M Ft
2 szoba
48 m2
Eladó téglalakás
Eladó téglalakás

XXIII. kerület

109.9 M Ft
3 szoba
72 m2
Eladó téglalakás
Eladó téglalakás

VIII. kerület, Józsefváros, Népszínház u

63 M Ft
1 szoba
42 m2
Eladó téglalakás
Eladó téglalakás

VIII. kerület, Futó utca

104.667 M Ft
2 szoba
43 m2

Falusi CSOK ingatlanok

Eladó családi ház
Eladó családi ház

Kaposgyarmat

695 M Ft
6 szoba
610 m2
Eladó téglalakás
Eladó téglalakás

Balatonszemes

123.3 M Ft
2 szoba
70 m2
Eladó családi ház
Eladó családi ház

Abádszalók

70 M Ft
3 szoba
100 m2
Eladó családi ház
Eladó családi ház

Újhartyán

89.9 M Ft
4 szoba
99 m2
Eladó családi ház
Eladó családi ház

Zsámbok

49.9 M Ft
3 + 1 szoba
89 m2
Eladó családi ház
Eladó családi ház

Monyoród

88 M Ft
3 szoba
90 m2
Eladó családi ház
Eladó családi ház

Lippó

10 M Ft
2 + 3 szoba
95 m2
Eladó családi ház
Eladó családi ház

Iváncsa

33.9 M Ft
2 + 1 szoba
72 m2