Avico Greentop

Eladó téglalakás
Budapest, VI. kerület, Külső Terézváros, Rózsa utca 82, 3. emelet

+ 3 kép 1/6
85 920 000 Ft85.92 M Ft 1 790 000 Ft/m2
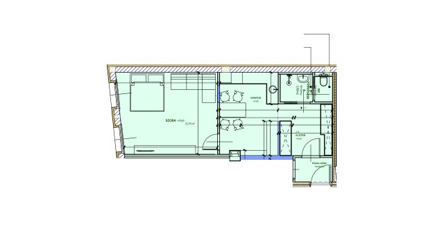
2 szoba
48 m²
3. emelet

Részletes adatok

Fűtés: Egyéb
Emelet: 3. emelet
Energetikai besorolás: A+

Az OTP Bank lakáshitel ajánlataFizetett hirdetés

+36 70 433
Pintácsi Nóra

Érdekel az OTP Bank kedvezményes lakáshitel ajánlata? *

* A kérdésre „Igen” válasz bejelölése esetén, az „Üzenet küldése” gombra kattintva kijelentem, hogy az OTP Bank Nyrt. Adatkezelési tájékoztatójának tartalmát megismertem és tudomásul vettem.

Eladó téglalakás leírása

Közvetlenül a beruházótól eladó Budapest VI. kerületében, az Andrássy út közvetlen közelében, a Rózsa utcában.

A beruházás egy klasszikus belvárosi társasház szintráépítésével valósult meg. A projektben még elérhető ingatlanok a 3. emeleten találhatók, keleti tájolásúak, utcára néznek, világos és jól élhető terekkel. A lakások amerikai konyhás nappalival és külön hálószobával rendelkeznek. A helyiségeket elegáns, falba süllyesztett tolóajtók választják el, így a tér egyszerre nyitott és jól szeparálható. A korszerű hőszivattyús rendszerrel működő padlófűtés és mennyezeti hűtés-fűtés egyenletes hőkomfortot biztosítanak, valamint elektromos redőnyök biztosítják a modern műszaki színvonalat.

A vételár tartalmazza a szanitereket és szerelvényeket. Igény esetén, felár ellenében vállaljuk a konyhabútor egyedi tervezését és kivitelezését is.

A projektben egy berendezett bemutatólakás segít elképzelni az ingatlanokban rejlő lehetőségeket. Áprilisban használatba vételi, májusban pedig külön albetéttel befejeződik a beruházás.

Csendes utcában, mégis kiváló lokációval, minden elérhető távolságban, a közelben üzletek, éttermek és gyógyszertár.

Hirdetés feltöltve: 2026. 03. 24. Utoljára módosítva: 2026. 03. 24.

2 szobás téglalakások ára Budapesten

Ebből az összehasonlításból megtudhatod, hogyan viszonyul a lakás ára a környékbeli téglalakások átlagos árához. Ez nem azt jelenti, hogy ennyivel olcsóbb vagy drágább, mint amennyit a lakás ér, hanem hogy ennyivel tér el a környékbeli átlagtól.

Ennek a m² ára
Külső Terézváros m² ár
VI. kerület m² ár
Budapest m² ár
1790 e Ft
2041 e Ft 12%
1834 e Ft 2%
1709 e Ft -5%
Ennek az ára
Külső Terézváros átlagár
VI. kerület átlagár
Budapest átlagár
85.92 M Ft m Ft
118.6 m Ft 28%
146.9 m Ft 42%
120.3 m Ft 29%

Az ingatlan elhelyezkedése

Cím: Budapest, VI. kerület, Külső Terézváros, Rózsa utca 82, 3. emelet

Eladó ingatlanok a környékről

XVIII. kerület, Liptáktelep
Eladó téglalakás

Budapest, XVIII. kerület

97.5 M Ft
3 szoba
72 m²
XVII. kerület
Eladó családi ház

Budapest, XVII. kerület

179 M Ft
5 szoba
150 m²
XVIII. kerület, Szemeretelep
Eladó családi ház

Budapest, XVIII. kerület

140 M Ft
2 szoba
118 m²
VI. kerület, Belső Terézváros, Teréz körút
Eladó téglalakás

Budapest, VI. kerület

51 M Ft
1 szoba
49 m²
VI. kerület, Belső Terézváros, Andrássy út
Eladó téglalakás

Budapest, VI. kerület

315.744 M Ft
5 szoba
160 m²
VI. kerület
Eladó téglalakás

Budapest, VI. kerület

125.724 M Ft
3 szoba
77 m²
XVIII. kerület, Szent Imre kertváros
Eladó családi ház

Budapest, XVIII. kerület

99.9 M Ft
2 szoba
80 m²
VI. kerület, Külső Terézváros, Szondi-Bajnok utca sarkán eladó lakás
Eladó téglalakás

Budapest, VI. kerület

99 M Ft
2 + 1 szoba
84 m²
XIII. kerület
Eladó panellakás

Budapest, XIII. kerület

79.8 M Ft
1 + 2 szoba
58 m²
VI. kerület
Eladó téglalakás

Budapest, VI. kerület

175 M Ft
1 szoba
100 m²
VI. kerület
Eladó téglalakás

Budapest, VI. kerület

315 M Ft
4 szoba
143 m²
XIV. kerület, Herminamező
Eladó iroda

Budapest, XIV. kerület

480 M Ft
7 szoba
250 m²
XVII. kerület, Rákoscsaba
Eladó családi ház

Budapest, XVII. kerület

249.9 M Ft
4 szoba
157 m²
VI. kerület
Eladó téglalakás

Budapest, VI. kerület

315 M Ft
4 szoba
143 m²
VI. kerület, Belső Terézváros, Bajcsy-Zsilinszky út
Eladó téglalakás

Budapest, VI. kerület

223.125 M Ft
4 szoba
114 m²
VI. kerület, Szondi utca
Eladó téglalakás

Budapest, VI. kerület

130 M Ft
2 + 1 szoba
99 m²
II. kerület
Eladó téglalakás

Budapest, II. kerület

275 M Ft
4 szoba
97 m²
VI. kerület, Külső Terézváros, Podmaniczky utca
Eladó téglalakás

Budapest, VI. kerület

260 M Ft
3 szoba
117 m²
VI. kerület, Belső Terézváros, Andrássy út
Eladó téglalakás

Budapest, VI. kerület

329.9 M Ft
146 m²
VI. kerület
Eladó téglalakás

Budapest, VI. kerület

79.9 M Ft
2 szoba
50 m²
VIII. kerület
Eladó téglalakás

Budapest, VIII. kerület

109.9 M Ft
2 + 1 szoba
64 m²
XVI. kerület, Cinkota
Eladó téglalakás

Budapest, XVI. kerület

33.9 M Ft
1 + 1 szoba
45 m²
X. kerület, Újhegy
Eladó panellakás

Budapest, X. kerület

67.9 M Ft
3 szoba
68 m²
XVIII. kerület, Liptáktelep
Eladó családi ház

Budapest, XVIII. kerület

105 M Ft
2 szoba
90 m²

Falusi CSOK ingatlanok

Balatonszemes, Ady E. utca 6
Eladó téglalakás

Balatonszemes

108.9 M Ft
2 + 1 szoba
63 m²
Balatonszemes
Eladó téglalakás

Balatonszemes

125.2 M Ft
2 szoba
50 m²
Szilvásvárad
Eladó családi ház

Szilvásvárad

104.9 M Ft
5 szoba
340 m²
Törtel
Eladó családi ház

Törtel

5.9 M Ft
2 szoba
45 m²
Balatonakali
Eladó ikerház

Balatonakali

498 M Ft
4 szoba
94 m²
Ostffyasszonyfa
Eladó családi ház

Ostffyasszonyfa

37.9 M Ft
5 szoba
494 m²
Újlengyel
Eladó családi ház

Újlengyel

110 M Ft
4 szoba
121 m²
Fülöpszállás
Eladó családi ház

Fülöpszállás

23.6 M Ft
3 szoba
115 m²