Oasis Residence

Eladó panellakás
Budapest, XXI. kerület, 10. emelet

+ 7 kép 1/10
69 900 000 Ft69.9 M Ft 1 205 172 Ft/m2
1 + 2 szoba
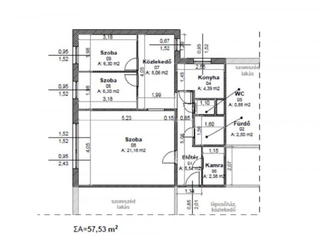
58 m²
10. emelet
építés éve:1980

Részletes adatok

Állapot: Átlagos
Fűtés: Távfűtés
Emelet: 10. emelet
Extrák: Lift
Energetikai besorolás: Nem adta meg a hirdető

Az OTP Bank lakáshitel ajánlataFizetett hirdetés

+36 20 965
Puha Katalin
referens

Érdekel az OTP Bank kedvezményes lakáshitel ajánlata? *

* A kérdésre „Igen” válasz bejelölése esetén, az „Üzenet küldése” gombra kattintva kijelentem, hogy az OTP Bank Nyrt. Adatkezelési tájékoztatójának tartalmát megismertem és tudomásul vettem.

Eladó panellakás leírása

Figyelem! Eladó Budapest 21. kerületében, Csepel kedvelt, központi részén egy 2025-ben teljes felújításon átesett 10. emeleti, 58 nm-es, 1+ 2 fél szobás, erkélyes panelprogramos lakás. Az ingatlan magasfényű, elegáns, gépesített konyhabútorral és jacuzzi káddal rendelkezik. A közelben minden megtalálható, ami az ott lakók életét komfortossá teszi- iskola, ovi, orvosi rendelő, bevásárlási és sportolási lehetőségek, piac, posta, gyógyszertár, játszóterek, kávézó, pékség, parkolási lehetőség...A Ráckevei-Soroksári Dunaág is a közelben, így remek hétvégi kikapcsolódást nyújthat a természet kedvelőinek. A közlekedés kiváló: több buszjárat, a HÉV végállomása is csak pár perces sétára találhatók. Kényelmes otthon lehet fiatal pár, gyermekes család, akár újrakezdők számára is, de nagyszerű befektetési lehetőséggé is válhat! Az ingatlan 1/1-es tulajdon, tehermentes. Amennyiben hirdetésem felkeltette érdeklődését, hívjon bizalommal a hét bármely napján! Teljes körű ügyintézéssel állunk megbízóink és vevőink rendelkezésére! A kínálatunkból választott ingatlan finanszírozásához kedvezményes hitelkonstrukciókat kínálunk. Az adásvételi szerződés megkötéséhez igény szerint megbízható ügyvédi közreműködést biztosítunk, és segítséget nyújtunk az adásvételhez kapcsolódó ügyek intézéséhez.

Hirdetés feltöltve: 2026. 04. 01. Utoljára módosítva: 2026. 04. 02.

3 szobás panellakások ára Budapesten

Ebből az összehasonlításból megtudhatod, hogyan viszonyul a lakás ára a környékbeli panellakások átlagos árához. Ez nem azt jelenti, hogy ennyivel olcsóbb vagy drágább, mint amennyit a lakás ér, hanem hogy ennyivel tér el a környékbeli átlagtól.

Ennek a m² ára
XXI. kerület m² ár
Budapest m² ár
1205 e Ft
1092 e Ft -10%
1235 e Ft 2%
Ennek az ára
XXI. kerület átlagár
Budapest átlagár
69.9 M Ft m Ft
63.6 m Ft -10%
75.8 m Ft 8%

Az ingatlan elhelyezkedése

Cím: Budapest, XXI. kerület, 10. emelet

Eladó ingatlanok a környékről

XXI. kerület
Eladó panellakás

Budapest, XXI. kerület

58.9 M Ft
2 szoba
55 m²
XXII. kerület
Eladó téglalakás

Budapest, XXII. kerület

87 M Ft
3 szoba
58 m²
XXI. kerület
Eladó panellakás

Budapest, XXI. kerület

58.9 M Ft
2 szoba
55 m²
XIII. kerület, Angyalföld, Dévai utca Lőportár 17
Eladó téglalakás

Budapest, XIII. kerület

87.733 M Ft
2 szoba
43 m²
IX. kerület
Eladó téglalakás

Budapest, IX. kerület

89.9 M Ft
3 szoba
84 m²
XXI. kerület
Eladó panellakás

Budapest, XXI. kerület

51.9 M Ft
2 szoba
46 m²
XXI. kerület
Eladó panellakás

Budapest, XXI. kerület

58.9 M Ft
2 szoba
55 m²
XIII. kerület, Angyalföld, Dévai utca Lőportár 17
Eladó téglalakás

Budapest, XIII. kerület

87.31 M Ft
2 szoba
42 m²
XXI. kerület
Eladó panellakás

Budapest, XXI. kerület

58.9 M Ft
2 szoba
55 m²
XIII. kerület, Angyalföld, Dévai utca Lőportár 17
Eladó téglalakás

Budapest, XIII. kerület

71.205 M Ft
1 szoba
32 m²
XIV. kerület
Eladó panellakás

Budapest, XIV. kerület

64.9 M Ft
2 szoba
46 m²
XXI. kerület
Eladó panellakás

Budapest, XXI. kerület

51.9 M Ft
2 szoba
46 m²
XXI. kerület, Csepel belváros, Kossuth
Eladó panellakás

Budapest, XXI. kerület

66 M Ft
3 szoba
73 m²
XIII. kerület, Angyalföld, Dévai utca Lőportár 17
Eladó téglalakás

Budapest, XIII. kerület

83.73 M Ft
2 szoba
40 m²
XIII. kerület, Angyalföld, Dévai utca Lőportár 17
Eladó téglalakás

Budapest, XIII. kerület

71.205 M Ft
1 szoba
32 m²
XXI. kerület
Eladó panellakás

Budapest, XXI. kerület

51.9 M Ft
2 szoba
46 m²
XIII. kerület, Angyalföld, Dévai utca Lőportár 17
Eladó téglalakás

Budapest, XIII. kerület

85.811 M Ft
2 szoba
42 m²
XXI. kerület
Eladó panellakás

Budapest, XXI. kerület

64.9 M Ft
1 + 2 szoba
63 m²
XXI. kerület
Eladó panellakás

Budapest, XXI. kerület

58.9 M Ft
2 szoba
55 m²
XXI. kerület
Eladó panellakás

Budapest, XXI. kerület

58 M Ft
1 + 2 szoba
58 m²
XIII. kerület, Angyalföld, Dévai utca Lőportár 17
Eladó téglalakás

Budapest, XIII. kerület

164.8 M Ft
4 szoba
93 m²
XIII. kerület, Angyalföld, Dévai utca Lőportár 17
Eladó téglalakás

Budapest, XIII. kerület

139.405 M Ft
3 szoba
77 m²
XXI. kerület
Eladó panellakás

Budapest, XXI. kerület

58.9 M Ft
2 szoba
55 m²
XXI. kerület
Eladó panellakás

Budapest, XXI. kerület

18 M Ft
1 + 2 szoba
52 m²

Falusi CSOK ingatlanok

Mezőkeresztes
Eladó ikerház

Mezőkeresztes

13.5 M Ft
2 + 1 szoba
70 m²
Kenyeri
Eladó családi ház

Kenyeri

39.9 M Ft
3 szoba
94 m²
Bag
Eladó családi ház

Bag

16.9 M Ft
6 szoba
160 m²
Baks
Eladó családi ház

Baks

18.9 M Ft
3 szoba
118 m²
Gesztely
Eladó családi ház

Gesztely

12.5 M Ft
3 szoba
65 m²
Örkény
Eladó családi ház

Örkény

46.9 M Ft
1 + 1 szoba
59 m²
Hosszúhetény, Petőfi Sándor utca 10
Eladó családi ház

Hosszúhetény

20.65 M Ft
4 + 2 szoba
133 m²
Hegyeshalom, Margaréta utca 12
Eladó téglalakás

Hegyeshalom

32.89 M Ft
1 szoba
27 m²