Avico Greentop

Eladó iroda
Nyíregyháza, földszint

+ 2 kép 1/5
92 000 000 Ft92 M Ft 989 247 Ft/m2
3 szoba
93 m²
földszint
építés éve:2006

Részletes adatok

Fűtés: Gázkazán
Emelet: földszint
Energetikai besorolás: Nem adta meg a hirdető

Az OTP Bank lakáshitel ajánlataFizetett hirdetés

+36 30 308
Gáva Aliz
Favorit Ingatlan iroda

Érdekel az OTP Bank kedvezményes lakáshitel ajánlata? *

* A kérdésre „Igen” válasz bejelölése esetén, az „Üzenet küldése” gombra kattintva kijelentem, hogy az OTP Bank Nyrt. Adatkezelési tájékoztatójának tartalmát megismertem és tudomásul vettem.

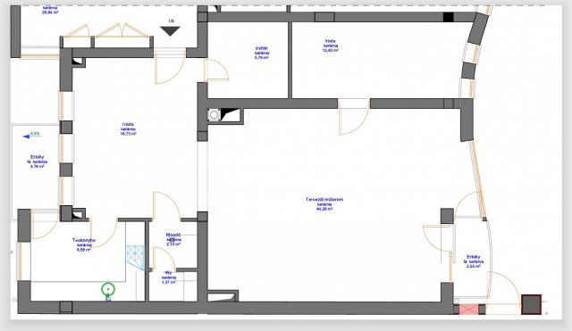
Eladó iroda leírása

Nyíregyházán, Dózsa György utca közelében tégla építésű társasház 1. emeletén kínálunk megvételre egy 93 m²-es irodát, kiváló elhelyezkedéssel.
 
Az ingatlan főbb jellemzői:

3 különálló irodahelyiség
irattár
teakonyha
mosdó
2 erkély

Műszaki adottságok:

Gáz-cirkó fűtés, egyedileg szabályozható, költséghatékony működéssel
3 db hűtő-fűtő klíma, amely egész évben kellemes hőmérsékletet biztosít
Műanyag nyílászárók, jó hő- és hangszigeteléssel
Járólap és parketta burkolatok

Az ingatlan tehermentes, így a vásárlás és az ügyintézés gyorsan lebonyolítható.
 
Parkolás:
A társasház zárt udvarában 2 saját autóbeálló áll rendelkezésre.
 
Berendezéssel együtt is megvásárolható, melynek vételára 95 millió Ft.
A berendezés tartalmazza:

8 db számítógép
tervnyomtató
íróasztalok
beépített szekrények
kiépített informatikai rendszer
saját szerver

Amennyiben felkeltette érdeklődését várom hívását!Az ingatlan azonosítója: 69969Érdeklődni: +36303089895

Hirdetés feltöltve: 2026. 03. 12. Utoljára módosítva: 2026. 03. 12.

Irodák ára Nyíregyházán

Ebből az összehasonlításból megtudhatod, hogyan viszonyul a lakás ára a környékbeli irodák átlagos árához. Ez nem azt jelenti, hogy ennyivel olcsóbb vagy drágább, mint amennyit a lakás ér, hanem hogy ennyivel tér el a környékbeli átlagtól.

Ennek a m² ára
Nyíregyháza m² ár
989 e Ft
672 e Ft -47%
Ennek az ára
Nyíregyháza átlagár
92 M Ft m Ft
75.3 m Ft -22%

Az ingatlan elhelyezkedése

Cím: Nyíregyháza, földszint

Eladó irodák a környékről

Nyíregyháza
Eladó iroda

Nyíregyháza

660.4 M Ft
9717 m²
1829 m²
Nyíregyháza
Eladó iroda

Nyíregyháza

5.9 M Ft
44 m²
Nyíregyháza
Eladó iroda

Nyíregyháza

45.4 M Ft
47 m²
Nyíregyháza
Eladó iroda

Nyíregyháza

35 M Ft
116 m²
Vásárosnamény
Eladó iroda

Vásárosnamény

290 M Ft
0 m²
Nyíregyháza
Eladó iroda

Nyíregyháza

35 M Ft
116 m²
Kisvárda
Eladó iroda

Kisvárda

24.9 M Ft
68 m²
Nyírpazony
Eladó iroda

Nyírpazony

187 M Ft
4 szoba
131 m²
Nyíregyháza
Eladó iroda

Nyíregyháza

73 M Ft
2 + 1 szoba
67 m²
Nyíregyháza
Eladó iroda

Nyíregyháza

39.9 M Ft
6 szoba
110 m²
Nyíregyháza
Eladó iroda

Nyíregyháza

39.9 M Ft
55 m²
Nyíregyháza
Eladó iroda

Nyíregyháza

15.9 M Ft
35 m²
Nyíregyháza
Eladó iroda

Nyíregyháza

93.99 M Ft
3 szoba
93 m²
Nyíregyháza
Eladó iroda

Nyíregyháza

84.9 M Ft
6 szoba
210 m²
Nyíregyháza
Eladó iroda

Nyíregyháza

28.5 M Ft
35 m²
Nyíregyháza
Eladó iroda

Nyíregyháza

45.4 M Ft
47 m²
Nyíregyháza
Eladó iroda

Nyíregyháza

42.9 M Ft
2 szoba
60 m²
Nyíregyháza
Eladó iroda

Nyíregyháza

98 M Ft
211 m²
Nyíregyháza, Belváros, Selyem utca 37
Eladó iroda

Nyíregyháza

27.5 M Ft
3 szoba
69 m²
Nyíregyháza
Eladó iroda

Nyíregyháza

330 M Ft
5900 m²
500 m²
Nyíregyháza
Eladó iroda

Nyíregyháza

98 M Ft
211 m²
Nyíregyháza
Eladó iroda

Nyíregyháza

37.32 M Ft
43 m²
Nyíregyháza
Eladó iroda

Nyíregyháza

125 M Ft
1 szoba
211 m²
Nyíregyháza
Eladó iroda

Nyíregyháza

73 M Ft
2 + 1 szoba
67 m²

Falusi CSOK ingatlanok

Vasboldogasszony
Eladó családi ház

Vasboldogasszony

85 M Ft
6 szoba
180 m²
Pannonhalma
Eladó családi ház

Pannonhalma

129.7 M Ft
5 szoba
142 m²
Magyarszék
Eladó családi ház

Magyarszék

48.5 M Ft
3 + 1 szoba
86 m²
Marcaltő
Eladó családi ház

Marcaltő

26 M Ft
3 szoba
103 m²
Vásárosdombó
Eladó családi ház

Vásárosdombó

14.99 M Ft
2 szoba
69 m²
Pécsvárad
Eladó családi ház

Pécsvárad

140 M Ft
4 + 1 szoba
119 m²
Újszilvás
Eladó családi ház

Újszilvás

25.9 M Ft
3 szoba
73 m²
Vilonya
Eladó családi ház

Vilonya

135 M Ft
4 szoba
202 m²