Aerogate Homes

Eladó ikerház
Újhartyán

Figyelem!

Ez az ingatlan a 2019.07.01-től induló falusi CSOK által támogatott településen található

118 990 000 Ft118.99 M Ft 1 122 547 Ft/m2
5 szoba
106 m²
építés éve:2026

Részletes adatok

Telekméret: 600 m2
Fűtés: Egyéb
Energetikai besorolás: Nem adta meg a hirdető

Az OTP Bank lakáshitel ajánlataFizetett hirdetés

3629769731
Paksi Anita
referens

Érdekel az OTP Bank kedvezményes lakáshitel ajánlata? *

* A kérdésre „Igen” válasz bejelölése esetén, az „Üzenet küldése” gombra kattintva kijelentem, hogy az OTP Bank Nyrt. Adatkezelési tájékoztatójának tartalmát megismertem és tudomásul vettem.

Eladó ikerház leírása

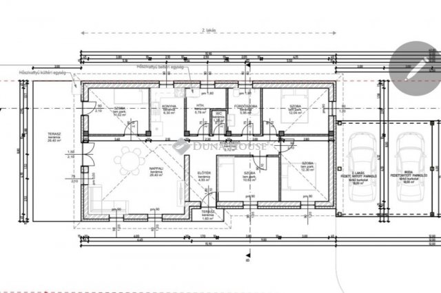
CSOK+, 3%-os hitelre alkalmas, Új építésű garázskapcsolatos ikerház 600 nm-es telken eladó!!!Újhartyánon, központhoz közel mégis kertvárosi, hangulatos utcában lévő nettó 106,43 nm-es csodás otthon várja leendő tulajdonosát.Várható kulcsrakész átadás: 2026 utolsó negyedév! Referencia házak megtekinthetők!Műszaki tartalom:- 30-as Porotherm tégla- 15 cm-es homlokzati szigetelés- 30 cm födém szigetelés- ,lapos barna beton cserép- H-tarifa- 3 rétegű hőszigetelt üveggel ellátott műanyag nyílászárók- Fűtés, víz 8kw monoblokkos hőszivattyúval, villanybojler- mindenhol padlófűtés- riasztó rendszer alapszerelés kábelezés- Hideg/meleg burkolatok 8000 Ft/nm áron választhatókA közelben óvoda, iskola, bevásárlási lehetőség sétatávolságra, M5-ös autópálya autóval pár perc alatt elérhetők!Amennyiben hitelre lenne szüksége, kiváló, szakmailag felkészült kollégánkkal a Credipasstól Ingyenes és Bankfüggetlen szaktanácsadás keretén belül biztosan megtalálják a lehető legkedvezőbb, személyre szabott konstrukciót.További kérdés esetén állok szíves rendelkezésükre hétvégén is, a megadott elérhetőségek bármelyikén.

Hirdetés feltöltve: 2026. 04. 02.

Az ingatlan elhelyezkedése

Cím: Újhartyán

Eladó ingatlanok a környékről

Nagytarcsa
Eladó ikerház

Nagytarcsa

119.9 M Ft
4 szoba
103 m²
Cegléd
Eladó téglalakás

Cegléd

57.3 M Ft
2 szoba
55 m²
Kiskunlacháza
Eladó családi ház

Kiskunlacháza

100 M Ft
3 + 2 szoba
151 m²
Mogyoród
Eladó ikerház

Mogyoród

135 M Ft
5 szoba
137 m²
Albertirsa
Eladó ikerház

Albertirsa

118 M Ft
4 szoba
164 m²
Szentendre
Eladó ikerház

Szentendre

718 M Ft
10 + 2 szoba
578 m²
Mogyoród
Eladó ikerház

Mogyoród

135 M Ft
5 szoba
137 m²
Kiskunlacháza
Eladó ikerház

Kiskunlacháza

54.9 M Ft
2 szoba
47 m²
Cegléd
Eladó családi ház

Cegléd

72.99 M Ft
3 szoba
73 m²
Érd
Eladó családi ház

Érd

100 M Ft
2 + 1 szoba
80 m²
Szentendre
Eladó családi ház

Szentendre

350 M Ft
4 szoba
300 m²
Solymár
Eladó telek

Solymár

433.117 M Ft
9619 m²
0 m²
Gyál
Eladó családi ház

Gyál

39.9 M Ft
1 szoba
79 m²
Cegléd
Eladó mezogazdasagi ingatlan

Cegléd

21.9 M Ft
18 m²
Kiskunlacháza
Eladó családi ház

Kiskunlacháza

89.9 M Ft
3 szoba
100 m²
Pécel
Eladó ikerház

Pécel

149.9 M Ft
5 szoba
306 m²
Farmos, Paskomi út 2
Eladó családi ház

Farmos

28.9 M Ft
3 szoba
63 m²
Dabas
Eladó családi ház

Dabas

0.09 M Ft
4 szoba
95 m²
Úri
Eladó családi ház

Úri

42.9 M Ft
3 szoba
58 m²
Pilisborosjenő, Vár u.14
Eladó hotel

Pilisborosjenő

219 M Ft
14 szoba
521 m²
Cegléd
Eladó családi ház

Cegléd

118 M Ft
5 + 2 szoba
240 m²
Ceglédbercel
Eladó családi ház

Ceglédbercel

79.99 M Ft
5 szoba
140 m²
Mende, Péceli utca
Eladó családi ház

Mende

128 M Ft
5 szoba
187 m²
Szentendre
Eladó ikerház

Szentendre

359 M Ft
5 + 1 szoba
289 m²

Falusi CSOK ingatlanok

Sződ
Eladó családi ház

Sződ

102.9 M Ft
4 szoba
92 m²
Lengyeltóti
Eladó családi ház

Lengyeltóti

59.9 M Ft
5 szoba
205 m²
Nyírtura
Eladó családi ház

Nyírtura

69.9 M Ft
4 szoba
120 m²
Bag
Eladó családi ház

Bag

110 M Ft
5 szoba
320 m²
Újszilvás
Eladó családi ház

Újszilvás

49.9 M Ft
8 szoba
310 m²
Cserépfalu
Eladó családi ház

Cserépfalu

58 M Ft
6 szoba
184 m²
Kocsér
Eladó családi ház

Kocsér

27.9 M Ft
4 szoba
108 m²
Badacsonytördemic
Eladó családi ház

Badacsonytördemic

90 M Ft
3 szoba
130 m²

Falusi CSOK ingatlanok

Verseg
Eladó családi ház

Verseg

35 M Ft
1 + 1 szoba
42 m²
Mikepércs
Eladó sorház

Mikepércs

700 M Ft
45 szoba
1150 m²
Szentmártonkáta
Eladó családi ház

Szentmártonkáta

35 M Ft
3 szoba
70 m²
Bakóca
Eladó családi ház

Bakóca

500 M Ft
13 szoba
1860 m²
Gádoros
Eladó családi ház

Gádoros

25.5 M Ft
4 szoba
140 m²
Berzence, Mátyás utca
Eladó családi ház

Berzence

26.8 M Ft
3 szoba
94 m²
Vatta
Eladó családi ház

Vatta

28.3 M Ft
2 szoba
56 m²
Mezőnyárád
Eladó családi ház

Mezőnyárád

32 M Ft
3 szoba
86 m²