City Pearl

Eladó ikerház
Újhartyán

Figyelem!

Ez az ingatlan a 2019.07.01-től induló falusi CSOK által támogatott településen található

+ 2 kép 1/5
114 990 000 Ft114.99 M Ft 1 084 811 Ft/m2
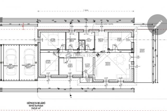
5 szoba
106 m²
építés éve:2026

Részletes adatok

Telekméret: 500 m2
Fűtés: Egyéb
Energetikai besorolás: Nem adta meg a hirdető

Az OTP Bank lakáshitel ajánlataFizetett hirdetés

3629769731
Paksi Anita
referens

Érdekel az OTP Bank kedvezményes lakáshitel ajánlata? *

* A kérdésre „Igen” válasz bejelölése esetén, az „Üzenet küldése” gombra kattintva kijelentem, hogy az OTP Bank Nyrt. Adatkezelési tájékoztatójának tartalmát megismertem és tudomásul vettem.

Eladó ikerház leírása

CSOK+, 3%-os hitelre alkalmas, Új építésű garázskapcsolatos ikerház 500 nm-es telken eladó!!!Újhartyánon, központhoz közel mégis kertvárosi, hangulatos utcában lévő nettó 106,43 nm-es csodás nappali+4 hálószobás otthon várja leendő tulajdonosát.Várható kulcsrakész átadás: 2026 utolsó negyedév! Referencia házak megtekinthetők!Műszaki tartalom:- 30-as Porotherm tégla- 15 cm-es homlokzati szigetelés- 30 cm födém szigetelés- ,lapos barna beton cserép- H-tarifa- 3 rétegű hőszigetelt üveggel ellátott műanyag nyílászárók- Fűtés, víz 8kw monoblokkos hőszivattyúval, villanybojler- mindenhol padlófűtés- riasztó rendszer alapszerelés kábelezés- Hideg/meleg burkolatok 8000 Ft/nm áron választhatókA közelben óvoda, iskola, bevásárlási lehetőség sétatávolságra, M5-ös autópálya autóval pár perc alatt elérhetők!Amennyiben hitelre lenne szüksége, kiváló, szakmailag felkészült kollégánkkal a Credipasstól Ingyenes és Bankfüggetlen szaktanácsadás keretén belül biztosan megtalálják a lehető legkedvezőbb, személyre szabott konstrukciót.További kérdés esetén állok szíves rendelkezésükre hétvégén is, a megadott elérhetőségek bármelyikén.

Hirdetés feltöltve: 2026. 04. 02. Utoljára módosítva: 2026. 04. 22.

Az ingatlan elhelyezkedése

Cím: Újhartyán

Eladó ingatlanok a környékről

Inárcs
Eladó családi ház

Inárcs

39.9 M Ft
2 szoba
55 m²
Vácrátót
Eladó ikerház

Vácrátót

99.9 M Ft
3 + 2 szoba
112 m²
Törökbálint
Eladó családi ház

Törökbálint

697 M Ft
6 szoba
450 m²
Budaörs
Eladó családi ház

Budaörs

165 M Ft
4 szoba
195 m²
Törökbálint
Eladó családi ház

Törökbálint

89.69 M Ft
3 szoba
60 m²
Abony
Eladó családi ház

Abony

58.9 M Ft
5 szoba
128 m²
Szentendre
Eladó ikerház

Szentendre

718 M Ft
10 + 2 szoba
578 m²
Budakalász
Eladó ikerház

Budakalász

249.9 M Ft
5 szoba
154 m²
Pécel, Pécel - kertváros
Eladó ikerház

Pécel

127 M Ft
4 szoba
125 m²
Budakalász
Eladó ikerház

Budakalász

195 M Ft
5 + 2 szoba
170 m²
Érd
Eladó ikerház

Érd

177.7 M Ft
7 szoba
181 m²
Vác
Eladó ikerház

Vác

149.9 M Ft
5 szoba
202 m²
Diósd
Eladó ikerház

Diósd

213.46 M Ft
5 szoba
186 m²
Nagytarcsa
Eladó ikerház

Nagytarcsa

119.9 M Ft
4 szoba
103 m²
Budakeszi
Eladó téglalakás

Budakeszi

118 M Ft
4 szoba
100 m²
Cegléd
Eladó családi ház

Cegléd

24.9 M Ft
2 szoba
70 m²
Újhartyán
Eladó ikerház

Újhartyán

118.99 M Ft
5 szoba
106 m²
Újhartyán
Eladó ikerház

Újhartyán

118.99 M Ft
5 szoba
106 m²
Budaörs
Eladó téglalakás

Budaörs

118 M Ft
5 szoba
134 m²
Herceghalom
Eladó ikerház

Herceghalom

99 M Ft
4 szoba
106 m²
Törökbálint
Eladó családi ház

Törökbálint

285 M Ft
4 szoba
190 m²
Vác
Eladó téglalakás

Vác

51 M Ft
1 + 1 szoba
50 m²
Szigetszentmiklós
Eladó ikerház

Szigetszentmiklós

135 M Ft
3 szoba
110 m²
Pomáz
Eladó ikerház

Pomáz

129.5 M Ft
4 szoba
100 m²

Falusi CSOK ingatlanok

Ugod
Eladó családi ház

Ugod

80 M Ft
4 szoba
121 m²
Balástya, Tanya 86/1
Eladó családi ház

Balástya

8.28 M Ft
1 + 1 szoba
111 m²
Belezna
Eladó családi ház

Belezna

9.5 M Ft
2 szoba
86 m²
Szőlősgyörök
Eladó családi ház

Szőlősgyörök

29.9 M Ft
3 szoba
85 m²
Vilonya
Eladó családi ház

Vilonya

125 M Ft
4 szoba
125 m²
Berzence
Eladó családi ház

Berzence

25 M Ft
2 szoba
200 m²
Hegyeshalom, Margaréta utca 12
Eladó téglalakás

Hegyeshalom

32.89 M Ft
1 szoba
27 m²
Hegyeshalom, Margaréta utca 12
Eladó téglalakás

Hegyeshalom

50.09 M Ft
2 szoba
43 m²

Falusi CSOK ingatlanok

Villány
Eladó családi ház

Villány

31 M Ft
1 szoba
35 m²
Tápiógyörgye
Eladó családi ház

Tápiógyörgye

29.49 M Ft
2 szoba
60 m²
Hosszúhetény, Petőfi Sándor utca 10
Eladó családi ház

Hosszúhetény

20.65 M Ft
4 + 2 szoba
133 m²
Nyírtura
Eladó családi ház

Nyírtura

99 M Ft
4 szoba
280 m²
Verseg
Eladó családi ház

Verseg

38 M Ft
3 szoba
83 m²
Marcalgergelyi
Eladó családi ház

Marcalgergelyi

31 M Ft
2 + 1 szoba
120 m²
Ugod
Eladó családi ház

Ugod

80 M Ft
4 szoba
121 m²
Badacsonytördemic
Eladó családi ház

Badacsonytördemic

90 M Ft
3 szoba
130 m²