Astora Olive Club House

Eladó ikerház
Taksony

+ 2 kép 1/5
115 900 000 Ft115.9 M Ft 1 125 243 Ft/m2
5 szoba
103 m²
építés éve:2026

Részletes adatok

Telekméret: 553 m2
Fűtés: Egyéb
Energetikai besorolás: Nem adta meg a hirdető

Az OTP Bank lakáshitel ajánlataFizetett hirdetés

+36 30 660
Szombay Alfréd
Otp Ingatlanpont Szigetszentmiklós

Érdekel az OTP Bank kedvezményes lakáshitel ajánlata? *

* A kérdésre „Igen” válasz bejelölése esetén, az „Üzenet küldése” gombra kattintva kijelentem, hogy az OTP Bank Nyrt. Adatkezelési tájékoztatójának tartalmát megismertem és tudomásul vettem.

Eladó ikerház leírása

Új otthon Taksony csendes övezetében - fejezd be saját ízlésed szerint!

Egy meghitt, barátságos környezetben vár rád ez a 103 nm-es, egy szintes ikerházi családi otthon, amely a nyugalom szigetét kínálja Taksony családi házas, csendes részén.
A 553 nm-es telek (nyéllel együtt) ideális méretű kertet biztosít, ahol elfér a pihenés, a játék, a kertészkedés - minden, ami a családi élethez hozzátartozik.

És ami a legjobb: az otthont saját ízlésed szerint fejezheted be, így valóban olyan lehet, amilyennek megálmodtad.

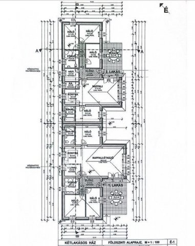
Elrendezés és belső terek:
- Nappali + 4 hálószoba - tökéletes akár nagyobb családnak is
- Amerikai konyhás nappali, egyben az otthon lelke
- Két fürdőszoba (duplakomfort) - reggeli csúcsforgalomnak búcsút inthetsz
- Hatalmas terasz -18,3 nm - közös reggelik, családi grill esték, pihenős délutánok helyszíne

Fűtés, hűtés, gépészet:
- Hőszivattyús rendszer a fűtésre és melegvízre
- Padlófűtés + radiátoros rásegítés
- Klíma előkészítve/telepítve

Opcionálisan kérhető: redőny, riasztó, motoros kapu, mennyezethűtés

Műszaki paraméterek:
- Vasbeton sávalap vízszigeteléssel
- Padozatban 10 cm lépésálló ROCKWOOL
- 30 cm vastag kerámia kézi falazóblokk
- 10 cm homlokzati hőszigetelés
- Fagerendás födém, 30 cm ROCKWOOL kőzetgyapottal
- Tondach tetőcserép
- Műanyag, 3 rétegű üvegezésű ablakok
- Fa belső ajtók

További infók:
- Zárt szennyvízgyűjtő
- Utcafronton új kerítés kerül kialakításra
- Jogilag rendezett, hitelezhető

Az ingatlan osztatlan közös tulajdon, de ügyvédi megosztással lesz átadva az új tulajdonosoknak, ezért gond nélkül HITELEZHETŐ,
és Otthon Start hitelre is alkalmas.

Átadás várható ideje : 2026. július eleje

Egy otthon, amit együtt álmodtok tovább

Egy szeretetteljes családi élet leendő helyszíne.
Fejezd be a saját ízlésed szerint, válaszd ki a burkolatokat, színeket, megoldásokat, és tedd igazán saját otthonoddá.

További információért és mutatás miatt keress bizalommal a hét bármely napján!

Hirdetés feltöltve: 2026. 04. 01. Utoljára módosítva: 2026. 05. 10.

5 szobás ikerházak ára Taksonyon

Ebből az összehasonlításból megtudhatod, hogyan viszonyul a lakás ára a környékbeli ikerházak átlagos árához. Ez nem azt jelenti, hogy ennyivel olcsóbb vagy drágább, mint amennyit a lakás ér, hanem hogy ennyivel tér el a környékbeli átlagtól.

Ennek a m² ára
Taksony m² ár
1125 e Ft
916 e Ft -23%
Ennek az ára
Taksony átlagár
115.9 M Ft m Ft
118.9 m Ft 3%

Az ingatlan elhelyezkedése

Cím: Taksony

Eladó ikerházak a környékről

Taksony
Eladó ikerház

Taksony

134.9 M Ft
5 szoba
187 m²
Mogyoród
Eladó ikerház

Mogyoród

129 M Ft
5 szoba
123 m²
Taksony
Eladó ikerház

Taksony

114.9 M Ft
5 szoba
187 m²
Taksony
Eladó ikerház

Taksony

113.3 M Ft
4 szoba
103 m²
Nagytarcsa
Eladó ikerház

Nagytarcsa

119.9 M Ft
4 szoba
103 m²
Taksony
Eladó ikerház

Taksony

134.9 M Ft
5 szoba
124 m²
Pécel, Pécel - kertváros
Eladó ikerház

Pécel

127 M Ft
4 szoba
125 m²
Vácrátót
Eladó ikerház

Vácrátót

99.9 M Ft
3 + 2 szoba
112 m²
Taksony
Eladó ikerház

Taksony

129.9 M Ft
5 szoba
187 m²
Diósd
Eladó ikerház

Diósd

206.25 M Ft
5 szoba
184 m²
Taksony
Eladó ikerház

Taksony

91 M Ft
4 szoba
91 m²
Taksony
Eladó ikerház

Taksony

129.9 M Ft
5 szoba
187 m²
Taksony
Eladó ikerház

Taksony

114.9 M Ft
4 + 1 szoba
124 m²
Vác
Eladó ikerház

Vác

96.7 M Ft
4 + 1 szoba
126 m²
Vác
Eladó ikerház

Vác

99.7 M Ft
4 + 1 szoba
129 m²
Herceghalom
Eladó ikerház

Herceghalom

99 M Ft
4 szoba
106 m²
Herceghalom
Eladó ikerház

Herceghalom

148 M Ft
5 szoba
134 m²
Mogyoród
Eladó ikerház

Mogyoród

135 M Ft
5 szoba
137 m²
Szentendre
Eladó ikerház

Szentendre

179 M Ft
5 + 1 szoba
147 m²
Pomáz
Eladó ikerház

Pomáz

129.5 M Ft
4 szoba
100 m²
Taksony
Eladó ikerház

Taksony

114.9 M Ft
5 szoba
187 m²
Kiskunlacháza
Eladó ikerház

Kiskunlacháza

44.9 M Ft
2 szoba
39 m²
Taksony
Eladó ikerház

Taksony

113.3 M Ft
4 szoba
103 m²
Mogyoród
Eladó ikerház

Mogyoród

135 M Ft
5 szoba
137 m²

Falusi CSOK ingatlanok

Halimba
Eladó családi ház

Halimba

59.9 M Ft
6 szoba
182 m²
Szigetújfalu
Eladó családi ház

Szigetújfalu

66 M Ft
3 szoba
118 m²
Törtel
Eladó családi ház

Törtel

32.5 M Ft
3 szoba
66 m²
Vértesboglár, Dózsa utca
Eladó családi ház

Vértesboglár

99 M Ft
4 szoba
110 m²
Zagyvarékas, Erdő utca 16
Eladó családi ház

Zagyvarékas

0.1 M Ft
2 szoba
113 m²
Tápiógyörgye
Eladó családi ház

Tápiógyörgye

22.5 M Ft
3 + 1 szoba
83 m²
Tóalmás
Eladó családi ház

Tóalmás

38.9 M Ft
3 szoba
62 m²
Rétság
Eladó téglalakás

Rétság

39.9 M Ft
2 szoba
55 m²