Eladó ikerház
Taksony

+ 9 kép 1/12
129 900 000 Ft129.9 M Ft 1 047 581 Ft/m2
4 + 1 szoba
124 m2
építés éve:2025

Részletes adatok

Telekméret: 1961 m2
Fűtés: Egyéb
Parkolás: Garázs
Energetikai besorolás: Nem adta meg a hirdető

Az OTP Bank lakáshitel ajánlataFizetett hirdetés

+36 30 749
Kalamény Andrea
referens

Érdekel az OTP Bank kedvezményes lakáshitel ajánlata? *

* A kérdésre „Igen” válasz bejelölése esetén, az „Üzenet küldése” gombra kattintva kijelentem, hogy az OTP Bank Nyrt. Adatkezelési tájékoztatójának tartalmát megismertem és tudomásul vettem.

Eladó ikerház leírása

Eladó újépítésű kétszintes ikerház Taksonyban, mely népszerű horgász-, csónakázó- és nyári üdülőhely Pest megyében, a Szigetszentmiklósi járásban, a budapesti agglomerációban. 1961 nm-es telken 2 db kétlakásos lakóépület épül, amely a kényelem és a fenntarthatóság jegyében készül.

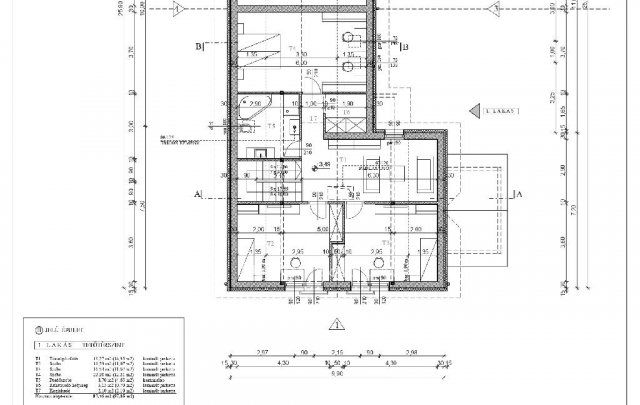
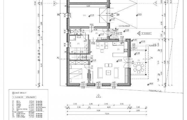
A földszint 67,3 nm, a tetőtér 57,3 nm-es, így a ház 124,6 nm-es. Az alsó szinten helyezkedik el az amerikai konyhás nappali étkezővel (40 nm), egy szoba (11 nm), a háztartási helyiség és egy WC. A felső szinten kapott helyet egy társalgó (18 nm), 3 szoba (12, 12, 12 nm), egy fürdőszoba, és egy ruhatároló helyiség. Ezen kívül a házhoz tartozik még 10 nm-es fedett terasz és egy 21 nm-es garázs is - ezek kapcsolódnak össze.

Műszaki tartalom: - beton alap, tégla falazat, kerámia tetőcserép, 15 cm-es szigetelés - háromrétegű, hőszigetelt műanyag nyílászárók redőnnyel - vizes helyiségekben kerámialap, a szobákban laminált parketta. A fűtése, hűtése és a melegvíz előállítása hőszivattyúval megoldott padlófűtés hőleadással, így otthona energiahatékonnyá válik, egy csepp energia sem vész kárba. Közművek: víz, villany bevezetve, csatorna a telekhatáron. 3*32 A is bevezetésre kerül. Ez a ház magas műszaki tartalommal épül, amely modern és energiatakarékos otthont biztosít.

Finanszírozási lehetőségek: CSOK +, 3%-os Otthon Start és Babaváró hitel
Az árak a lakás elhelyezkedéséből és a telek méretéből adódóan eltérnek:
1. lakás 114,9 M, telek mérete: 273 nm
2. lakás 129,9 M, telek mérete: 558 nm
3. lakás 129,9 M, telek mérete: 558 nm
4. lakás 134,9 M, telek mérete: 572 nm

Taksony a dél-pesti részen, Budapest határától 10 km-re helyezkedik el. Szomszédos települései: Dunaharaszti, Alsónémedi, Bugyi, Dunavarsány, Szigetszentmiklós. A nagyközséget az 510-es út szeli át, az M0-ás autópálya 12 km-re van tőle. A települést a Budapest - Kelebia - vasútvonal érinti.

Árpád unokájának, Taksony fejedelemnek a birtoka volt, innen ered a nagyközség neve. Lakosainak száma 6800 fő. Bölcsőde, német nemzetiségi óvoda ill. iskola várja a tanulni vágyó gyermekeket. Posta, gyermekorvosi rendelő és üzletközpont segíti a mindennapokat. A természetvédelmi terület ritkaságai - a védett úszólápok, a ritka orchideafélék, a gazdag madárvilág, a vízi állatok kiválóan megfigyelhetők itt.

Az emberek ösztönösen vágynak a nyugalomra, a szépre, a természet csöndjére - Taksonyban mindez elérhető.

Ez a ház ideális választás mindazoknak, akik szeretnék a főváros közelségét ötvözni a nyugodt, természetközeli életérzéssel egy impozáns, korszerű otthonban.

Hirdetés feltöltve: 2025. 10. 30. Utoljára módosítva: 2025. 10. 30.

5 szobás ikerházak ára Taksonyon

Ebből az összehasonlításból megtudhatod, hogyan viszonyul a lakás ára a környékbeli ikerházak átlagos árához. Ez nem azt jelenti, hogy ennyivel olcsóbb vagy drágább, mint amennyit a lakás ér, hanem hogy ennyivel tér el a környékbeli átlagtól.

Ennek a m² ára
Taksony m² ár
1048 e Ft
828 e Ft -27%
Ennek az ára
Taksony átlagár
129.9 M Ft m Ft
117.5 m Ft -11%

Az ingatlan elhelyezkedése

Cím: Taksony

Eladó ikerházak a környékről

Eladó ikerház
Eladó ikerház

Vác

175.356 M Ft
5 szoba
165 m2
Eladó ikerház
Eladó ikerház

Dunakeszi

149 M Ft
1 + 4 szoba
127 m2
Eladó ikerház
Eladó ikerház

Üröm

249.9 M Ft
4 szoba
154 m2
Eladó ikerház
Eladó ikerház

Taksony

106.7 M Ft
5 szoba
97 m2
Eladó ikerház
Eladó ikerház

Taksony

112.2 M Ft
4 szoba
102 m2
Eladó ikerház
Eladó ikerház

Taksony

94 M Ft
4 szoba
90 m2
Eladó ikerház
Eladó ikerház

Taksony

103.4 M Ft
4 szoba
94 m2
Eladó ikerház
Eladó ikerház

Solymár

150 M Ft
4 + 2 szoba
252 m2
Eladó ikerház
Eladó ikerház

Taksony

114.4 M Ft
4 szoba
88 m2
Eladó ikerház
Eladó ikerház

Taksony

29.99 M Ft
2 + 1 szoba
93 m2
Eladó ikerház
Eladó ikerház

Rád

100 M Ft
4 szoba
152 m2
Eladó ikerház
Eladó ikerház

Szentendre

179 M Ft
5 + 1 szoba
147 m2
Eladó ikerház
Eladó ikerház

Szentendre, Szentendre

398 M Ft
5 szoba
267 m2
Eladó ikerház
Eladó ikerház

Mogyoród, Fóti út

188 M Ft
6 szoba
182 m2
Eladó ikerház
Eladó ikerház

Diósd

213.46 M Ft
5 szoba
186 m2
Eladó ikerház
Eladó ikerház

Taksony

103.4 M Ft
5 szoba
94 m2
Eladó ikerház
Eladó ikerház

Érd, Érdligeten található utca

64.9 M Ft
4 szoba
112 m2
Eladó ikerház
Eladó ikerház

Taksony

113.3 M Ft
4 szoba
103 m2
Eladó ikerház
Eladó ikerház

Dunaharaszti

124.999 M Ft
4 szoba
105 m2
Eladó ikerház
Eladó ikerház

Taksony

114.4 M Ft
5 szoba
112 m2
Eladó ikerház
Eladó ikerház

Taksony, Taksony

103.4 M Ft
4 szoba
94 m2
Eladó ikerház
Eladó ikerház

Taksony

114.4 M Ft
4 szoba
88 m2
Eladó ikerház
Eladó ikerház

Pécel

149.9 M Ft
5 szoba
306 m2
Eladó ikerház
Eladó ikerház

Vác

175.356 M Ft
5 szoba
165 m2

Falusi CSOK ingatlanok

Eladó családi ház
Eladó családi ház

Tápiógyörgye

6.5 M Ft
2 szoba
62 m2
Eladó családi ház
Eladó családi ház

Tápiógyörgye

34.9 M Ft
3 szoba
85 m2
Eladó családi ház
Eladó családi ház

Tiszaroff

12.9 M Ft
3 szoba
87 m2
Eladó családi ház
Eladó családi ház

Balatonszentgyörgy

66.079 M Ft
4 szoba
126 m2
Eladó ikerház
Eladó ikerház

Balatonkenese

84.99 M Ft
3 szoba
76 m2
Eladó családi ház
Eladó családi ház

Szilsárkány

49.9 M Ft
2 + 1 szoba
90 m2
Eladó családi ház
Eladó családi ház

Balatonfenyves

430 M Ft
4 szoba
274 m2
Eladó családi ház
Eladó családi ház

Tótszerdahely

55.5 M Ft
4 + 2 szoba
160 m2