NapForrás 20 - Buda

Eladó ikerház
Szigetszentmárton

78 000 000 Ft78 M Ft 838 710 Ft/m2
4 szoba
93 m2
építés éve:2025

Részletes adatok

Telekméret: 763 m2
Fűtés: Gázkazán
Közmű: Gáz, Villany, Csatorna
Energetikai besorolás: Nem adta meg a hirdető

Az OTP Bank lakáshitel ajánlataFizetett hirdetés

+36 70 465
Fejes Tímea
referens

Érdekel az OTP Bank kedvezményes lakáshitel ajánlata? *

* A kérdésre „Igen” válasz bejelölése esetén, az „Üzenet küldése” gombra kattintva kijelentem, hogy az OTP Bank Nyrt. Adatkezelési tájékoztatójának tartalmát megismertem és tudomásul vettem.

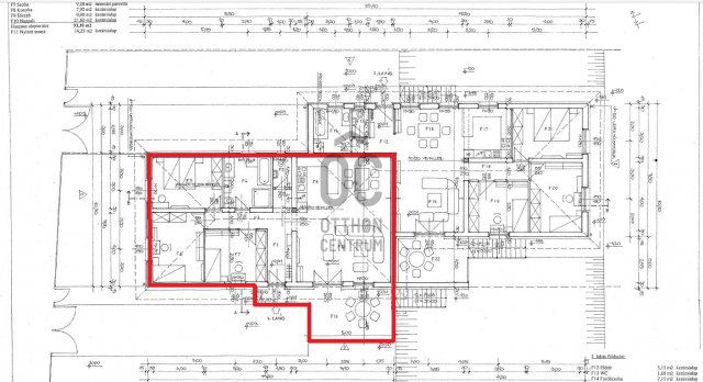
Eladó ikerház leírása

(Otthon Start hitellel is megvásárolható!)

Főbb jellemzők:
- Épület típusa: földszintes, kétlakásos, társasház

- Telek mérete: 763 m²

- Hasznos alapterület összesen: 93,3 m² + 14,25 m² nyitott terasz

- Helyiségek lakásonként: nappali–étkező–konyha egy légtérben, 3 hálószoba, fürdőszoba, külön WC, előtér, közlekedő

- Tető: 25° hajlásszögű kontyolt nyeregtető, sötétbarna betoncserép

- Nyílászárók: háromrétegű hőszigetelő üvegezés, fehér műanyag

- Fűtés és HMV: lakásonkénti kondenzációs gázkazán, központi melegvizes fűtés

- Villamos rendszer: modern, energiatakarékos világítás és dugaljrendszer, napelemrendszer kiépíthető

- Szerkezet: vasbeton sávalap, 30 cm-es tégla teherhordó falak, fagerendás födém, 15 cm EPS hőszigetelés

- Gépkocsi elhelyezés: telken belül biztosított

Elhelyezkedés:
Szigetszentmárton hangulatos, nyugodt kis település a Ráckevei-Duna partján, kiváló közlekedési kapcsolatokkal Budapest irányába is. A csendes utca, családias kertvárosi övezet, barátságos lakóközösséggel, zöld környezettel és fejlődő infrastruktúrával.

Ne hagyja ki ezt a kivételes lehetőséget! Vegye fel velünk a kapcsolatot még ma, és biztosítsa új otthonát – akár Otthon Start hitellel is!

- - -

Adatbázisunkban további több ezer ingatlanból választhat, hívjon bizalommal, hogy megtaláljuk a legmegfelelőbbet!
Teljes körű és díjmentes hitel-ügyintézéssel áll rendelkezésére szakértő kollégánk. Kérje személyre szabott ajánlatunkat!

Hirdetés feltöltve: 2025. 10. 11. Utoljára módosítva: 2025. 11. 02.

4 szobás ikerházak ára Szigetszentmártonban

Ebből az összehasonlításból megtudhatod, hogyan viszonyul a lakás ára a környékbeli ikerházak átlagos árához. Ez nem azt jelenti, hogy ennyivel olcsóbb vagy drágább, mint amennyit a lakás ér, hanem hogy ennyivel tér el a környékbeli átlagtól.

Ennek a m² ára
Szigetszentmárton m² ár
839 e Ft
856 e Ft 2%
Ennek az ára
Szigetszentmárton átlagár
78 M Ft m Ft
75.2 m Ft -4%

Az ingatlan elhelyezkedése

Cím: Szigetszentmárton

Eladó ikerházak a környékről

Eladó ikerház
Eladó ikerház

Szigetszentmárton

99.9 M Ft
5 szoba
106 m2
Eladó ikerház
Eladó ikerház

Szigetszentmárton

87.9 M Ft
5 szoba
117 m2
Eladó ikerház
Eladó ikerház

Érd, Érdligeten található utca

64.9 M Ft
4 szoba
112 m2
Eladó ikerház
Eladó ikerház

Szigetszentmárton

69.9 M Ft
4 szoba
82 m2
Eladó ikerház
Eladó ikerház

Vác

175.356 M Ft
5 szoba
165 m2
Eladó ikerház
Eladó ikerház

Szentendre, Szentendre

398 M Ft
5 szoba
267 m2
Eladó ikerház
Eladó ikerház

Szigetszentmárton

69.9 M Ft
4 szoba
86 m2
Eladó ikerház
Eladó ikerház

Solymár

150 M Ft
4 + 2 szoba
252 m2
Eladó ikerház
Eladó ikerház

Szigetszentmárton

88.9 M Ft
5 szoba
124 m2
Eladó ikerház
Eladó ikerház

Vác

149.9 M Ft
5 szoba
202 m2
Eladó ikerház
Eladó ikerház

Szigetszentmárton

87.9 M Ft
5 szoba
124 m2
Eladó ikerház
Eladó ikerház

Szigetszentmárton

87.9 M Ft
5 szoba
124 m2
Eladó ikerház
Eladó ikerház

Mogyoród, Fóti út

188 M Ft
6 szoba
182 m2
Eladó ikerház
Eladó ikerház

Szigetszentmárton

69.9 M Ft
4 szoba
86 m2
Eladó ikerház
Eladó ikerház

Szigetszentmárton

87.9 M Ft
5 + 1 szoba
124 m2
Eladó ikerház
Eladó ikerház

Pomáz

129.5 M Ft
4 szoba
100 m2
Eladó ikerház
Eladó ikerház

Pécel

149.9 M Ft
5 szoba
306 m2
Eladó ikerház
Eladó ikerház

Szigetszentmárton

87.9 M Ft
5 + 1 szoba
124 m2
Eladó ikerház
Eladó ikerház

Vác

175.356 M Ft
5 szoba
165 m2
Eladó ikerház
Eladó ikerház

Pusztazámor

55 M Ft
10 szoba
470 m2
Eladó ikerház
Eladó ikerház

Dunaharaszti

124.999 M Ft
4 szoba
105 m2
Eladó ikerház
Eladó ikerház

Szigetszentmárton

88.9 M Ft
5 szoba
124 m2
Eladó ikerház
Eladó ikerház

Szigetszentmárton

69.9 M Ft
4 szoba
86 m2
Eladó ikerház
Eladó ikerház

Szigetszentmárton

69.9 M Ft
4 szoba
86 m2

Falusi CSOK ingatlanok

Eladó családi ház
Eladó családi ház

Csanytelek

39.9 M Ft
3 + 1 szoba
131 m2
Eladó családi ház
Eladó családi ház

Cece

23.5 M Ft
2 szoba
56 m2
Eladó családi ház
Eladó családi ház

Villány

65 M Ft
3 szoba
95 m2
Eladó családi ház
Eladó családi ház

Uraiújfalu

15.9 M Ft
4 szoba
100 m2
Eladó családi ház
Eladó családi ház

Vaskút

76 M Ft
3 szoba
120 m2
Eladó családi ház
Eladó családi ház

Gyékényes

29.99 M Ft
3 szoba
151 m2
Eladó családi ház
Eladó családi ház

Mezőfalva

39 M Ft
3 szoba
77 m2
Eladó családi ház
Eladó családi ház

Szigetbecse, Makádi út

49 M Ft
2 szoba
84 m2