NapForrás 20 - Buda

Eladó ikerház
Solymár

+ 4 kép 1/7
207 900 000 Ft207.9 M Ft 1 367 763 Ft/m2
5 szoba
152 m2

Részletes adatok

Telekméret: 490 m2
Fűtés: Egyéb
Parkolás: Garázs
Energetikai besorolás: Nem adta meg a hirdető

Az OTP Bank lakáshitel ajánlataFizetett hirdetés

+36 20 272
Metykó András
Családi Ingatlan

Érdekel az OTP Bank kedvezményes lakáshitel ajánlata? *

* A kérdésre „Igen” válasz bejelölése esetén, az „Üzenet küldése” gombra kattintva kijelentem, hogy az OTP Bank Nyrt. Adatkezelési tájékoztatójának tartalmát megismertem és tudomásul vettem.

Eladó ikerház leírása

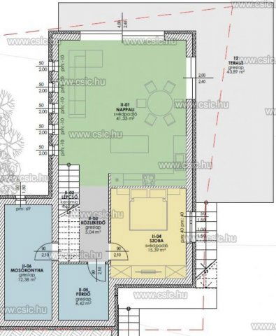
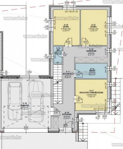
SOLYMÁR KÖZPONTI RÉSZÉN ELADÓ ÚJÉPÍTÉSŰ KULCSRAKÉSZ IKERHÁZ, csendes, panorámás részen. Az ikerház 152 m2 lakóterületű, nappali+4 szobás, 490 m2 önálló telekterülettel, valamint dupla állású garázzsal és 44 m2 terasszal.

A Templomtérhez és az iskolákhoz nagyon közel, mégis csendes zöld privát környezetben,zsákutca végén, KÖZVETLEN PATAKPARTI kertkapcsolattal
épül ez a újépítésű ikerház.

Az épületek teljesen különálló szerkezettel épülnek így nincs áthallás!

Az ELADÓ IKERHÁZ SOLYMÁR magas műszaki követelmények szerint épül, ezért minimális lesz az energiaszükséglete, az alaprajz igény esetén még költségek nélkül változtatható! Közlekedése gyalogosan, busszal és autóval is egyaránt kiváló, a központ pár perc sétával elérhető

Az ELADÓ CSALÁDI IKERHÁZ SOLYMÁR főbb jellemzői:

• nappali, 4 hálószoba, dupla fürdőszoba, háztartási helyiség, gardrób
• önálló elszeparált kertrészek
• Porotherm 38 cm-es tégla + 15 cm szigetelés
• 30 cm tető szigetelés, Bramac beton cserép
• hőszivattyús padlófűtés és melegvízellátás, fancoil hűtéssel
• 3 rétegű fokozott hőszigetelésű műanyag nyílászárók
• 2 autónak garázs hely, közvetlen lakáskapcsolattal
• riasztó, kaputelefon, napelemrendszer előkészítés
• 2 fürdőszoba, vendég WC
• IT és TV kábel kiépítés
• kerítés, elektromos garázskapuval
• választható burkolatok, szaniterek és belső ajtók (műszaki tartalom szerint)
• napelemes közvilágítás

Az ikerház magas műszaki tartalommal épül, az ár kulcsrakész ár, tartalmazza a választható burkolatokat és szanitereket, a konyhabútor nem része az árnak. A kivitelező rugalmas a belső kialakításban, számos referenciával rendelkezik.

Ajánlom ezt az ingatlant azoknak, akik csendes, kellemes, természet és központközeli környezetben szeretnének, új építésű energia takarékos kényelmes otthonban élni. Közlekedése kiváló, közelben iskolák (Waldorf), bölcsőde és óvodák, valamint bevásárlás gyalogosan kényelmesen elérhetőek.

Átadás: Szerződéskötéstől számított 1 év. Hitelügyintézésben tapasztalt független hitelügyintéző kollégám tud segítséget nyújtani.

Hirdetés feltöltve: 2025. 12. 05. Utoljára módosítva: 2026. 01. 13.

5 szobás ikerházak ára Solymáron

Ebből az összehasonlításból megtudhatod, hogyan viszonyul a lakás ára a környékbeli ikerházak átlagos árához. Ez nem azt jelenti, hogy ennyivel olcsóbb vagy drágább, mint amennyit a lakás ér, hanem hogy ennyivel tér el a környékbeli átlagtól.

Ennek a m² ára
Solymár m² ár
1368 e Ft
926 e Ft -48%
Ennek az ára
Solymár átlagár
207.9 M Ft m Ft
155.1 m Ft -34%

Az ingatlan elhelyezkedése

Cím: Solymár

Eladó ikerházak a környékről

Eladó ikerház
Eladó ikerház

Vác

175.356 M Ft
5 szoba
165 m2
Eladó ikerház
Eladó ikerház

Solymár, Kökörcsin utca

178.35 M Ft
5 szoba
123 m2
Eladó ikerház
Eladó ikerház

Vác

175.356 M Ft
5 szoba
165 m2
Eladó ikerház
Eladó ikerház

Solymár

155 M Ft
6 szoba
127 m2
Eladó ikerház
Eladó ikerház

Szentendre

718 M Ft
10 + 2 szoba
578 m2
Eladó ikerház
Eladó ikerház

Solymár

223 M Ft
4 szoba
145 m2
Eladó ikerház
Eladó ikerház

Solymár, Kökörcsin utca

184.15 M Ft
5 szoba
127 m2
Eladó ikerház
Eladó ikerház

Solymár

219.138 M Ft
3 + 1 szoba
184 m2
Eladó ikerház
Eladó ikerház

Pusztazámor

55 M Ft
10 szoba
470 m2
Eladó ikerház
Eladó ikerház

Mogyoród

135 M Ft
5 szoba
137 m2
Eladó ikerház
Eladó ikerház

Veresegyház

145 M Ft
4 szoba
120 m2
Eladó ikerház
Eladó ikerház

Dunakeszi

149 M Ft
1 + 4 szoba
127 m2
Eladó ikerház
Eladó ikerház

Solymár

205 M Ft
5 szoba
147 m2
Eladó ikerház
Eladó ikerház

Vác

96.7 M Ft
4 + 1 szoba
126 m2
Eladó ikerház
Eladó ikerház

Szentendre, Szentendre

398 M Ft
5 szoba
267 m2
Eladó ikerház
Eladó ikerház

Vác

149.9 M Ft
5 szoba
202 m2
Eladó ikerház
Eladó ikerház

Solymár, Kökörcsin utca

219.138 M Ft
5 szoba
184 m2
Eladó ikerház
Eladó ikerház

Vác

99.7 M Ft
4 + 1 szoba
129 m2
Eladó ikerház
Eladó ikerház

Pilisjászfalu

70.563 M Ft
4 szoba
61 m2
Eladó ikerház
Eladó ikerház

Pécel

149.9 M Ft
5 szoba
306 m2
Eladó ikerház
Eladó ikerház

Pécel, Pécel - kertváros

127 M Ft
4 szoba
125 m2
Eladó ikerház
Eladó ikerház

Mogyoród

129 M Ft
5 szoba
123 m2
Eladó ikerház
Eladó ikerház

Diósd

206.25 M Ft
5 szoba
184 m2
Eladó ikerház
Eladó ikerház

Solymár

189 M Ft
4 szoba
199 m2

Falusi CSOK ingatlanok

Eladó családi ház
Eladó családi ház

Orci

119.9 M Ft
6 szoba
200 m2
Eladó családi ház
Eladó családi ház

Ácsteszér

59 M Ft
5 szoba
116 m2
Eladó családi ház
Eladó családi ház

Röszke

99.99 M Ft
4 szoba
122 m2
Eladó családi ház
Eladó családi ház

Hercegszántó

7 M Ft
3 szoba
120 m2
Eladó családi ház
Eladó családi ház

Somlóvásárhely

26.9 M Ft
2 + 1 szoba
102 m2
Eladó téglalakás
Eladó téglalakás

Fertőszentmiklós

52.2 M Ft
3 szoba
89 m2
Eladó családi ház
Eladó családi ház

Nagyhegyes

45.7 M Ft
2 szoba
55 m2
Eladó téglalakás
Eladó téglalakás

Balatonfenyves

20.8 M Ft
2 szoba
69 m2