River Life

Eladó ikerház
Solymár

+ 4 kép 1/7
189 990 000 Ft189.99 M Ft 1 507 857 Ft/m2
4 szoba
126 m2

Részletes adatok

Telekméret: 350 m2
Fűtés: Egyéb
Parkolás: Garázs
Energetikai besorolás: Nem adta meg a hirdető

Az OTP Bank lakáshitel ajánlataFizetett hirdetés

+36 20 365
Kahlesz Noémi
Családi Ingatlan

Érdekel az OTP Bank kedvezményes lakáshitel ajánlata? *

* A kérdésre „Igen” válasz bejelölése esetén, az „Üzenet küldése” gombra kattintva kijelentem, hogy az OTP Bank Nyrt. Adatkezelési tájékoztatójának tartalmát megismertem és tudomásul vettem.

Eladó ikerház leírása

KÖLTÖZZÖN A II. KERÜLET ÉS SOLYMÁR HATÁRÁRA, PRÉMIUM ÚJ ÉPÍTÉSŰ ALACSONY REZSIJŰ IKERHÁZBA

Az építkezés elindult, 1 év múlva beköltözhet új otthonába!
ELADÓ IGÉNYES ÚJ ÉPÍTÉSŰ MODERN IKERHÁZ Solymár Kakukk-hegyen
Az ikerházi lakás három szintes, külön bejárattal rendelkezik. A pinceszinten lévő teremgarázsban lakásonként 2-2 gépkocsi parkolhat, melyből 1-et kötelező megvásárolni, a második beálló opcionális. A belső kétszintes lakásba saját használatú lépcsőház vezet fel.
Nappali + 3 szoba, 2 fürdőszoba nyújt komfortos életteret lakói számára. A hatalmas emeleti hatalmas teraszról élvezhetjük a csendet, a természetet, pazar kilátás nyílik a hegyekre. Az ikerházhoz saját kertrésszel tartozik, ahová a nappaliból juthatunk ki.

Az ELADÓ ÚJ ÉPÍTÉSŰ MODERN IKERHÁZ főbb jellemzői:
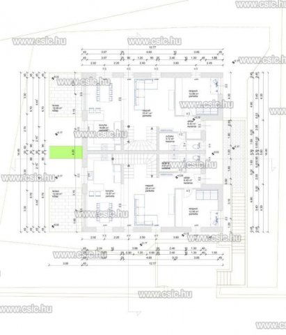
• Hasznos alapterület: 126 m²
• Belső kétszintes elrendezés, jól elkülönülő életterek
• Nappali + 3 szoba
• 2 fürdőszoba
• Saját kertrész és terasz
• Teremgarázs-beálló 2 autó részére
• Praktikus tároló a pinceszinten
• Kiváló lokáció - tömegközlekedés sétatávolságra, Solymár központja, iskolák, óvodák, bevásárlási lehetőségek elérhető közelségben

Műszaki paraméterek:
• Alapozás: talajmechanikai szakvélemény alapján méretezett vasbeton lemezalap
• Teherhordó falak: Porotherm 30 vázkerámia
• Födém: 20 cm monolit vasbeton födém
• Tetőszerkezet: lapostető (rétegrend:UV álló műanyag lemez vízszigetelés, elválasztó réteg, 5-18 cm Bachl PIR LTL2 hőszigetelés alu kasírozással, 10 cm Bachl PIR alu kasírozással, PZ lemez, 20 cm monolit vb födém)
• Válaszfalak: 10 cm vtg. Porotherm válaszfalelem
• Vízszigetelés: Padlóban, talajnedvesség ellen hegesztett bitumenes lemez, illetve a lapostetőn csapadékvíz ellen UV-álló műanyag lemez, a teraszon műanyag lemez vízszigetelés a zuhanyzókban TÍPUSAI
• Hőszigetelés: Padlóban földszinten 10 cm kőzetgyapot, külső falon 15 cm Baumit homlokzati hőszigetelő rendszer, lábazaton Baumit Mosaic Top M329, tetőfödémben 5-18 cm Bachl PIR LTL2 alu kasírozással, a teraszon 10-14 cm Bachl PIR LTL2 hőszigetelés
• Hangszigetelés: Padlóban födémen, illetve a lakások közti elválasztó fal: 30 cm hanggátló Silka mészhomoktégla, fokozott hangszigeteléssel
• Páravédelem: Hőszigetelés alatt 1 rtg Reflex PZ páraáteresztő alátétfólia
• Padlóburkolatok: Kerámia, laminált parketta
• Falburkolatok: Fürdőkben csempe burkolat, egyéb helyeken javított mészvakolat, glettelés, festés, illetve gipszkarton glettelés, festés
• Külső nyílászárók: Műanyag szerkezetű, 3 rétegű fokozott hő- és hangszigetelésű Schüco prémium fix/bukó-nyíló ajtók, ablakok RAL 9010 színben
• Árnyékolás: műanyag redőny, elektromos előkészítéssel
• Belső ajtók: egyéni választás szerint
• Homlokzatképzés: Baumit hőszigetelő vakolatrendszer 0888 és 0986 színekben Baumit Creative Top vékonyvakolattal
• Gépészet: A lakások fűtését 10-12 kW teljesítményű levegő – víz hőszivattyú adja padló és mennyezet felületfűtéssel-hűtéssel, indirekt melegvíz tárolóval cirkuláltatott hálózattal
• A tetőfelületeken lehetőség van napelemek telepítésére is a vevő költségére
• Teraszok: kerámiával burkoltak
• Járdák, bejárók: Beton térkő burkolattal
• Korlátok: Edzett üveg kivitelűek, rozsdamentes tartószerkezettel - rövid oszlopos üvegkorlát
• Prémium szaniterek, Grohe szerelvények
• Hideg-, és melegburkolatok - választhatók 12.000 Ft/m2 értékben
• Okosotthon-előkészítés - Chameleon rendszer alaphálózat kiépítéssel (árnyékolástechnika, világítás, hűtés-fűtés, öntözőrendszer, videó kaputelefon, elektromos autótöltő, napelemes rendszer vezérlésének lehetősége)
• Hörmann automata garázskapu

Az 1. teremgarázs ára 15 MFt - kötelező megvásárolni, a 2. beálló ára 10 MFt.

Várható átadás: 2026. szeptember

Bővebb információért kérem, hívjon a hét bármely napján!
Kollégáink díjmentes, bankfüggetlen hitelügyintézéssel, jogi segítségnyújtással várják

Hirdetés feltöltve: 2025. 11. 05. Utoljára módosítva: 2026. 01. 13.

4 szobás ikerházak ára Solymáron

Ebből az összehasonlításból megtudhatod, hogyan viszonyul a lakás ára a környékbeli ikerházak átlagos árához. Ez nem azt jelenti, hogy ennyivel olcsóbb vagy drágább, mint amennyit a lakás ér, hanem hogy ennyivel tér el a környékbeli átlagtól.

Ennek a m² ára
Solymár m² ár
1508 e Ft
1327 e Ft -14%
Ennek az ára
Solymár átlagár
189.99 M Ft m Ft
204.4 m Ft 7%

Az ingatlan elhelyezkedése

Cím: Solymár

Eladó ikerházak a környékről

Eladó ikerház
Eladó ikerház

Pécel, Pécel - kertváros

127 M Ft
4 szoba
125 m2
Eladó ikerház
Eladó ikerház

Solymár

189 M Ft
4 szoba
171 m2
Eladó ikerház
Eladó ikerház

Solymár

184.15 M Ft
5 szoba
127 m2
Eladó ikerház
Eladó ikerház

Pomáz

129.5 M Ft
4 szoba
100 m2
Eladó ikerház
Eladó ikerház

Vácrátót

94.9 M Ft
2 + 3 szoba
108 m2
Eladó ikerház
Eladó ikerház

Solymár

184.15 M Ft
2 + 2 szoba
127 m2
Eladó ikerház
Eladó ikerház

Diósd

213.46 M Ft
5 szoba
186 m2
Eladó ikerház
Eladó ikerház

Solymár, Kökörcsin utca

219.138 M Ft
5 szoba
184 m2
Eladó ikerház
Eladó ikerház

Solymár

189 M Ft
4 szoba
171 m2
Eladó ikerház
Eladó ikerház

Üröm

220 M Ft
4 szoba
130 m2
Eladó ikerház
Eladó ikerház

Solymár

199 M Ft
5 szoba
147 m2
Eladó ikerház
Eladó ikerház

Szentendre

359 M Ft
5 + 1 szoba
289 m2
Eladó ikerház
Eladó ikerház

Solymár

178.35 M Ft
5 szoba
123 m2
Eladó ikerház
Eladó ikerház

Veresegyház

145 M Ft
4 szoba
120 m2
Eladó ikerház
Eladó ikerház

Solymár, Kökörcsin utca

178.35 M Ft
5 szoba
123 m2
Eladó ikerház
Eladó ikerház

Pécel

149.9 M Ft
5 szoba
306 m2
Eladó ikerház
Eladó ikerház

Solymár

189 M Ft
4 szoba
171 m2
Eladó ikerház
Eladó ikerház

Solymár, Kökörcsin utca

219.138 M Ft
5 szoba
184 m2
Eladó ikerház
Eladó ikerház

Dunakeszi

149 M Ft
1 + 4 szoba
127 m2
Eladó ikerház
Eladó ikerház

Szentendre

179 M Ft
5 + 1 szoba
147 m2
Eladó ikerház
Eladó ikerház

Pusztazámor

55 M Ft
10 szoba
470 m2
Eladó ikerház
Eladó ikerház

Pilisjászfalu

70.563 M Ft
4 szoba
61 m2
Eladó ikerház
Eladó ikerház

Vác

149.9 M Ft
5 szoba
202 m2
Eladó ikerház
Eladó ikerház

Mogyoród

129 M Ft
5 szoba
123 m2

Falusi CSOK ingatlanok

Eladó családi ház
Eladó családi ház

Újhartyán, Gödör utca

81.99 M Ft
3 szoba
110 m2
Eladó téglalakás
Eladó téglalakás

Balatonszemes

91.5 M Ft
2 szoba
60 m2
Eladó családi ház
Eladó családi ház

Vaszar

45.9 M Ft
3 szoba
120 m2
Eladó családi ház
Eladó családi ház

Táborfalva

49 M Ft
3 szoba
77 m2
Eladó családi ház
Eladó családi ház

Gersekarát

21.9 M Ft
3 szoba
80 m2
Eladó családi ház
Eladó családi ház

Elek

18 M Ft
4 szoba
180 m2
Eladó családi ház
Eladó családi ház

Kaposgyarmat

695 M Ft
6 szoba
610 m2
Eladó családi ház
Eladó családi ház

Egyed

24.9 M Ft
2 + 1 szoba
56 m2