Stay Family Park

Eladó ikerház
Őrbottyán

1/1
105 000 000 Ft105 M Ft 853 659 Ft/m2
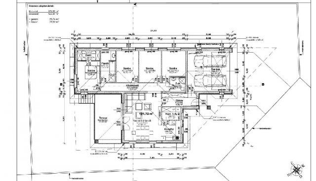
5 szoba
123 m2
építés éve:2026

Részletes adatok

Telekméret: 825 m2
Fűtés: Egyéb
Parkolás: Garázs
Energetikai besorolás: Nem adta meg a hirdető

Az OTP Bank lakáshitel ajánlataFizetett hirdetés

+36 20 220
Szabó Sándor
Budapest XIII. kerület Pannónia utca 25 - OTP Ingatlanpont Iroda

Érdekel az OTP Bank kedvezményes lakáshitel ajánlata? *

* A kérdésre „Igen” válasz bejelölése esetén, az „Üzenet küldése” gombra kattintva kijelentem, hogy az OTP Bank Nyrt. Adatkezelési tájékoztatójának tartalmát megismertem és tudomásul vettem.

Eladó ikerház leírása

MEGÚJULÓ ENERGIÁVAL ÉPŰLŐ INGATLANOK ŐRBOTTYÁNBAN!

Őrbottyán központi részén megvételre kínálok újonnan épülő ingatlanokat!

A házak magas műszaki tartalommal épülnek.

- 3 rétegű nyílászárók
- Bramac tetőcserép
- 12 cm szigetelés
- H-tarifás óra
- napelem előkészítés
- riasztórendszer kiállás
- hőszivattyús fűtés, padlófűtés
Az ingatlanok kulcsrakész állapotban kerülnek átadásra, az építés jelenlegi fázisában lehetőség van a burkolatok, szaniterek, beltéri, illetve bejárati ajtó kiválasztására, a műszaki tartalomban megjelölt összegig. Az udvaron belül térburkolattal ellátott parkolóhely kerül kialakításra.
Egyes házaknál teljes mértékben a vevő igényeire szabható az ingatlan, akár a tervek is módosíthatóak!
Az ingatlan kiváló infrastruktúrával rendelkezik mindössze 30-40 percre helyezkedik el a belvárostól. A környéken megtalálható, óvoda iskola, orvosi rendelő, gyógyszertár, bevásárlási lehetőség.

Ha további kérdése lenne vagy szeretné megtekinteni az ingatlant hívjon bizalommal akár hétvégén is!

Hirdetés feltöltve: 2025. 10. 08. Utoljára módosítva: 2025. 11. 02.

5 szobás ikerházak ára Őrbottyánban

Ebből az összehasonlításból megtudhatod, hogyan viszonyul a lakás ára a környékbeli ikerházak átlagos árához. Ez nem azt jelenti, hogy ennyivel olcsóbb vagy drágább, mint amennyit a lakás ér, hanem hogy ennyivel tér el a környékbeli átlagtól.

Ennek a m² ára
Őrbottyán m² ár
854 e Ft
803 e Ft -6%
Ennek az ára
Őrbottyán átlagár
105 M Ft m Ft
97.5 m Ft -8%

Az ingatlan elhelyezkedése

Cím: Őrbottyán

Eladó ikerházak a környékről

Eladó ikerház
Eladó ikerház

Őrbottyán, Kálvária utca

88.95 M Ft
4 szoba
90 m2
Eladó ikerház
Eladó ikerház

Őrbottyán, Kálvária utca

90.75 M Ft
4 szoba
93 m2
Eladó ikerház
Eladó ikerház

Őrbottyán

110 M Ft
1 + 4 szoba
116 m2
Eladó ikerház
Eladó ikerház

Érd, Érdligeten található utca

64.9 M Ft
4 szoba
112 m2
Eladó ikerház
Eladó ikerház

Őrbottyán

79.8 M Ft
3 szoba
112 m2
Eladó ikerház
Eladó ikerház

Vác

175.356 M Ft
5 szoba
165 m2
Eladó ikerház
Eladó ikerház

Veresegyház

145 M Ft
4 szoba
120 m2
Eladó ikerház
Eladó ikerház

Szentendre

359 M Ft
5 szoba
289 m2
Eladó ikerház
Eladó ikerház

Pomáz

129.5 M Ft
4 szoba
100 m2
Eladó ikerház
Eladó ikerház

Őrbottyán

84.9 M Ft
5 szoba
117 m2
Eladó ikerház
Eladó ikerház

Őrbottyán

110 M Ft
5 szoba
117 m2
Eladó ikerház
Eladó ikerház

Őrbottyán

89.2 M Ft
3 szoba
117 m2
Eladó ikerház
Eladó ikerház

Vác

94.5 M Ft
4 + 1 szoba
126 m2
Eladó ikerház
Eladó ikerház

Tahitótfalu

88.9 M Ft
4 szoba
110 m2
Eladó ikerház
Eladó ikerház

Őrbottyán

89.5 M Ft
4 szoba
93 m2
Eladó ikerház
Eladó ikerház

Őrbottyán

92.5 M Ft
5 szoba
132 m2
Eladó ikerház
Eladó ikerház

Őrbottyán

98 M Ft
5 szoba
135 m2
Eladó ikerház
Eladó ikerház

Őrbottyán

89.5 M Ft
4 szoba
93 m2
Eladó ikerház
Eladó ikerház

Vác

149.9 M Ft
5 szoba
202 m2
Eladó ikerház
Eladó ikerház

Pécel, Pécel - kertváros

127 M Ft
4 szoba
125 m2
Eladó ikerház
Eladó ikerház

Dunakeszi

149 M Ft
1 + 4 szoba
127 m2
Eladó ikerház
Eladó ikerház

Őrbottyán

97.5 M Ft
4 + 1 szoba
158 m2
Eladó ikerház
Eladó ikerház

Őrbottyán

89.2 M Ft
3 szoba
117 m2
Eladó ikerház
Eladó ikerház

Őrbottyán

88.95 M Ft
4 szoba
81 m2

Falusi CSOK ingatlanok

Eladó téglalakás
Eladó téglalakás

Balatonszemes

125.2 M Ft
2 szoba
50 m2
Eladó ikerház
Eladó ikerház

Balatonakali

129 M Ft
4 szoba
145 m2
Eladó sorház
Eladó sorház

Szob

16 M Ft
2 szoba
45 m2
Eladó családi ház
Eladó családi ház

Tab, Rózsadomb utca

79 M Ft
3 szoba
93 m2
Eladó családi ház
Eladó családi ház

Lovászpatona

15.9 M Ft
3 szoba
72 m2
Eladó családi ház
Eladó családi ház

Tiszaalpár

39.5 M Ft
2 szoba
67 m2
Eladó családi ház
Eladó családi ház

Kelebia

13 M Ft
3 szoba
76 m2
Eladó családi ház
Eladó családi ház

Ágasegyháza

29.7 M Ft
3 szoba
75 m2