Eladó ikerház
Őrbottyán

1/1
99 800 000 Ft99.8 M Ft 811 382 Ft/m2
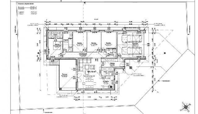
5 szoba
123 m2
építés éve:2026

Részletes adatok

Telekméret: 734 m2
Fűtés: Egyéb
Parkolás: Garázs
Energetikai besorolás: Nem adta meg a hirdető

Az OTP Bank lakáshitel ajánlataFizetett hirdetés

+36 20 220
Szabó Sándor
Budapest XIII. kerület Pannónia utca 25 - OTP Ingatlanpont Iroda

Érdekel az OTP Bank kedvezményes lakáshitel ajánlata? *

* A kérdésre „Igen” válasz bejelölése esetén, az „Üzenet küldése” gombra kattintva kijelentem, hogy az OTP Bank Nyrt. Adatkezelési tájékoztatójának tartalmát megismertem és tudomásul vettem.

Eladó ikerház leírása

MEGÚJULÓ ENERGIÁVAL ÉPŰLŐ INGATLANOK ŐRBOTTYÁNBAN!

Őrbottyán központi részén megvételre kínálok újonnan épülő ingatlanokat!

A házak magas műszaki tartalommal épülnek.

- 3 rétegű nyílászárók
- Bramac tetőcserép
- 12 cm szigetelés
- H-tarifás óra
- napelem előkészítés
- riasztórendszer kiállás
- hőszivattyús fűtés, padlófűtés
Az ingatlanok kulcsrakész állapotban kerülnek átadásra, az építés jelenlegi fázisában lehetőség van a burkolatok, szaniterek, beltéri, illetve bejárati ajtó kiválasztására, a műszaki tartalomban megjelölt összegig. Az udvaron belül térburkolattal ellátott parkolóhely kerül kialakításra.
Egyes házaknál teljes mértékben a vevő igényeire szabható az ingatlan, akár a tervek is módosíthatóak!
Az ingatlan kiváló infrastruktúrával rendelkezik mindössze 30-40 percre helyezkedik el a belvárostól. A környéken megtalálható, óvoda iskola, orvosi rendelő, gyógyszertár, bevásárlási lehetőség.

Ha további kérdése lenne vagy szeretné megtekinteni az ingatlant hívjon bizalommal akár hétvégén is!

Hirdetés feltöltve: 2025. 10. 08. Utoljára módosítva: 2025. 10. 08.

5 szobás ikerházak ára Őrbottyánban

Ebből az összehasonlításból megtudhatod, hogyan viszonyul a lakás ára a környékbeli ikerházak átlagos árához. Ez nem azt jelenti, hogy ennyivel olcsóbb vagy drágább, mint amennyit a lakás ér, hanem hogy ennyivel tér el a környékbeli átlagtól.

Ennek a m² ára
Őrbottyán m² ár
811 e Ft
814 e Ft 0%
Ennek az ára
Őrbottyán átlagár
99.8 M Ft m Ft
97.7 m Ft -2%

Az ingatlan elhelyezkedése

Cím: Őrbottyán

Eladó ikerházak a környékről

Eladó ikerház
Eladó ikerház

Pécel, Pécel - kertváros

127 M Ft
4 szoba
125 m2
Eladó ikerház
Eladó ikerház

Őrbottyán

110 M Ft
5 szoba
113 m2
Eladó ikerház
Eladó ikerház

Veresegyház

145 M Ft
4 szoba
120 m2
Eladó ikerház
Eladó ikerház

Őrbottyán

97.5 M Ft
4 + 1 szoba
158 m2
Eladó ikerház
Eladó ikerház

Őrbottyán

110 M Ft
1 + 4 szoba
116 m2
Eladó ikerház
Eladó ikerház

Vác

149.9 M Ft
5 szoba
202 m2
Eladó ikerház
Eladó ikerház

Kiskunlacháza

89.1 M Ft
4 szoba
99 m2
Eladó ikerház
Eladó ikerház

Őrbottyán

89.2 M Ft
3 szoba
117 m2
Eladó ikerház
Eladó ikerház

Solymár

150 M Ft
4 + 2 szoba
252 m2
Eladó ikerház
Eladó ikerház

Őrbottyán

89.5 M Ft
4 szoba
93 m2
Eladó ikerház
Eladó ikerház

Szentendre

359 M Ft
5 szoba
289 m2
Eladó ikerház
Eladó ikerház

Szentendre, Szentendre

398 M Ft
5 szoba
267 m2
Eladó ikerház
Eladó ikerház

Őrbottyán

110 M Ft
5 szoba
140 m2
Eladó ikerház
Eladó ikerház

Vác

92.9 M Ft
4 + 1 szoba
126 m2
Eladó ikerház
Eladó ikerház

Őrbottyán

90.75 M Ft
4 szoba
81 m2
Eladó ikerház
Eladó ikerház

Vác

175.356 M Ft
5 szoba
165 m2
Eladó ikerház
Eladó ikerház

Őrbottyán

94.9 M Ft
5 szoba
150 m2
Eladó ikerház
Eladó ikerház

Őrbottyán, Kálvária utca

90.75 M Ft
4 szoba
93 m2
Eladó ikerház
Eladó ikerház

Őrbottyán

92.5 M Ft
4 + 1 szoba
116 m2
Eladó ikerház
Eladó ikerház

Őrbottyán

90.75 M Ft
4 szoba
82 m2
Eladó ikerház
Eladó ikerház

Őrbottyán

89.2 M Ft
3 szoba
117 m2
Eladó ikerház
Eladó ikerház

Érd, Érdliget - Kutyavár, Érdligeten található utca

64.9 M Ft
4 szoba
112 m2
Eladó ikerház
Eladó ikerház

Vác

175.356 M Ft
5 szoba
165 m2
Eladó ikerház
Eladó ikerház

Őrbottyán

89.5 M Ft
4 szoba
93 m2

Falusi CSOK ingatlanok

Eladó családi ház
Eladó családi ház

Makád

140 M Ft
4 szoba
79 m2
Eladó családi ház
Eladó családi ház

Mezőfalva

39 M Ft
3 szoba
77 m2
Eladó családi ház
Eladó családi ház

Balatonkenese

99.8 M Ft
5 szoba
138 m2
Eladó családi ház
Eladó családi ház

Tihany

345 M Ft
6 szoba
347 m2
Eladó családi ház
Eladó családi ház

Fonyód, Liszt Ferenc utca

69 M Ft
4 szoba
95 m2
Eladó családi ház
Eladó családi ház

Balatonkeresztúr

117 M Ft
3 + 2 szoba
154 m2
Eladó családi ház
Eladó családi ház

Baktalórántháza

32.9 M Ft
6 szoba
194 m2
Eladó családi ház
Eladó családi ház

Tápiószőlős

34 M Ft
1 + 2 szoba
85 m2