Avico Greentop

Eladó ikerház
Őrbottyán

83 500 000 Ft83.5 M Ft 773 148 Ft/m2
5 szoba
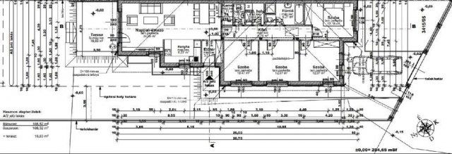
108 m2
építés éve:2024

Részletes adatok

Telekméret: 942 m2
Fűtés: Geotermikus
Energetikai besorolás: Nem adta meg a hirdető

Az OTP Bank lakáshitel ajánlataFizetett hirdetés

+36 30 353
Sasaran-Kereki Katalin
referens

Érdekel az OTP Bank kedvezményes lakáshitel ajánlata? *

* A kérdésre „Igen” válasz bejelölése esetén, az „Üzenet küldése” gombra kattintva kijelentem, hogy az OTP Bank Nyrt. Adatkezelési tájékoztatójának tartalmát megismertem és tudomásul vettem.

Eladó ikerház leírása

MEGÚJULÓ ENERGIÁVAL ÉPŰLŐ INGATLANOK ŐRBOTTYÁNBAN!

Őrbottyán központi részén megvételre kínálok újonnan épülő ingatlanokat!

A házak magas műszaki tartalommal épülnek.

- 3 rétegű nyílászárók
- Bramac tetőcserép
- 12 cm szigetelés
- H-tarifás óra
- napelem előkészítés
- riasztórendszer kiállás
- hőszivattyús fűtés, padlófűtés
Az ingatlanok kulcsrakész állapotban kerülnek átadásra, az építés jelenlegi fázisában lehetőség van a burkolatok, szaniterek, beltéri, illetve bejárati ajtó kiválasztására, a műszaki tartalomban megjelölt összegig. Az udvaron belül térburkolattal ellátott parkolóhely kerül kialakításra.
Egyes házaknál teljes mértékben a vevő igényeire szabható az ingatlan, akár a tervek is módosíthatóak!
Az ingatlan kiváló infrastruktúrával rendelkezik mindössze 30-40 percre helyezkedik el a belvárostól. A környéken megtalálható, óvoda iskola, orvosi rendelő, gyógyszertár, bevásárlási lehetőség.

Ha további kérdése lenne vagy szeretné megtekinteni az ingatlant hívjon bizalommal akár hétvégén is!

83500000 Ft

Referencia szám: M279265

Hirdetés feltöltve: 2025. 09. 25. Utoljára módosítva: 2025. 11. 26.

5 szobás ikerházak ára Őrbottyánban

Ebből az összehasonlításból megtudhatod, hogyan viszonyul a lakás ára a környékbeli ikerházak átlagos árához. Ez nem azt jelenti, hogy ennyivel olcsóbb vagy drágább, mint amennyit a lakás ér, hanem hogy ennyivel tér el a környékbeli átlagtól.

Ennek a m² ára
Őrbottyán m² ár
773 e Ft
825 e Ft 6%
Ennek az ára
Őrbottyán átlagár
83.5 M Ft m Ft
97.7 m Ft 15%

Az ingatlan elhelyezkedése

Cím: Őrbottyán

Eladó ikerházak a környékről

Eladó ikerház
Eladó ikerház

Szentendre

359 M Ft
5 szoba
289 m2
Eladó ikerház
Eladó ikerház

Pilisjászfalu

70.563 M Ft
4 szoba
61 m2
Eladó ikerház
Eladó ikerház

Őrbottyán

89.2 M Ft
3 szoba
117 m2
Eladó ikerház
Eladó ikerház

Őrbottyán

110 M Ft
1 + 4 szoba
116 m2
Eladó ikerház
Eladó ikerház

Pécel, Pécel - kertváros

127 M Ft
4 szoba
125 m2
Eladó ikerház
Eladó ikerház

Őrbottyán

92.85 M Ft
4 szoba
81 m2
Eladó ikerház
Eladó ikerház

Tahitótfalu

88.9 M Ft
4 szoba
110 m2
Eladó ikerház
Eladó ikerház

Szentendre

179 M Ft
5 + 1 szoba
147 m2
Eladó ikerház
Eladó ikerház

Őrbottyán

92.85 M Ft
4 szoba
93 m2
Eladó ikerház
Eladó ikerház

Szentendre, Szentendre

398 M Ft
5 szoba
267 m2
Eladó ikerház
Eladó ikerház

Őrbottyán

98 M Ft
5 szoba
135 m2
Eladó ikerház
Eladó ikerház

Mogyoród, Fóti út

188 M Ft
6 szoba
182 m2
Eladó ikerház
Eladó ikerház

Őrbottyán

110 M Ft
5 szoba
113 m2
Eladó ikerház
Eladó ikerház

Pécel

149.9 M Ft
5 szoba
306 m2
Eladó ikerház
Eladó ikerház

Őrbottyán

95.55 M Ft
4 szoba
81 m2
Eladó ikerház
Eladó ikerház

Őrbottyán

79.8 M Ft
3 szoba
112 m2
Eladó ikerház
Eladó ikerház

Őrbottyán, Kálvária utca

90.75 M Ft
4 szoba
93 m2
Eladó ikerház
Eladó ikerház

Őrbottyán

110 M Ft
5 szoba
140 m2
Eladó ikerház
Eladó ikerház

Pomáz

129.5 M Ft
4 szoba
100 m2
Eladó ikerház
Eladó ikerház

Őrbottyán

92.5 M Ft
5 szoba
132 m2
Eladó ikerház
Eladó ikerház

Vác

175.356 M Ft
5 szoba
165 m2
Eladó ikerház
Eladó ikerház

Őrbottyán

110 M Ft
5 szoba
117 m2
Eladó ikerház
Eladó ikerház

Érd, Érdligeten található utca

64.9 M Ft
4 szoba
112 m2
Eladó ikerház
Eladó ikerház

Diósd

213.46 M Ft
5 szoba
186 m2

Falusi CSOK ingatlanok

Eladó családi ház
Eladó családi ház

Badacsonytördemic

182.36 M Ft
4 szoba
160 m2
Eladó családi ház
Eladó családi ház

Szil

25 M Ft
2 szoba
90 m2
Eladó családi ház
Eladó családi ház

Tokod

89 M Ft
6 szoba
187 m2
Eladó családi ház
Eladó családi ház

Gyepükaján

12.9 M Ft
2 szoba
70 m2
Eladó családi ház
Eladó családi ház

Pölöskefő

19.9 M Ft
2 szoba
96 m2
Eladó családi ház
Eladó családi ház

Darnózseli

79.9 M Ft
4 szoba
104 m2
Eladó családi ház
Eladó családi ház

Jászkarajenő

19.9 M Ft
3 szoba
81 m2
Eladó családi ház
Eladó családi ház

Andornaktálya

65 M Ft
3 szoba
80 m2