River Life

Eladó ikerház
Őrbottyán, földszint

+ 1 kép 1/4
89 990 000 Ft89.99 M Ft 988 901 Ft/m2
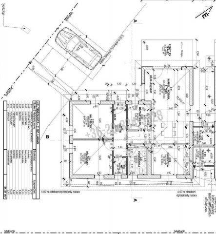
4 szoba
91 m2
földszint
építés éve:2025

Részletes adatok

Telekméret: 510 m2
Fűtés: Egyéb
Parkolás: Kocsibeálló
Közmű: Víz, Villany, Csatorna
Energetikai besorolás: Nem adta meg a hirdető

Az OTP Bank lakáshitel ajánlataFizetett hirdetés

+36 20 334
Kiss Jutka
referens

Érdekel az OTP Bank kedvezményes lakáshitel ajánlata? *

* A kérdésre „Igen” válasz bejelölése esetén, az „Üzenet küldése” gombra kattintva kijelentem, hogy az OTP Bank Nyrt. Adatkezelési tájékoztatójának tartalmát megismertem és tudomásul vettem.

Eladó ikerház leírása

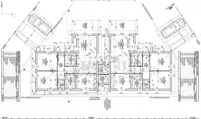
Eladó Őrbottyánban, ÚJ ÉPÍTÉSŰ, csak a tárolóknál érintkező, ENERGIATAKARÉKOS ikerház!

BERUHÁZÓI ÁRON!

Eladó Őrbottyán csendes, szép kertvárosi részén, 1020 nm-es telekre épülő, csak a tárolóknál érintkező, nettó 85 nm-es, amerikai konyhás nappali + 3 szobás ikerház, gépkocsi beállóval, saját 510 nm-es telekkel.

Minden igényt kielégítő, praktikus belső kialakítás:
-29 nm-es amerikai konyhás nappali, 12 nm-es terasz kapcsolattal, 3 hálószoba, fürdőszoba, vendég WC, háztartási helyiség, tároló, előszoba-közlekedő.

Az épület korszerű, minőségi anyagokból és a mai kor igényeinek megfelelő technológiával készül:
-a főfalak 30-as Porotherm okos téglából készülnek, 10 cm-es hőszigeteléssel,
-a fűtést kényelmes, gazdaságos hőszivattyús fűtés biztosítja, padlófűtéssel;
-fehér színű, 3 rétegű üvegezésű műanyag nyílászárók kerülnek beépítésre;
-burkolatok, szaniterek, belső ajtók választhatóak, így saját ízlése szerint készül el leendő otthona.

A ház kulcsrakészen, utcai és a lakásokat elválasztó kerítéssel, telken belül kialakított fedetlen gépkocsi beállóval kerül átadásra.

Őrbottyán a fővárostól 30 km-re elhelyezkedő, csendes, nyugodt város, ahol minden megtalálható, ami a mindennapi élethez szükséges.
Budapest és a közeli települések – Veresegyház, Gödöllő, Vác – vonattal és busszal is megközelíthető.

Hívjon a részletekért, a részletes műszaki tartalomért.

Irodánk ÚJ ÉPÍTÉSŰ ingatlanok specialistája, felkészült értékesítőkkel!
Jogi háttérrel (kedvező díjazással) és az egyik legjobb, bank semleges HITELKÖZVETÍTŐVEL segítjük vásárlását.
Hitelszakértőnk teljes körű ügyintézéssel áll Vevőink rendelkezésére, legyen szó OTTHON START, CSOK+, BABAVÁRÓ vagy a legjobb piaci hitelről.
Új építésű ingatlanjainkat BERUHÁZÓI ÁRON értékesítjük!

Amennyiben értékesíteni kívánja ingatlanát, irodánk egyedi, kedvező ajánlattal áll rendelkezésére!

Hirdetés feltöltve: 2025. 11. 26. Utoljára módosítva: 2026. 01. 13.

4 szobás ikerházak ára Őrbottyánban

Ebből az összehasonlításból megtudhatod, hogyan viszonyul a lakás ára a környékbeli ikerházak átlagos árához. Ez nem azt jelenti, hogy ennyivel olcsóbb vagy drágább, mint amennyit a lakás ér, hanem hogy ennyivel tér el a környékbeli átlagtól.

Ennek a m² ára
Őrbottyán m² ár
989 e Ft
961 e Ft -3%
Ennek az ára
Őrbottyán átlagár
89.99 M Ft m Ft
88.4 m Ft -2%

Az ingatlan elhelyezkedése

Cím: Őrbottyán, földszint

Eladó ikerházak a környékről

Eladó ikerház
Eladó ikerház

Pilisjászfalu

70.563 M Ft
4 szoba
61 m2
Eladó ikerház
Eladó ikerház

Őrbottyán

107 M Ft
4 szoba
93 m2
Eladó ikerház
Eladó ikerház

Szentendre

179 M Ft
5 + 1 szoba
147 m2
Eladó ikerház
Eladó ikerház

Pécel, Pécel - kertváros

127 M Ft
4 szoba
125 m2
Eladó ikerház
Eladó ikerház

Dunakeszi

149 M Ft
1 + 4 szoba
127 m2
Eladó ikerház
Eladó ikerház

Őrbottyán

110 M Ft
5 szoba
140 m2
Eladó ikerház
Eladó ikerház

Pomáz

129.5 M Ft
4 szoba
100 m2
Eladó ikerház
Eladó ikerház

Diósd

213.46 M Ft
5 szoba
186 m2
Eladó ikerház
Eladó ikerház

Mogyoród

135 M Ft
5 szoba
137 m2
Eladó ikerház
Eladó ikerház

Szentendre, Szentendre

398 M Ft
5 szoba
267 m2
Eladó ikerház
Eladó ikerház

Szentendre

359 M Ft
5 szoba
289 m2
Eladó ikerház
Eladó ikerház

Diósd

206.25 M Ft
5 szoba
184 m2
Eladó ikerház
Eladó ikerház

Veresegyház

145 M Ft
4 szoba
120 m2
Eladó ikerház
Eladó ikerház

Őrbottyán

89.2 M Ft
3 szoba
117 m2
Eladó ikerház
Eladó ikerház

Érd, Érdligeten található utca

64.9 M Ft
4 szoba
112 m2
Eladó ikerház
Eladó ikerház

Őrbottyán

89.5 M Ft
4 szoba
93 m2
Eladó ikerház
Eladó ikerház

Vác

94.5 M Ft
4 + 1 szoba
126 m2
Eladó ikerház
Eladó ikerház

Őrbottyán

79.8 M Ft
5 szoba
108 m2
Eladó ikerház
Eladó ikerház

Üröm

220 M Ft
4 szoba
130 m2
Eladó ikerház
Eladó ikerház

Vác

96.5 M Ft
4 + 1 szoba
129 m2
Eladó ikerház
Eladó ikerház

Őrbottyán

110 M Ft
5 szoba
117 m2
Eladó ikerház
Eladó ikerház

Mogyoród, Fóti út

188 M Ft
6 szoba
182 m2
Eladó ikerház
Eladó ikerház

Őrbottyán, Kálvária utca

88.95 M Ft
4 szoba
90 m2
Eladó ikerház
Eladó ikerház

Vác

175.356 M Ft
5 szoba
165 m2

Falusi CSOK ingatlanok

Eladó családi ház
Eladó családi ház

Szil

25 M Ft
2 szoba
90 m2
Eladó családi ház
Eladó családi ház

Ceglédbercel

67 M Ft
5 szoba
174 m2
Eladó családi ház
Eladó családi ház

Ádánd

53.5 M Ft
6 szoba
180 m2
Eladó családi ház
Eladó családi ház

Szarvaskend

26.9 M Ft
2 szoba
83 m2
Eladó családi ház
Eladó családi ház

Véménd

59 M Ft
2 szoba
200 m2
Eladó családi ház
Eladó családi ház

Csemő

110 M Ft
5 szoba
171 m2
Eladó családi ház
Eladó családi ház

Lesenceistvánd

75 M Ft
2 szoba
90 m2
Eladó téglalakás
Eladó téglalakás

Pápakovácsi

36.5 M Ft
4 szoba
101 m2